Conjunto mixto, Barcelona
Jaume Bach Gabriel Mora- Tipo Torre Vivienda Comercial / Oficina
- Material Piedra Aluminio Vidrio Madera
- Fecha 1999
- Ciudad Barcelona
- País España
- Fotografía Lluís Casals
El video estadio de Sarriá, antigua sede del Real Club Deportivo Español, ocupaba un terreno situado entre la Diagonal y la avenida de ronda que acota el Ensanche. Su derribo y la recalificación de los campos deportivos adyacentes han proporcionado una gran extensión de suelo edificable en este enclave privilegiado de la ciudad. Sobre uno de los solares resultantes de su parcelación se levanta la propuesta, enfrentándose con tres prismas no alineados al quiebro de la vía de circunvalación. Trapezoidal y marcada por una esquina curva, la parcela ofrece al este una de las generosas aceras que caracterizan el espacio público de Barcelona. Los comercios previstos en planta baja serán un aliciente más para pasear por esta calle, atajo entre las arterias urbanas mencionadas.

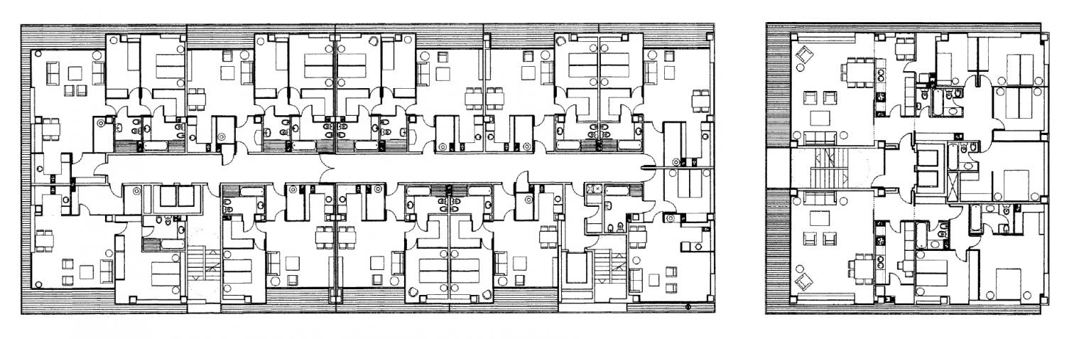
Plantas tipo del bloque y la torre
Sobre los terrenos del antiguo estadio de Sarriá se levantan dos torres de vivienda y un bloque de apartamentos para ancianos con servicios comunes. La manzana se completa con cines, locales y garajes.
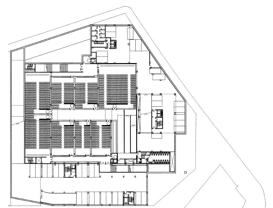
Dos torres de planta cuadrada albergan viviendas convencionales, mientras unos apartamentos para personas mayores —con servicios comunes de comedor, limpieza y enfermería— se alinean para formar un bloque longitudinal. Los cuatro niveles construidos bajo rasante alojan un extenso programa que colmata toda la parcela. Dos aparcamientos, un multicine, trasteros y locales comerciales se engarzan en un complejo sistema de relaciones tridimensionales que sólo trasciende al exterior con las terrazas de la plataforma que cierra la excavación. Sobre esta base se ordenan distintos espacios libres; una pequeña plaza concentra al norte el acceso del público a las salas de proyección, mientras sendos jardines privados ocupan el centro de la manzana y se abren al sur, ajenas al bullicio subterráneo de la actividad comercial.


Planta del tercer sótano

Planta segunda
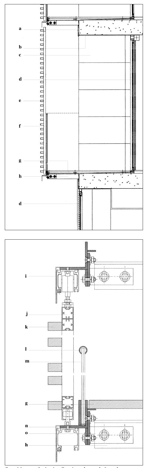
La elevada densidad que la ordenanza permitía alcanzar encuentra en su formalización material una expresión liviana que desdibuja la masa de lo edificado. Con el mismo planteamiento constructivo, todos los bloques cierran su alzado norte con un paño de piedra. Su solidez contrasta con la ligereza de las fachadas expuestas al soleamiento. Mediante las bandas horizontales de aluminio que reflejan el ritmo de los forjados, su superficie se desdobla en distintos planos. El exterior está formado por antepechos de vidrio y paneles correderos de lamas de iroko. El enrastrelado a junta abierta que pavimenta los balcones subraya la naturaleza transparente y cambiante de esta envolvente. Detrás de ella, el vidrio se alterna con el estuco rojo para cerrar el espacio doméstico. Un sistema constructivo unitario no impide escapar a la uniformidad. El inquilino puede intervenir en el aspecto del contenedor en el que habita, cambiándolo tan a menudo como varía su actividad a lo largo del día.



Sección por fachada

Cliente Client
Layetana M2
Arquitectos Architects
Jaume Bach, Gabriel Mora
Colaboradores Collaborators
B. Vidal (arquitecto architect); M. Martínez, G. Molas, A. Kammermaier, E. Cucurella, E. Tahull (estudiantes students); J. Gilabert, F. Roldós (aparejadores quantity surveyors)
Consultores Consultants
Robert Brufau (estructura structure); JG Asociados (instalaciones mechanical engineering)
Contratista Contractor
Comsa
Fotos Photos
Lluís Casals