Casa Alesan en Barcelona
Bach arquitectes Jaume Bach Anna & Eugeni Bach- Tipo Reforma Rehabilitación Vivienda
- Fecha 2023
- Ciudad Barcelona
- País España
- Marca Santos Bulthaup Viabizzuno Technal Gradhermetic
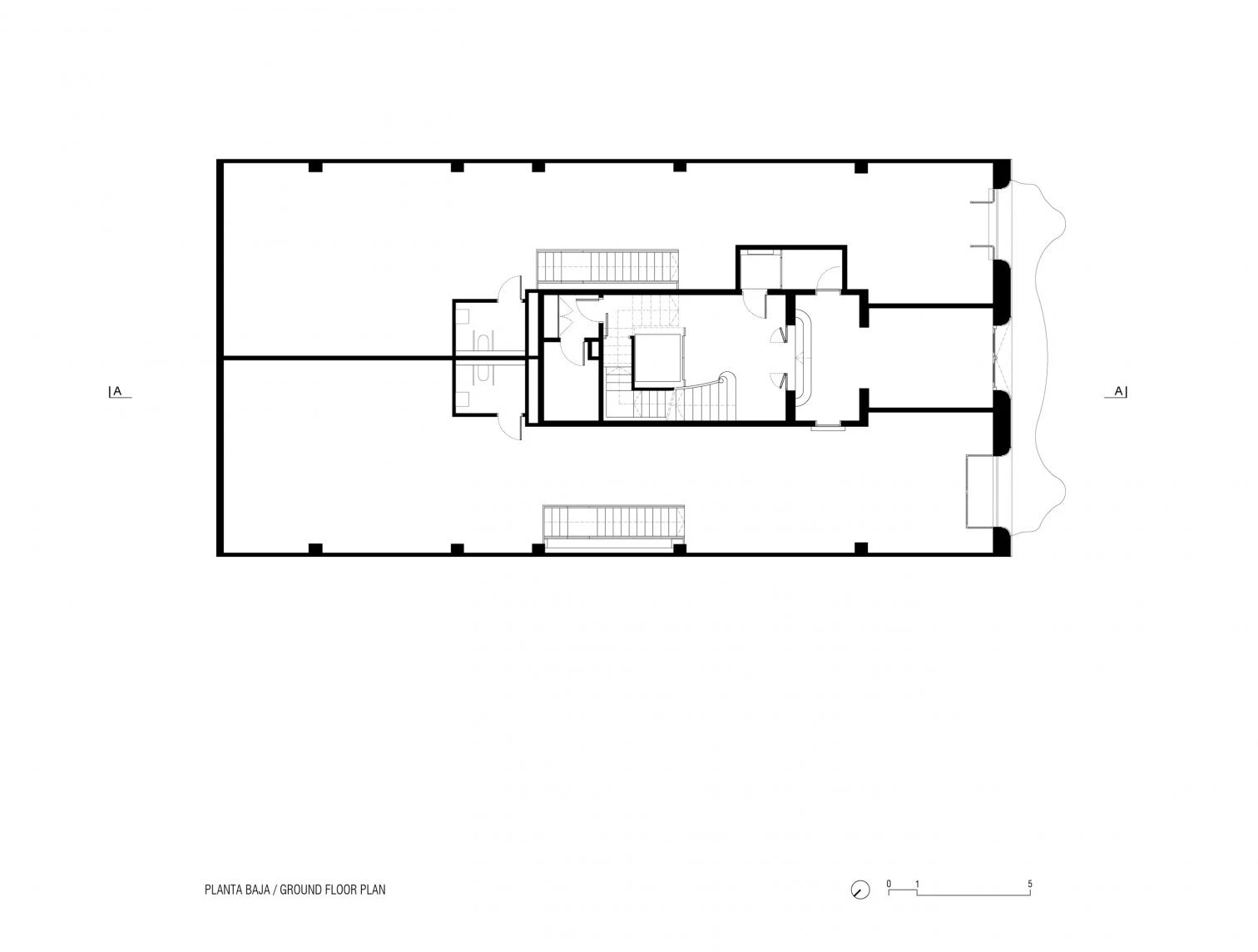
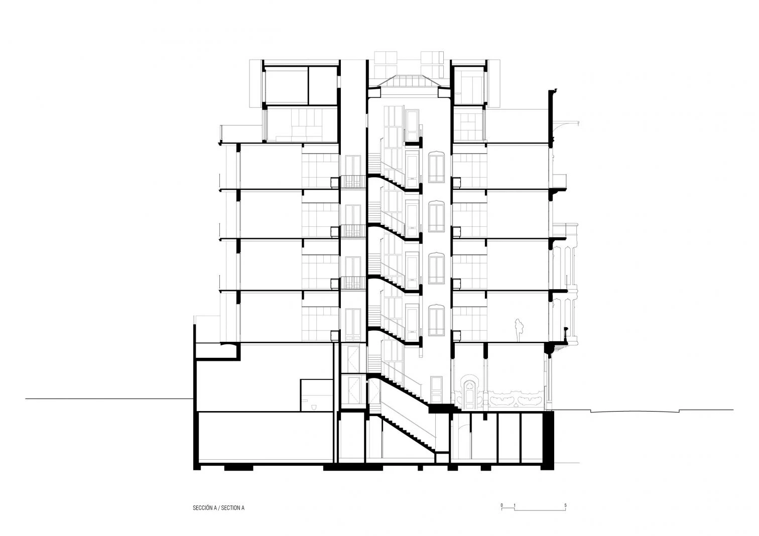
El proyecto consiste en la reforma, la rehabilitación y la ampliación de la finca, situada en el número 110 del paseo barcelonés de Sant Joan, con un nuevo programa de dieciséis viviendas y dos dúplex de nueva creación en la cubierta. La casa original fue encargada por Dolors Alesan en 1902 al arquitecto Enric Fatjó i Torras. Estucos, decoraciones pétreas, metalistería y vidrieras definen su fachada modernista.
El mayor reto de la intervención consistía en cómo pasar de 8 a 18 viviendas sin desvirtuar los espacios originales, así como aumentar en dos plantas el edificio con un nuevo volumen en diálogo con el existente. Para ello, se realiza una rigurosa catalogación de todos los elementos. En el interior de las viviendas, la nueva distribución conserva el perímetro de suelos y techos, trabajando con volúmenes que no agotan la altura. El cuerpo que alberga los dúplex está envuelto con lamas verticales de gres, de media sección circular, que establecen una relación cromática con lo existente.

Fotos cortesía de Eugeni Bach






















