Colegio Miravalles, Cizur Menor
Juan Miguel Otxotorena- Tipo Colegio e instituto Educación
- Fecha 2002
- Ciudad Cizur Menor Navarra
- País España
- Fotografía José Manuel Cutillas Proyectar Navarra Hisao Suzuki
- Marca Heraklith
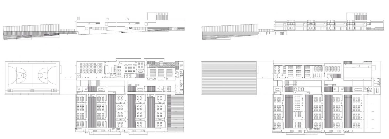
El municipio de Cizur Menor, vinculado a los barrios del sur de Pamplona por el milenario Camino de Santiago, proporciona con su posición elevada un magnífico mirador desde el que contemplar tanto la capital navarra como las numerosas cimas que la rodean. En los últimos años, este pequeño enclave ha visto cómo el crecimiento de la ciudad llegaba hasta sus bordes. En el punto donde la trama urbana dibujada en la zona alta se derrama por una ladera se sitúa el nuevo colegio Miravalles, hermano de un primer centro educativo privado ya consolidado, cuya oferta amplía con 36 aulas de do-cencia ordinaria —para todos los tramos de la en-señanza preuniversitaria—, laboratorios y talleres.

Vinculados visualmente por la línea horizontal de sus huecos, los prismas con las aulas y el polideportivo colonizan la ladera en función de sus necesidades programáticas y para crear un sistema integrado de espacios exteriores.

Orientando su planta hacia el mediodía, este edificio ocupa un solar excavado dos metros respecto a la calle de acceso, a cuya margen relega el aparcamiento para los autobuses; y a partir de una volumetría enfáticamente horizontal, establece un orden con el que apropiarse del paisaje semirrural al que asoma. Sobre la suave pendiente, dos piezas articulan el conjunto: el polideportivo entierra su planta en un escalón inferior, más alejado de la carretera, difuminando su presencia entre cielo y tierra con un acabado de chapa industrial; el volumen principal, que alberga las aulas, descansa sobre la parte más alta, haciéndose visible en la distancia con el blanco monocapa de sus acabados y cediendo a la ladera inmediata las áreas de recreo. Este prisma apaisado se articula en torno a cuatro patios abiertos y cinco bloques de iguales dimensiones, conectados por un vestíbulo a doble altura con los espacios de uso común. El porche de entrada constituye el quinto patio, conformado por el vuelo del cuerpo de la primera planta. Dos piezas prismáticas asoman por encima de la cubierta para iluminar la capilla y el corredor central.


Con acabado monocapa blanco, el volumen del colegio se abre hacia los espacios al aire libre mediante generosos ventanales, lucernarios en las áreas de circulación y patios que alternan con los bloques de clases.

La proporción apaisada del conjunto tiene su correlato en las ventanas rasgadas en los muros laterales de la pieza de aulas, así como en la sutil hendidura que discurre a media altura en la fachada del polideportivo. Como una prolongación de la línea de cornisa del colegio, esta delgada muesca introduce en la cancha una fina línea de luz. Por su parte, amplios ventanales continuos, perfilados en el revestimiento de paneles de chapa metálica, atrapan la luz para los espacios de estudio en la cara oeste. Al este, dos rampas vinculan los patios a las zonas de juego exteriores; junto con ellas, la composición de la fachada, donde alternan huecos de distintas proporciones, lamas blancas y carpinterías de madera roja proporciona un telón de fondo dinámico a las actividades recreativas de los alumnos.




Cliente Client
FEISA
Arquitecto Architect
Juan Miguel Otxotorena
Colaboradores Collaborators
Enrique Moreno, Carlos Naya, Daniel Gimeno, Íñigo Hernández, Vicente Bono (arquitectos architects); Ignacio Visiers (aparejador quantity surveyor)
Consultores Consultants
ATECO (estructura structure); Andrés Bustince (instalaciones mechanical engineering)
Contratista Contractor
Construcciones ACR; Heraklith (falsos techos ceilings)
Fotos Photos
J. M. Cutillas/Proyectar Navarra, Hisao Suzuki