Centro Comunitario Trinitat Vella en Barcelona
Haz Arquitectura- Tipo Cultura / Ocio Centro cultural
- Material Madera
- Fecha 2021
- Ciudad Barcelona
- País España
- Fotografía José Hevia Adrià Goula
- Marca Egoin
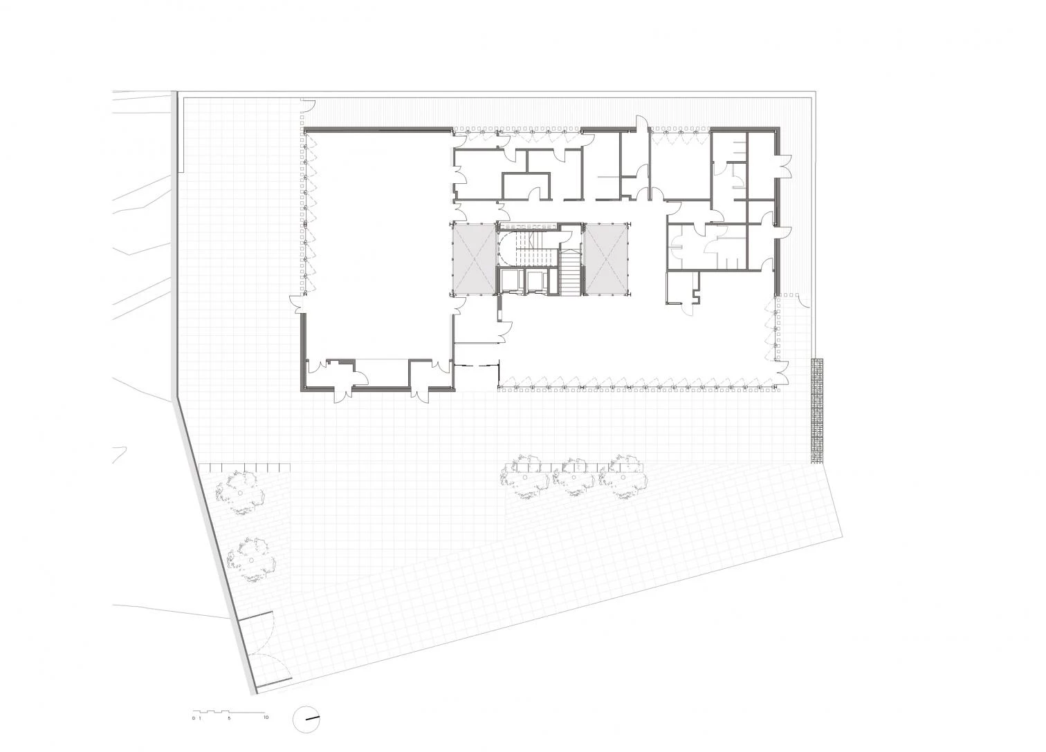
El centro de Vida Comunitaria Porta Trinitat es un nuevo conjunto multifuncional situado a la entrada de Barcelona, muy próximo al Nus de la Trinitat. La escala de la periferia urbana condiciona el lugar, promoviendo un diseño introspectivo. Los volúmenes se ordenan en dos franjas con la dirección de las dos vías principales, la Meridiana y la carretera de Ribes, generando una plaza interior. El primero en construirse, el Casal d’Entitats i Centre de Serveis Socials, renuncia a ocupar todo el solar, fragmentando una de las franjas para abrir el espacio interior de la plaza, creando un subespacio para cine al aire libre. El edificio se muestra voluntariamente abstracto y simple para poder convivir con las futuras piezas que completarán el conjunto.
En este interior de manzana, íntimo y preservado, el proyecto busca crear un lugar confortable al fondo de la plaza, una casa pública que acoja gente de Sant Andreu y Nou Barris con diferentes necesidades, un edificio donde los usuarios se sientan como en casa. Así, para ofrecer calidez en un entorno urbano hostil, se apuesta por la madera como material principal. La madera absorbe CO2 durante toda su vida útil, dando como resultado un muy bajo impacto ambiental por huella de carbono. Debido a su bajo peso, no tiene inercia térmica, por lo que el proyecto opta por movilizar la inercia del terreno. El desmonte de tierras de la excavación en ladera se aprovecha para enterrar unos tubos por donde circula aire limpio, antes de levantar el edificio.
El aire que circula por los tubos enterrados, una vez templado por el subsuelo, se lanza dentro de los dos patios cubiertos, que funcionan como grandes conductos de aire. El proyecto recoge así una antigua tradición mediterránea. Dado que es un aire suficientemente confortable tanto en invierno como en verano —ronda los 17 o 18ºC todo el año—, el gasto energético para climatizar el edificio es muy bajo. Sólo en los días más duros —del invierno o del verano— habrá que tratarlo ligeramente para conseguir la temperatura de confort. Además, la cubierta genera 60.000W de potencia eléctrica al año a través de placas fotovoltaicas, situando el consumo del edificio muy cercano a cero.
El interior del centro se organiza en torno a los dos patios, que proporcionan luz y ventilación. El vestíbulo de entrada es un espacio generoso que actúa de foyer de la sala de actos y puede acoger diversas actividades y exposiciones. Ahí se sitúan la recepción y la cantina. El primer piso es un centro de servicios sociales y punto de atención a la mujer. En el resto de plantas se disponen despachos y estancias para entidades y asociaciones del barrio.












Cliente Client
BIMSA /Ajuntament de Barcelona
Arquitectos Architects
Haz Arquitectura, Manuel Sánchez-Villanueva Beuter, Carol Beuter Sánchez-Villanueva
Colaboradores Collaborators
BAC Engineering (ingeniería estructura structural engineering); Proisotec engineering (instalaciones, seguridad antiincendios mechanical engineering, fire safety); Ivana Rossell engineer (ingenieros acústicos acoustic engineers); CTP 1999 (aparejadores quantity surveyors); Haz Arquitectura (paisaje, diseño interior, diseño constructivo, diseño iluminación landscape, interior design, construction design, lighting design)
Contratista Contractor
UTE Copisa, S.A.-Solvetia, S.L. / Cobra, S.L.
Superficie construida Floor area
2.300 m² + urbanización plaza
Presupuesto Budget
6.726.436 €
Fotos Photos
José Hevia, Adrià Goula