Casa sobre un zócalo de ladrillo en Sant Vicenç dels Horts (Barcelona)
Ágora arquitectura- Tipo Vivienda Casa Rehabilitación
- Fecha 2022
- Ciudad Sant Vicenç dels Horts (Barcelona)
- País España
- Fotografía José Hevia
- Marca Egoin Cerámicas Valera Barnacork Knoll Cassina
En la comarca del Bajo Llobregat, en el municipio barcelonés de Sant Vicenç dels Horts, se sitúa esta casa cuya parcela está delimitada por un muro calado de ladrillo. Sobre el zócalo apilastrado del mismo material, que contiene las tierras arcillosas de la sección preexistente, se apoya una caja prefabricada de madera contralaminada (CLT), envuelta con piezas de corcho en un acabado de color blanco.
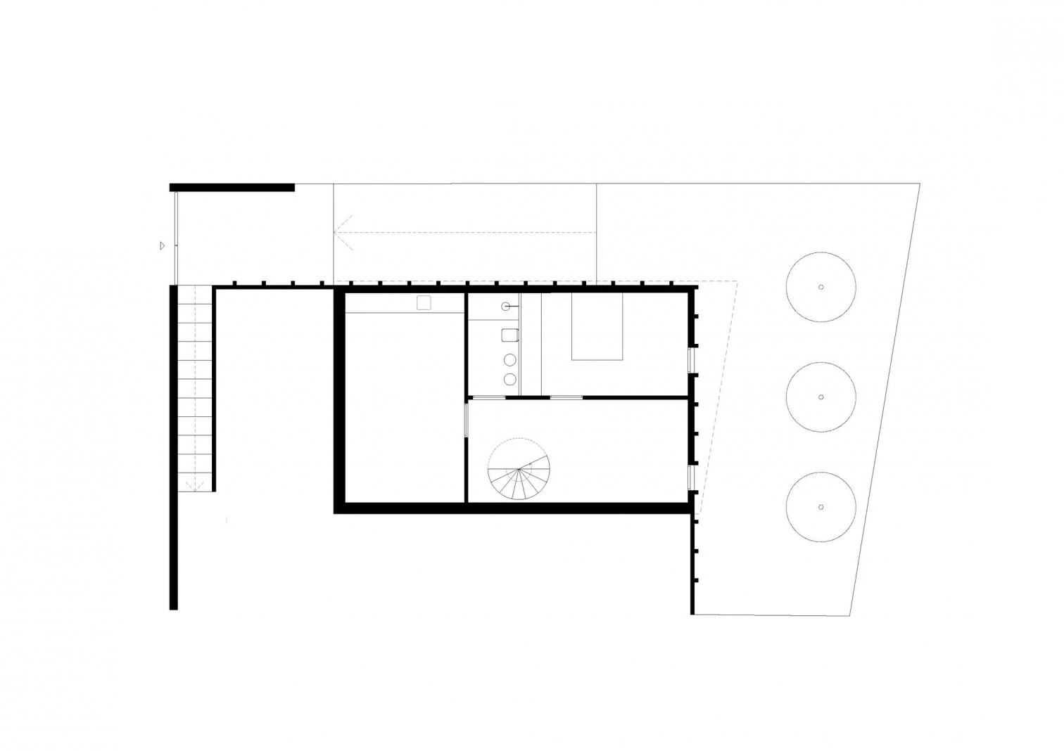
La planta primera acoge dos dormitorios conectados entre sí mediante un tabique-estantería, un baño iluminado con luz natural cenital, y un salón-cocina que se extiende hacia el comedor. Organizada alrededor de un muro de ladrillo en forma de T, la planta inferior entierra una tercera habitación, una segunda sala de estar, un pequeño baño y una amplia sala de servicios e instalaciones.

















