Casa R, Keremma
Lacaton & Vassal- Tipo Vivienda Casa
- Material Metal Policarbonato
- Fecha 2003 - 2005
- Ciudad Keremma (Tréflez)
- País Francia
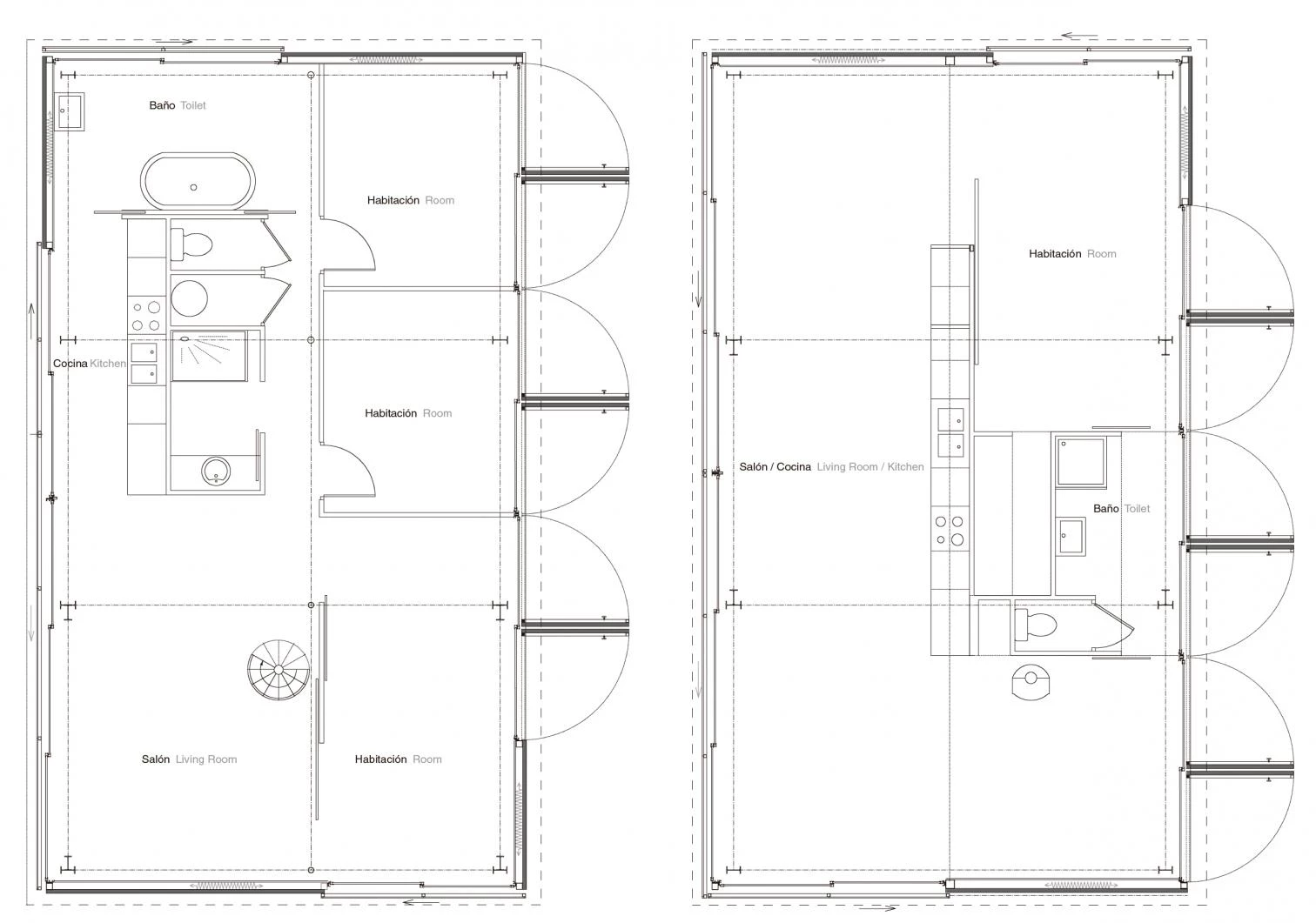
Detrás de las dunas, y a su cobijo, se sitúa el solar en el que se emplaza la vivienda. Un lugar desde el cual no es posible la visión directa del agua, pero donde es ineludible la presencia magnífica del océano, perceptible por el sonido, el viento y las nubes. Para la localización exacta de la residencia se ha escogido una banda en los límites norte y este de la parcela, cercana a las dunas y salpicada por árboles y claros. Se compone de tres cuerpos separados, dispuestos en forma de arco convexo hacia el norte, protegiéndolo del mal tiempo, y cóncavo al sur, creando un espacio exterior más intimo y menos expuesto.
Este espacio queda perfectamente delimitado cuando las casas están habitadas, ya que las grandes contraventanas correderas de aluminio que cierran sus fachadas se desplazan en dirección a la casa vecina, y dibujan el contorno de un improvisado jardín. Cuando vuelven a quedar vacías, los volúmenes recuperan su apariencia cerrada e independiente. Aunque los tres cuerpos tengan el mismo tamaño, altura y superficie, se diferencian en el programa, en la organización interior, en la naturaleza de sus revestimientos y en el modo en que se cierran. La estructura de las piezas está realizada con perfiles de acero revestidos, en las partes opacas, con paneles de fibrocemento.










Cliente Client
Private
Arquitectos Architects
Anne Lacaton & Jean-Philippe Vassal
Colaboradores Collaborators
David Duchein, Mathieu Laporte, Sylvain Menaud, Rafaël Falcon, Gilbert Petibon (obra construction site)
Consultores Consultants
CESMA (estructura metálica metal structure)
Contratistas Contractors
LAGATHU (obra gruesa structural work); Laurent (carpintería y cubierta, carpentry and roofing); 4M (carpintería de aluminio aluminum carpentry)
Superficie Surface area
316 m2
Fotos Photos
Lacaton & Vassal