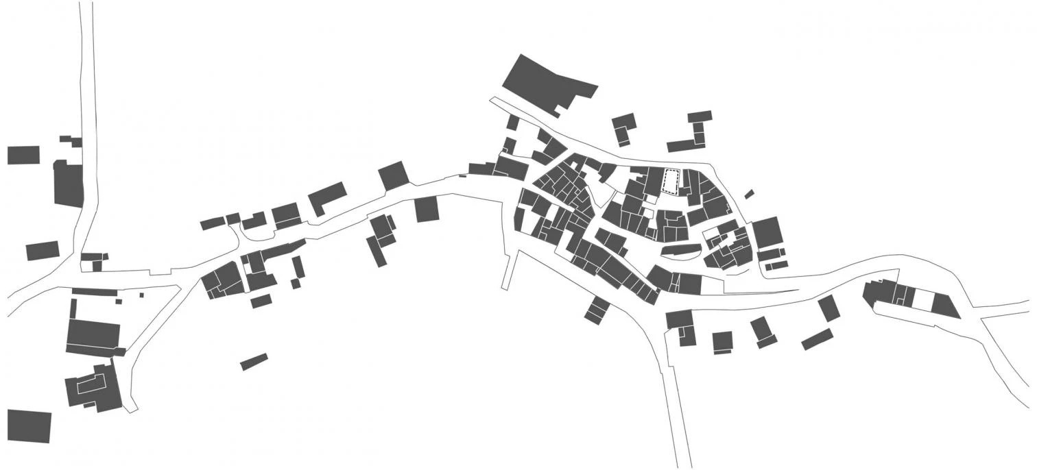
Cal Fuster en Vilanova de Meyá (Lérida)
Arqbag- Tipo Rehabilitación Vivienda Casa
- Fecha 2020
- Ciudad Vilanova de Meyá (Lérida)
- País España
- Marca Velux Carinbisa
La firma catalana Arqbag —Jordi Mitjans, Bernat Colomé, Simona Cerri, Alfonso Godoy, Adrià Vilajoana y Marc Díaz— ha sido la encargada de transformar en una vivienda unifamiliar una construcción de finales del siglo XV, situada en la plaza que fue el origen del municipio leridano de Vilanova de Meyá, con 420 habitantes, en la comarca de La Noguera.
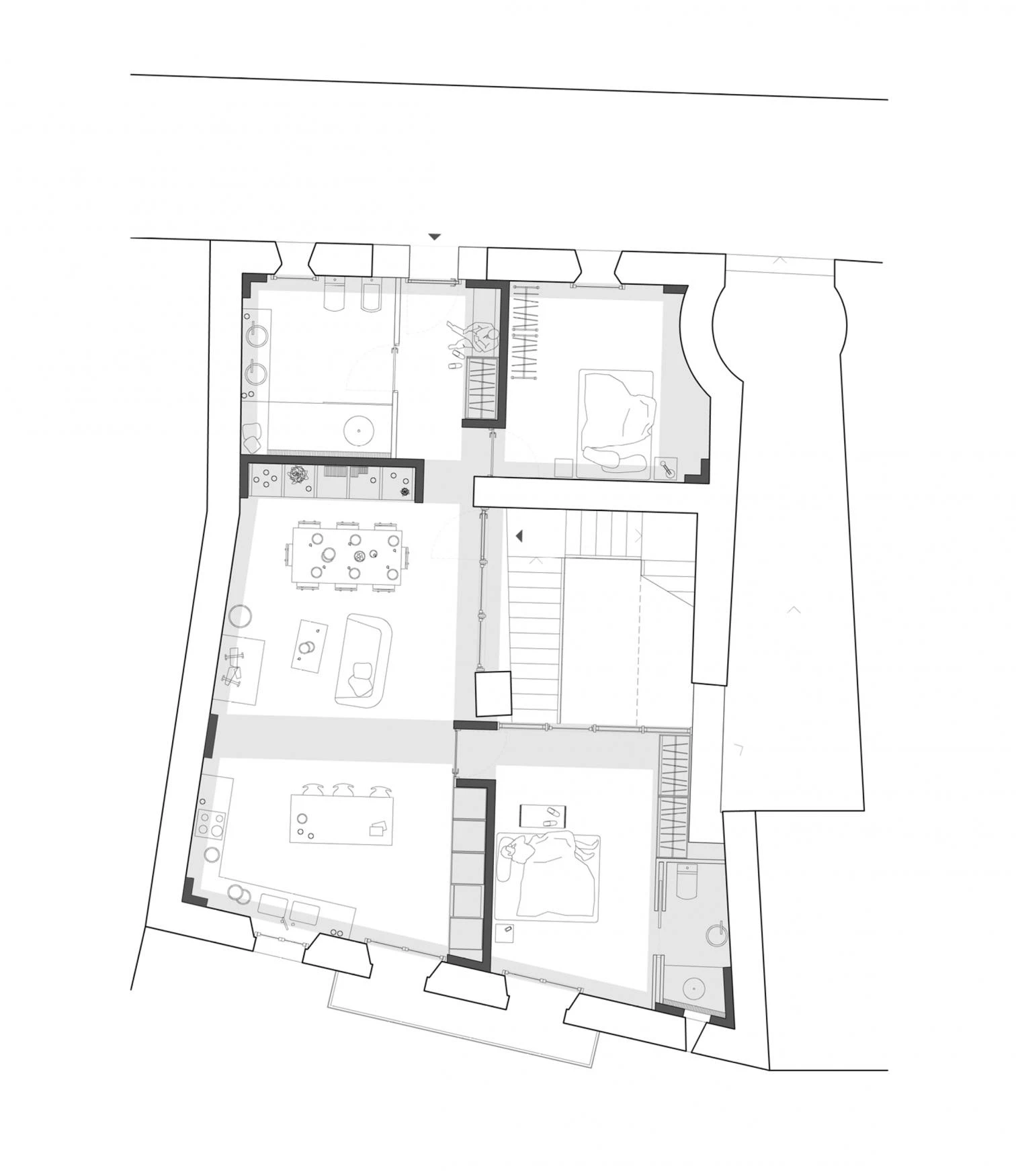
Para evitar una nueva cimentación y reforzar el edificio declarado Bien Cultural de Interés Local (BCIL), se introduce una caja de hormigón armado que apoya directamente sobre los muros pétreos de carga de la planta sótano. Para reducir el peso, los forjados mixtos combinan la madera maciza con pantallas y jácenas de hormigón.
Los nervios de hormigón definen los espacios interiores, unen las cuatro fachadas y reducen el pandeo de los muros, fijándolos desde su punto medio, para que soporten el peso de la nueva cubierta de madera. Uno de los seis cuadrantes de la matriz estructural se vacía para generar un patio vertical que permite el acceso a los tres niveles de la vivienda, la iluminación de los espacios interiores, y la ventilación natural de la planta sótano.
Las pantallas y jácenas de hormigón sujetan las fachadas del edificio patrimonial desde su interior, sin necesidad de intervenir en el exterior. La restauración de los muros originales se realiza con mortero de cal y una mezcla de áridos, provenientes de dos canteras locales.

Fotos: Marc Díaz













