Biblioteca para la Universidad de Deusto en Bilbao
Rafael Moneo- Tipo Universidad Educación Biblioteca
- Material Pavés
- Fecha 2001 - 2009
- Ciudad Bilbao
- País España
- Fotografía Duccio Malagamba
Los edificios de la Universidad de Deusto siempre han desempeñado un papel primordial en la configuración de la margen izquierda de la ría, dando fe de la voluntad de servicio que la institución siempre tuvo para con la ciudad. Desde hace más de cien años, Deusto ha sido no sólo la cuna de numerosos profesionales bilbaínos, sino también una protagonista de la vida cultural de la ciudad; de ahí que a nadie sorprenda la importancia que los edificios de esta universidad han tenido y tienen en el ámbito de la ría bilbaína.


Sobre la margen izquierda de la ría de Bilbao, frente al Museo Guggenheim, se levanta la biblioteca de la Universidad de Deusto, concebida como un edificio exento envuelto en una suave piel traslúcida de pavés.
Aunque la localización del solar y la configuración urbanística pudieran parecer favorables, lo cierto es que la ambivalencia entre las dimensiones de una manzana y las de un edificio exento hicieron que el proyecto no resultara fácil. Si a esto añadimos la presencia imponente del Museo Guggenheim, se entenderán mejor las dificultades. Así, el nuevo edificio no debería competir con el bien ganado protagonismo del museo, pero al mismo tiempo debía mostrar su condición pública y establecer una deseable continuidad con la universidad. Y ambos condicionantes debían hacerse compatibles con la vocación de que el edificio se percibiera como un volumen exento en el parque y dotado de vida propia.

Estas premisas de difícil conjugación explican el protagonismo que tiene en el edificio el pavés, un material que interesaba porque, si por un lado no competía con los brillos del titanio del Guggenheim, por el otro suavizaba el encuentro con el parque. Con su repetición modular, el pavés genera un volumen monolítico y monocromo neutro que es capaz de integrarse en el entorno verde sin sobresaltos. A partir de aquí, el rasgo arquitectónico más característico del edificio tal vez sean sus esquinas redondeadas, que acentúan su condición de sólido autónomo. Las esquinas como aristas vivas quedaron erosionadas mediante facetas ortogonales que, por ser transparentes, dan lugar a un vivo contraste con el traslúcido pavés. Si a esto se añade la atractiva condición de fanal que adquiere el edificio al anochecer, se entiende que el arquitecto quedara seducido por el potencial de este material.

El edificio es un sólido translúcido, pero la distancia compositiva y material que establece con el Guggenheim se reduce cuando se considera lo mucho que el museo ha influido en la orientación de la biblioteca. Esta se vuelca sutilmente hacia la pieza de Gehry, para rendirle un tributo de pleitesía ofreciendo su viva volumetría como telón de fondo para las salas de lectura de la biblioteca.
La biblioteca universitaria se encuentra ligeramente orientada hacia el Museo Guggenheim, que se hace presente en el interior de las salas de lectura gracias a unas grandes hendiduras practicadas sobre la suave envolvente continua.



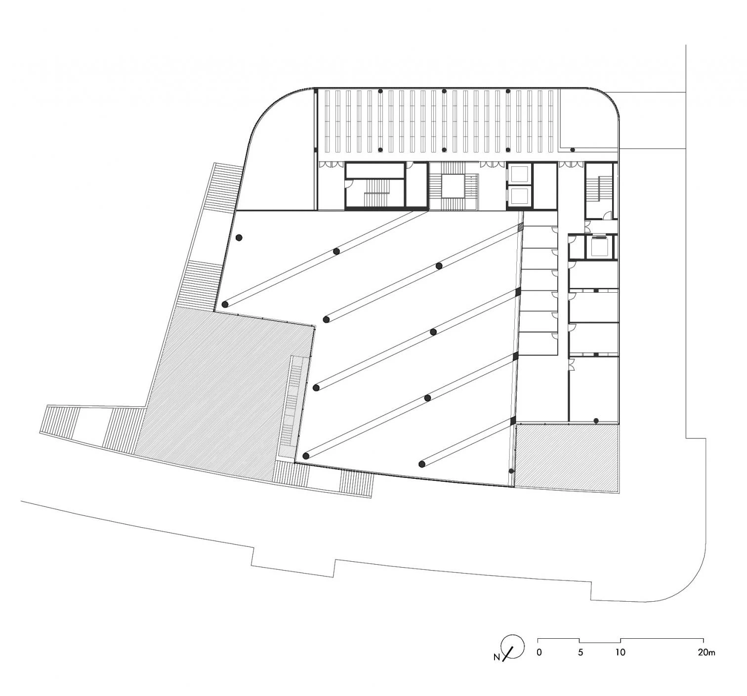
Planta acceso +8,50

Planta tercera +28,00






Cliente Client
Universidad de Deusto
Arquitecto Architect
Rafael Moneo
Colaboradores Collaborators
Valerio Canals Revilla (arquitecto a cargo del proyecto project architect)
Consultores Consultants
Santiago Hernán (aparejador quantity surveyor); NB 35 Jesús Jiménez Cañas, Alejandro Bernabeu (estructura structural engineering); Úrculo Ingenieros + PGI (instalaciones mechanical engineering); Juan de Dios Hernández & Jesús Rey
Contratista Contractor
Construcciones Amenabar
Superficie Floor area
19.000m² (útil net area); 25.000m² (construida gross area)
Fotos Photos
Duccio Malagamba