- Tipo Casa Vivienda Rehabilitación
- Fecha 2020
- Ciudad Lujua (Vizcaya)
- País España
- Fotografía Luis Díaz Díaz
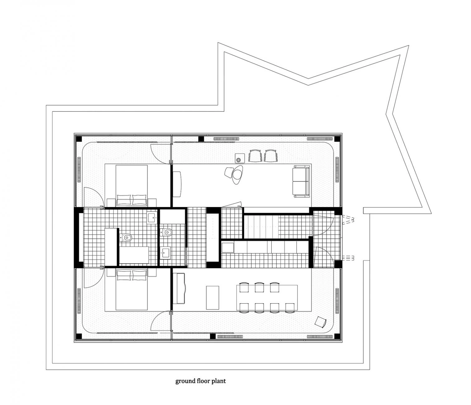
Una vivienda agrícola en la periferia de Bilbao se somete a una profunda transformación para albergar las residencias independientes de dos generaciones de una familia.
Mientras que la planta baja sigue un esquema abierto con grandes ventanales que se abren al paisaje, la superior se configura como una sucesión de estancias de huecos recortados en la ornamentada fachada.















Obra Work
Re-House, Lujua, Vizcaya (España)
Re-House, Loiu, Biscay (Spain).
Arquitectos Architects
BEAR / Ane Arce, Iñigo Berasategui (socios partners); Acha Zaballa / Cristina Acha, Miguel Zaballa (socios partners).
Contratista Contractor
ALUR; EIBHO Group (carpinterías frames); Rua Alberdi (ebanistería woodworks); CODENOR (aislamiento de fachada facade insulation); Forbo (suelos flooring); Finsa (tableros de melamina melamine boards); Itesal (ventanas windows); Jaansen (lucernario skylight); Cinca Ceramicos (baldosas ceramic tiles); Porcelanosa (encimeras counters); Caparol (aislamiento térmico thermal insulation); Kvadrat (textiles textiles).
Superficie Area
210 m².
Fotos Photos
Luis Díaz Díaz.