Ayuntamiento, Vilaseca
Josep Llinàs- Tipo Institucional Ayuntamiento / Gubernamental
- Material Madera Piedra Vidrio
- Fecha 1996
- Ciudad Vilaseca (Tarragona)
- País España
- Fotografía David Cardelús Hisao Suzuki
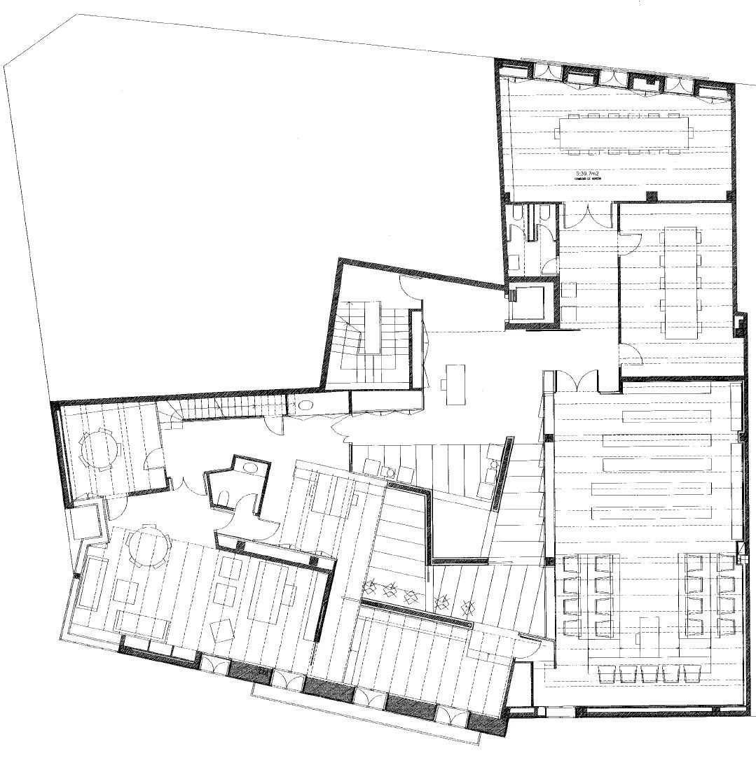
El edificio del consistorio se asienta sobre una parcela en el extremo oeste de la manzana que cierra por el sur la plaza de la iglesia. Dicha parcela es el resultado de la suma de tres solares—el ocupado tradicionalmente por el ayuntamiento y los dos adyacentes al mismo—, y linda al norte con la plaza, al sur con la calle de San Antonio, al este con la calle de la Fuente y al oeste con el edificio medianero existente. La decisión de partida consistió en conservar la fachada y una primera crujía de la antigua casa de la villa, más por su presencia en la memoria colectiva ciudadana que por su valor estrictamente arquitectónico.




El ayuntamiento conserva la fachada y una primera crujía de la casa de la villa original, con el balcón y la gran puerta de entrada. El ritmo de los vanos existentes se extiende a la zona de nueva planta.
En el entorno apretado de edificación que forma el centro urbano de Vilaseca, el proyecto es la extensión sin conflictos del orden de la fachada existente, donde ya estaban implícitos los elementos (el balcón o la gran puerta de entrada) que identifican el ayuntamiento como edificio público. La composición tradicional del alzado, basada en la disposición alterna de macizos y vanos de dimensiones comedidas, genera el aspecto exterior de la nueva construcción, facilitando su correcta integración en el caserío. Un patio de generosas dimensiones, situado en el centro de gravedad de la planta, asegura la iluminación y la ventilación natural del núcleo del edificio y juega en la planta baja un papel similar al de la plaza o espacio de encuentro. La importancia que este patio fue adquiriendo a lo largo del proceso del proyecto dio lugar a la emergencia de los volúmenes que lo delimitan, retranqueados en lo alto de la fachada principal. Visibles desde la plaza de la iglesia, pues ésta se sitúa por encima del nivel de la planta baja del ayuntamiento, se han tratado con la libertad que permite su independencia respecto a la fachada original, subrayando sus cualidades plásticas.


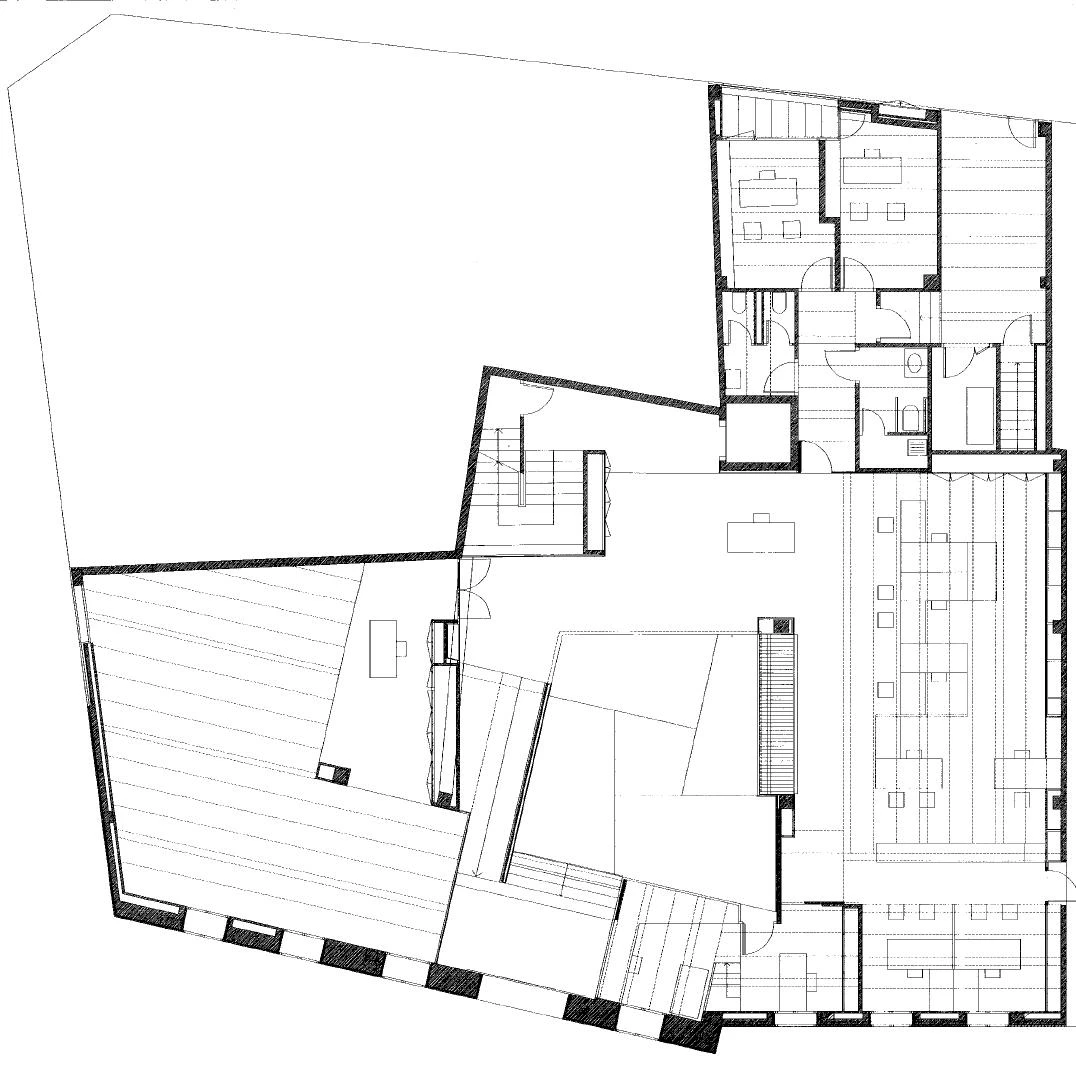
La construcción se desarrolla en cinco alturas y un sótano. El despacho del alcalde con sus dependencias auxiliares se encuentra en la segunda planta, junto a la sala de plenos y dos salas de juntas. Los demás niveles albergan el resto del programa: las salas de atención al público y de reuniones, y los despachos. Estos últimos se han situado en la periferia de la planta, buscando la luz natural y las vistas del entorno, mientras que las amplias zonas de atención al público se localizan en el corazón del ayuntamiento, volcadas al patio. Si el interior despliega una gran variedad de materiales como el tablero de haya, el entarimado de iroko, la piedra de Burriol o el vidrio, el exterior confía a las contraventanas enrasadas con el revoco blanco su presencia serena en la vida pública del municipio.


Un patio cubierto asegura la iluminación y la ventilación del núcleo del edificio. Los volúmenes que lo delimitan aparecen tratados con la independencia que permite su retranqueo de la fachada principal.

Sección por el lucernario
Pensado como lugar de encuentro, el vacío central aparece rodeado por las zonas de atención al público. El salón de plenos se sitúa en la segunda planta, junto al despacho del alcalde y sus dependencias auxiliares.



Cliente Client
Ayuntamiento de Vilaseca, Tarragona
Arquitectos Architects
Josep Llinás
Colaboradores Collaborators
Jaume Martí (aparejador quantity surveyor); Robert Brufau (estructura structure); JG Asociados (instalaciones mechanical engineering)
Contratista Contractor
OCP
Fotos Photos
David Cardelús, Hisao Suzuki