Viviendas provisionales APROP, Barcelona
straddle3 Yaiza Terré Eulia Arkitektura- Tipo Vivienda Colectiva Prefabricación
- Material Metal Policarbonato
- Fecha 2019
- Ciudad Barcelona
- País España
- Fotografía Adrià Goula
- Marca Knauf
El programa municipal APROP (Alojamientos de Proximidad Provisionales) busca responder de forma ágil, urgente y pragmática a situaciones de emergencia provocadas por la carencia de vivienda, contribuyendo a evitar la marcha forzosa de vecinos de los barrios gentrificados. Estos programas entienden los solares desocupados, las fincas que no han agotado su edificabilidad e incluso los espacios públicos excesivamente amplios como lugares de oportunidad donde alojar unidades residenciales que, utilizando la prefabricación modular con criterios de sostenibilidad urbana, ecológica y social, logran una ejecución más rápida, económica y justa que las promociones convencionales de vivienda pública.
Mediante estos equipamientos residenciales, el consistorio pretende realojar temporalmente, en su propio barrio, a los vecinos que han sufrido un desalojo. Gracias al uso de contenedores marítimos reciclados, estos edificios modulares reducen su huella ecológica de forma muy considerable. Por un lado, evitan el derroche energético y la emisión de gases de efecto invernadero que conlleva el uso masivo de hormigón armado o la fundición de acero para estructuras metálicas. Por otro, son perfectamente desmontables, transportables y adaptables a otros emplazamientos, lo que reduce el gasto energético y los residuos generados durante el proceso de derribo.
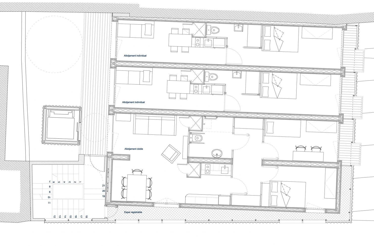
El APROP del Barrio Gótico es un volumen compacto, esquinero y entre medianeras que ocupa un solar edificable de titularidad municipal, usado anteriormente como extensión del espacio público adyacente. En su planta baja, el edificio aloja la ampliación de un equipamiento sanitario cercano y, en sus cuatro plantas superiores, contiene un total de doce alojamientos—ocho de un dormitorio y cuatro de dos—. Todas las unidades tienen al menos dos fachadas, con lo que gozan de ventilación cruzada. La fachada noroeste da a un patio que contiene el núcleo de comunicaciones. La sureste, hacia una calle estrecha, muestra puertas balconeras de madera con persianas alicantinas y barandillas metálicas, como las de los edificios tradicionales del centro histórico. En la fachada suroeste, que asoma a una plazuela, los cuatro alojamientos de mayor dimensión disponen de aberturas más anchas. Las fachadas son ventiladas y su aislamiento térmico confiere al edificio la máxima eficiencia energética. El paramento exterior se ha resuelto con un aplacado de policarbonato traslúcido. De día, esta piel clara y brillante aumenta la luminosidad de las viviendas mientras refleja sutilmente el entorno. De noche, tamiza la luz de los interiores, mejorando la iluminación de la calle sin comprometer la intimidad de sus habitantes.










Cliente Client
Ajuntament de Barcelona. Área de Derechos Sociales
Arquitectos Architects
Straddle3, Eulia Arkitektura, Yaiza Terré Estudi d’Arquitectura
Fotos Photos
Adrià Goula