47 viviendas de protección oficial en Barcelona
dataAE Narch Arquitectes Maira Arquitectes- Tipo Vivienda Colectiva
- Fecha 2017 - 2022
- Ciudad Barcelona
- País España
- Fotografía Adrià Goula
- Marca Technal
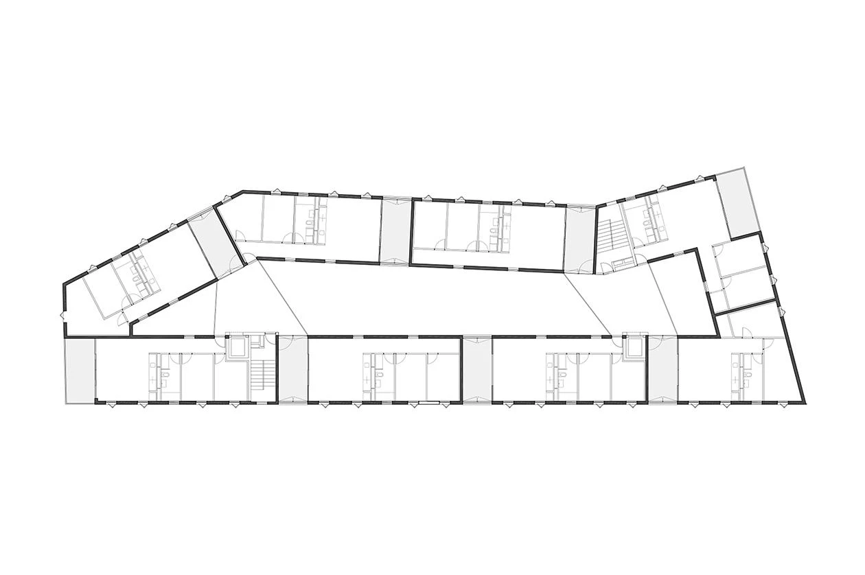
Este edificio de viviendas sociales está organizado alrededor de un espacio central en forma de atrio, el cual optimiza la eficiencia energética del conjunto y que, junto a los amplios rellanos de la escalera, ofrece espacios de encuentro entre los vecinos. El proyecto para el Institut Municipal de l´Habitatge i Rehabilitación de Barcelona (IMHAB) presenta una única tipología de pisos-patio pasantes en altura, donde todas las piezas se ubican en la fachada, con iluminación natural y vistas al entorno. Con paneles fotovoltaicos en la cubierta, las viviendas incorporan un espacio intermedio tipo terraza-galería, que permite aprovechar la ventilación cruzada y, cuando se cierra, aportar ganancias térmicas por el efecto invernadero, evitando la necesidad de calefacción. La posición de la galería se alterna: en unos pisos es el acceso y, en otros, la galería se sitúa en el extremo de la vivienda. La configuración interior dispone habitaciones versátiles de 10 metros, todas iguales, para favorecer la multifuncionalidad.







