Situada en el corazón de Oriente Medio, Beirut ha sido siempre una ciudad cosmopolita, punto de enlace cultural y geográfico entre Europa y Oriente Medio. Su historia no podía haber sido más diversa: el paso de fenicios, romanos, mamelucos, otomanos y el dominio colonial ha dado forma a la ciudad; y esta acumulación de capas históricas ha inspirado el diseño del edificio residencial Beirut Terraces. La parcela forma parte del plan director que pretende reconstruir y revitalizar el área cercana al puerto deportivo, donde todavía son visibles las cicatrices provocadas por el coche bomba que acabó con la vida del primer ministro Rafik Hariri en 2005.
Cinco principios definen el proyecto: la superposición de capas y terrazas, la dualidad interior y exterior, la vegetación, el equilibrio entre vistas y privacidad, la luz y la identidad. El resultado es un edificio formado por la superposición vertical de estratos: una serie de losas de diferentes tamaños permite la interacción entre apertura y privacidad, lo que fomenta una relación flexible entre el interior y el exterior. La calidad de los detalles y la cuidadosa elección de los materiales dan como resultado un edificio que combina eficiencia y lujo. Por su parte, los sistemas climáticos y el uso de vegetación específica mejoran la sostenibilidad y las características ambientales.
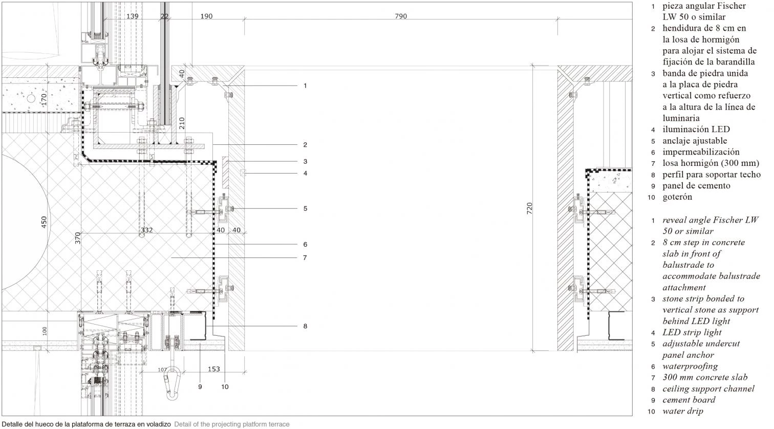
Esta torre estratificada, que llega hasta los 119 metros de altura, está formada por estancias que avanzan o retroceden generando terrazas y voladizos, espacios de luz o sombra, lugares íntimos o expuestos; de manera que cada apartamento es único. Para garantizar esta diversidad, sin prescindir de una solución constructiva razonable, el edificio se compone de cinco tipos de pisos modulares que se repiten en diferentes combinaciones. La estructura portante se concentra en un núcleo cruciforme y en una retícula regular de columnas que salvan luces de 14,7 metros. Esto hace que las divisiones de los apartamentos no sean estructurales y su distribución esté abierta a introducir cambios en el futuro.
El clima moderado de Beirut, uno de sus mayores atractivos, hace que la vida al aire libre forme parte de su cultura urbana. Este factor se incorpora al diseño, disolviendo la transición entre el interior y el exterior, de manera que las terrazas se convierten en estancias. De la misma forma, el proyecto se funde con su entorno a través de la vegetación. El bulevar verde propuesto por el plan director continúa verticalmente a través de las diferentes plataformas de la torre. Las diferentes especies vegetales actúan como pantallas, arrojando sombra, asegurando la privacidad y generando microclimas en torno a cada apartamento.












Client
Benchmark Development SAL
Client Representative: Dr. Bassim Halaby, Benchmark Development SAL
Herzog & de Meuron Project Team
Partners: Jacques Herzog, Pierre de Meuron, Stefan Marbach (Partner in charge)
Project Team: Tobias Winkelmann (Project Director, Associate), Claudia Winkelmann, Ursula Hürzeler (Project Manager).
Alexandria Algard, Claire Clément, Massimo Corradi, Corina Ebeling, Joris Jakob Fach, Luis Gisler, Norman Peter Hack, Elisabeth Hinz, Dara Huang, Julia Jamrozik, Hamit Kaplan (Digital Technologies), Johannes Rudolf Kohnle, Yusun Kwon, Christina Liao, Jaroslav Mach, Carmo Montalvão, Samuel Jonathan Nelson, Dominik Nüssen (Digital Technologies), Kevin Peter, Yann Petter, Daniel Rabin, Susanna Rahm, Kathrin Riemenschnitter, Philip Schmerbeck, Michael Schmidt, Mónica Sedano Peralta, Raha Talebi, Stefan Thanei, Raúl Torres Martín, Mariana Vilela, Shuo Susan Wang, Romy Weber, Antonia Weiss, Léonie Wenz, Thomasine Wolfensberger.
Planning
Project Architect: Herzog & de Meuron; Executive Architect, Electrical Engineering DD/ CD, Mechanical Engineering DD/ CD, Plumbing Engineering DD/ CD, Structural Engineering DD/ CD: Khatib & Alami; Electrical Engineering SD, Mechanical Engineering SD, Plumbing Engineering SD, Structural Engineering SD: Arup London; Landscape Design: Vladimir Djurovic Landscape Architecture; Project Management: Hill International.
Consulting
Facade Engineering: Philippe Petignat Engineering; Fire Protection: Arup London; Lighting: Arup Lighting; Security: Socotec Liban; LEED: Green 4 Good.Contractors
General Contractor: MAN Enterprise; Facade: Alumco Sal; Keller Minimal Windows; Planting: Green Studio.
Photos
Iwan Baan