Edificio Helsinki Dreispitz, Münchenstein / Basilea
Herzog & de Meuron- Tipo Colectiva Sede / oficina Vivienda
- Material Hormigón
- Fecha 2007 - 2014
- Ciudad Basilea
- País Suiza
- Fotografía Iwan Baan
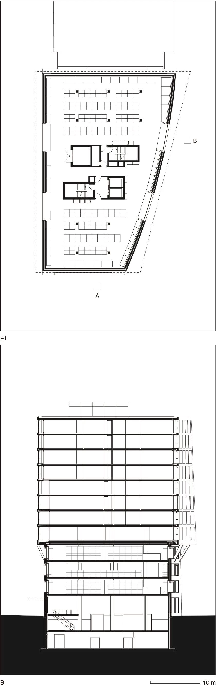
Situado en la calle Helsinki, en el área conocida como Dreispitz en Basilea, Helsinki Dreispitz es un proyecto promovido y desarrollado por Herzog & de Meuron que engloba un archivo y un edifico de apartamentos. Dreispitz es un conjunto urbano que abarca una superficie de cincuenta hectáreas y pertenece a un solo propietario. Originalmente se utilizó para almacenar mercancías, después como depósito de aduanas; y con el tiempo se ha transformado en un fascinante conjunto heterogéneo e arquitecturas y usos. En el año 2001, el estudio de Herzog & de Meuron desarrollo un análisis urbano, en el que proponía reforzar la diversidad e incrementar la densidad mediante un proceso aierto. Dreispitz está destinado a convertirse e los próximos años en uno de los barrios mas relevantes de suiza en cuanto a tipología y contenido. En este sentido, el edificio se concibe como un catalizador de la actividad del barrio, traspasando las funciones de un simple archivo. Otro factor importante es la introducción de programa residencial que dota al barrio de vitalidad tanto por el día como por la noche; y a pesar de que está previsto que el emplazamiento tenga una gran densidad urbana, las viviendas disfrutan de vistas panorámicas del entorno rural de bruderholz y brülinger Plane.
El edificio esta formado por dos piezas apiladas cuyas paredes se inclinan generando un volumen cuyas paredes se inclinan generando un volumen cónico. Esta singular geometría favorece el acceso de luz natural tanto a los propios apartamentos como a las construcciones circundantes. La fachada e hormigón bruto conserva la huella del encofrado formado por tablillas estrechas de madera. Con el paso del tiempo, la escorrentía de agua de lluvia generara una textura similar al tronco de un árbol.
La parte inferior de este edificio no solo contiene todo el material que el estudio ha reunido desde su fundación en 1978, sino que también incluye una colección de obras de diferentes artistas que han colaborado con Herzog & de Meuron durante años, así como un conjunto de fotografías históricas. Hasta el momento, los archivos se almacenaban en distintas localizaciones, dificultando las tareas de investigación y divulgación. El proyecto surge, por tanto, con el objetivo de aunar toda esta información en un único edificio que optimice la logística y cumplan los requerimientos contemporáneos de conservación. Para organizar las maquetas y que al mismo tiempo sean visibles se diseñan vitrinas y estanterías especiales. De este modo se abre la posibilidad de que sean accesibles, favoreciendo las labores de investigación y estudio.





















Client
EG Basel Dreispitz
Client Representative: Rapp Arcoplan AG
Herzog & de Meuron Project Team
Partners: Jacques Herzog, Pierre de Meuron, Robert Hösl (Partner in Charge), Wim Walschap.
Project Team: Andreas Reeg (Project Manager), Marc Schmidt (Project Manager, Associate), Jan Ulbricht (Project Manager, Construction Supervisor).
Philip Albrecht, Liliana Filipa Amorim Rocha, Michael Bär (Associate), Janine Bolliger, Luis Guzmán Grossberger, Yuki Hamura, Carsten Happel (Associate), Volker Jacob, Martin Knüsel, Slavcho Kolevichin, David Pfister, Christian Schmitt, Fumiko Takahama, Katharina Thielmann, Christian Voss, Léonie Wenz.
Planning
Project Architect, Construction Management: Herzog & de Meuron; Electrical Engineering: Actemium; HVAC Engineering: Waldhauser + Hermann; Plumbing Engineering: Locher Schwittay Gebäudetechnik GmbH; Structural Engineering: ZPF Ingenieure AG; Building Ecology: Büro für Umweltchemie; Building Physics: Kopitsis Bauphysik AG; Fire Protection: Visiotec Consulting AG; Geometric: Amman AG.
Contractors
Sprinkler: Babberger Brandschutz AG; Lifts: Lift AG; Batter Boards: Xbau AG; Excavation: Rudolf Wirz Strassen- und Tiefbau AG; Shell Work: ARGE Implenia Bau AG and Spaini Bau AG; Roofing: Morath; Fire Alarm System: Siemens Schweiz AG; Fire-protection Doors: Jos. Berchtold; Electrical: Swisspro NW; Windows: Huber Fenster; Windows Housing: Schindler; Scaffolding: Lovecchio; Plaster Works: Canonica + Lotti; Heating: Alpiq InTec West AG; Cavity Floors: AGB Bautechnik; Wooden Shutters: Meier Villiger; Wooden Interior Doors: Dreier AG; Kitchens: Dreba; Ventilation: Alpiq InTec West AG; Paint Works: GP Maler; Metal Construction Works: Von Arx; Emergency Lighting Facility: Inotec Sicherheitstechnik (Schweiz) AG; Parquet Flooring: Britschgi; Slab Works: Ganter AG; Smoke and Heat Venting System: JOMOS Rauchschutz AG; Plumbing: Rosenmund Brandschutz AG; Switchgear: AZ Elektro AG; Locking System: Fritz Blaser; Carpentry: Tschudin; Steel Works: Preiswerk & Esser; Metal Gates: Meier Systems; Concrete Subflooring: J. Sigg AG.
Photos
Robert Hösl; Iwan Baan; Jacques Herzog and Pierre de Meuron Kabinett, photographs by Robert Hösl, photographs by Iwan Baan; Andreas Zimmerman; Andrea Diglas