108 viviendas VPO
Carlos Ferrater OAB- Tipo Vivienda
- Material Aluminio
- Fecha 2015
- Ciudad Hospitalet (Barcelona)
- País España
- Fotografía Joan Guillamat
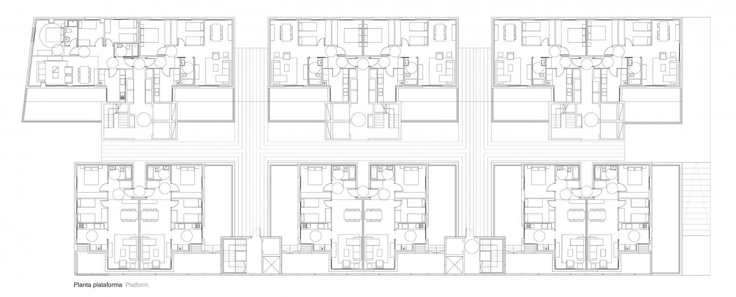
En el municipio barcelonés de Hospitalet de Llobregat, en un enclave privilegiado, tanto por su proximidad al centro de la ciudad como por la accesibilidad a una amplia red de transporte y la fácil conexión a la Ronda de Dalt —vía de circunvalación de Barcelona—, el proyecto contempla el desarrollo de un edificio para 108 viviendas protegidas (VPO).

El solar es de forma trapezoidal, con la única posibilidad de acceder frontalmente desde la Avenida Josep Tarradellas i Joan —dada la ubicación de las vías del tren prácticamente paralelas al bloque posterior—, y no existen viales en los dos laterales, con un desnivel de más de cinco metros entre el nivel ciudad y la plataforma superior. De estas premisas surge la decisión de generar un gran zócalo de 70 metros de longitud en planta baja sobre el que se erigen los bloques residenciales.

Desde cada uno de los tres núcleos se accede a 36 viviendas; la organización del proyecto permite que todas las viviendas estén orientadas al sur y que todas ellas disfruten de iluminación natural y ventilación cruzada.

En planta baja, un local comercial autónomo, vinculado a la primera planta de aparcamiento, ofrece a la ciudad una fachada de materialidad continua que a su vez recogerá salidas de evacuación, instalaciones, ventilaciones… El acceso peatonal a las viviendas se hace a través de dos núcleos centrales de comunicación, con frente a la avenida, enrasados con la línea de fachada. Estos núcleos conectan el nivel de la ciudad con el nivel de la plataforma superior, comunicados con una calle peatonal interior que, a través de patios y recorridos ajardinados conduce a la zona comunitaria posterior. Desde cada núcleo vertical se accede a 36 viviendas pasantes con terraza, del orden de cuatro viviendas por planta, con un total de 108. Existen un total de 91 viviendas de tres dormitorios y catorce de dos dormitorios, incluyendo viviendas adaptadas para personas con movilidad reducida.

Con presupuesto limitado, el proyecto trabaja con una estudiada modulación en fachada, combinando el aluminio, que confiere al edificio una imagen vibrante y cambiante, con paramentos continuos de monocapa blanco.


La volumetría se resuelve mediante tres torres aparentemente exentas como frente principal a la avenida, unidas a un gran bloque lineal, algo menor en altura, que actúa como telón de fondo de la edificación. Dichos volúmenes quedan unidos en el espacio vacío central por los núcleos de comunicación. Esta ordenación permite orientar todas las viviendas al sur y hacia las vistas de la ciudad, disfrutando de medidas pasivas de ecoeficiencia, como son la iluminación natural y la ventilación cruzada.

Las tres torres enfatizan su verticalidad dada su composición y, el elemento de coronación superior, donde se concentran de manera ordenada las instalaciones comunitarias y del local comercial. La desmaterialización de las esquinas del edificio origina una transparencia del escorzo que confiere ligereza a las torres, evocando así la imagen poética del rascacielos miesiano.




Cliente Client
LNC de Inversiones, Premier Inmobiliaria
Arquitectos Architects
OAB Office of Architecture in Barcelona: Carlos Ferrater, Núria Ayala
CC245 Arquitectos: Sergi Blanch, Sandra Rodà
Consultores Consultants
PGI Engineering (instalaciones mechanical engineering); JFG Consultors (estructura structure)
Superficie construida Floor area
18.200 m²
Presupuesto Budget
10.000.000 € (549 €/m²)
Fotos Photos
Joan Guillamat