Foxos housing in Sanxenxo
Carbajo Barrios- Type Housing Collective
- Date 2025
- City Sanxenxo (Pontevedra)
- Country Spain
- Photograph Luis Díaz Díaz
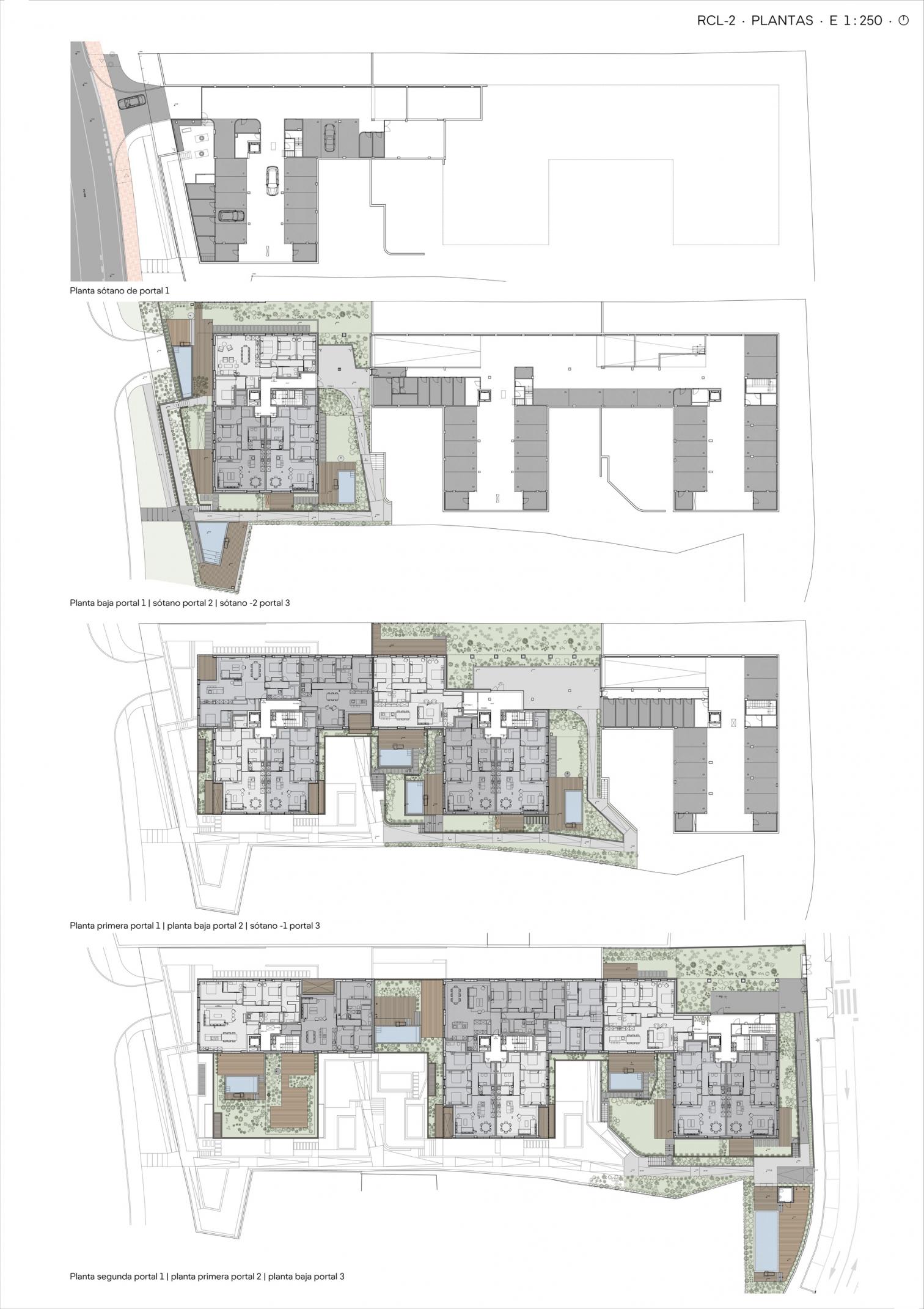
Foxos is a beach located south of A Lanzada, in the municipality of Sanxenxo, Pontevedra. It is an enclave of great environmental and scenic value, defined by a cliff-lined coastline crowned by gentle hills that form a unique natural environment. This is the setting of a residential complex planned and built on four adjacent but independent plots, adapted to the particular physical characteristics of each one.
Two of these plots are located next to the road that runs parallel to the coastline, while the other two are set higher. The plots near the coastal road address the steep slope of the terrain through different solutions: plot RCL1 functions as a large retaining wall stabilizing the hillside, while RCL2 is resolved by a sequence of staggered volumes that follow the natural topography. The higher plots, RCL3 and RCL4, rest directly on the ground to maximize use of the surrounding free space.
The formal diversity, with buildings of varying heights, ensures that all the homes have private outdoor spaces, either at ground level or on accessible rooftops. The concrete structures are clad in heat-treated wood, the texture of which changes depending on the use of the space inside, acting as an opaque enclosure, a filter, or a solar-protection element.
Completing the premises is a carefully thought-out treatment of the open spaces, drawing inspiration from the vegetation around. Native species are arranged in such a way that they echo coastal formations, with green-gray tones in dialogue with the materials used in the buildings.























