Transformation of an old mill in Shrewsbury (England)
Feilden Clegg Bradley Studios- Type Refurbishment Culture / Leisure Museum Headquarters / office
- Date 2023
- City Shrewsbury (England)
- Country United Kingdom
- Photograph Daniel Hopkinson
- Brand Schüco
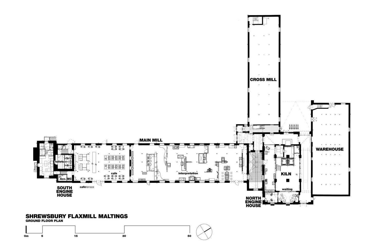
Shrewsburg Flaxmill Maltings was originally built in 1797 and served different purposes in the course of time, including as military barracks during World War II. The site closed in 1987. A work of Charles Bage, the listed building is known as the ‘grandparent of skyscrapers’ because of its cast-iron frame. The British firm Feilden Clegg Bradley Studios (FCBS) was commissioned to restore its structure to harbor a museum on the history of buildings and offices.
The project’s main objective was to invisibly repair the fragile frame, which had suffered cracking but could not be radically modified because of the building’s listing as a protected heritage site. Reinforcing the masonry around the existing iron, installing a hidden steel grillage, and adding columns on the ground floor together strengthened the structure while retaining its unique pioneering character and value. Besides this structural upgrading, other operations were carried out, especially in the design of the windows and in the matter of integrating the new uses.
The vertical circulation elements are located in the building’s furnace, with elevators, a staircase of black steel, and footbridges, under a ceiling restored with wood and steel. Access to the tower has been provided, so visitors can go up for views of the city.

















