Revitalization of Place Lalla Yeddouna in Fez
Mossessian Architecture Yassir Khalil Studio- Type Refurbishment
- Date 2019
- City Fez
- Country Morocco
- Photograph Amine Houari Rebecca Dalzell
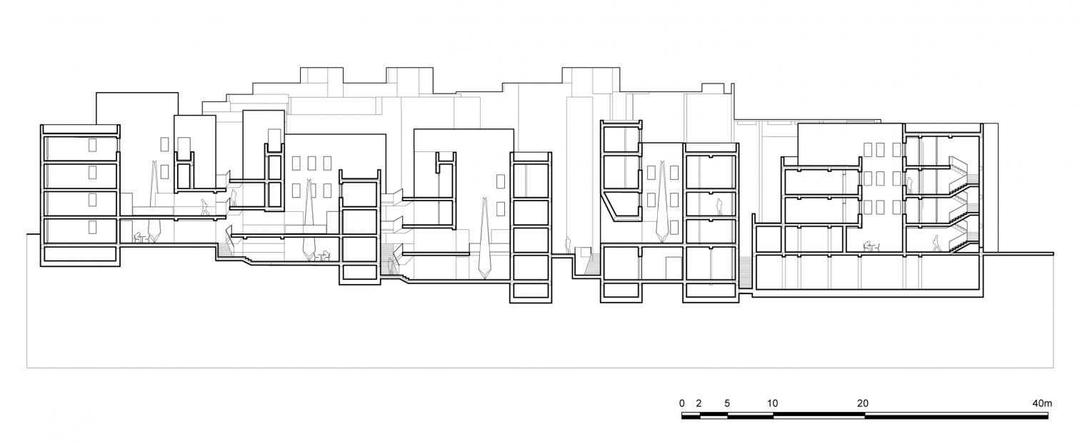
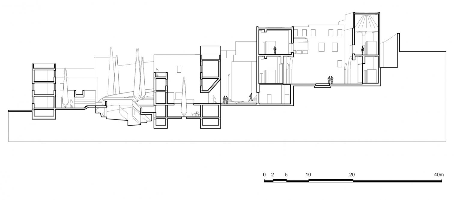
The Medina of Fez – one of Morocco’s oldest cities, often called its cultural capital – was named a UNESCO World Heritage site in 1981. An ambitious urban-regeneration project has revitalized Place Lalla Yeddouna and its surroundings, in accordance with a scheme drawn up by Mossessian Architecture and Yassir Khalil Studio that won the 2011 competition held for the purpose.
The project’s main objective was to reconnect the square to the river that flows through the medina by creating a pedestrian route along craft workshops, stores, restaurants, educational programs, a daycare facility, and a women’s center, in the process not only respecting the complexity of the urban fabric but also strengthening the community’s social and cultural ties. It also sought to improve the area’s environmental quality by recalibrating the riverbed, which had been used as a garbage dump. This in turn resulted in better management of floods and better integration of the river into the urban experience.
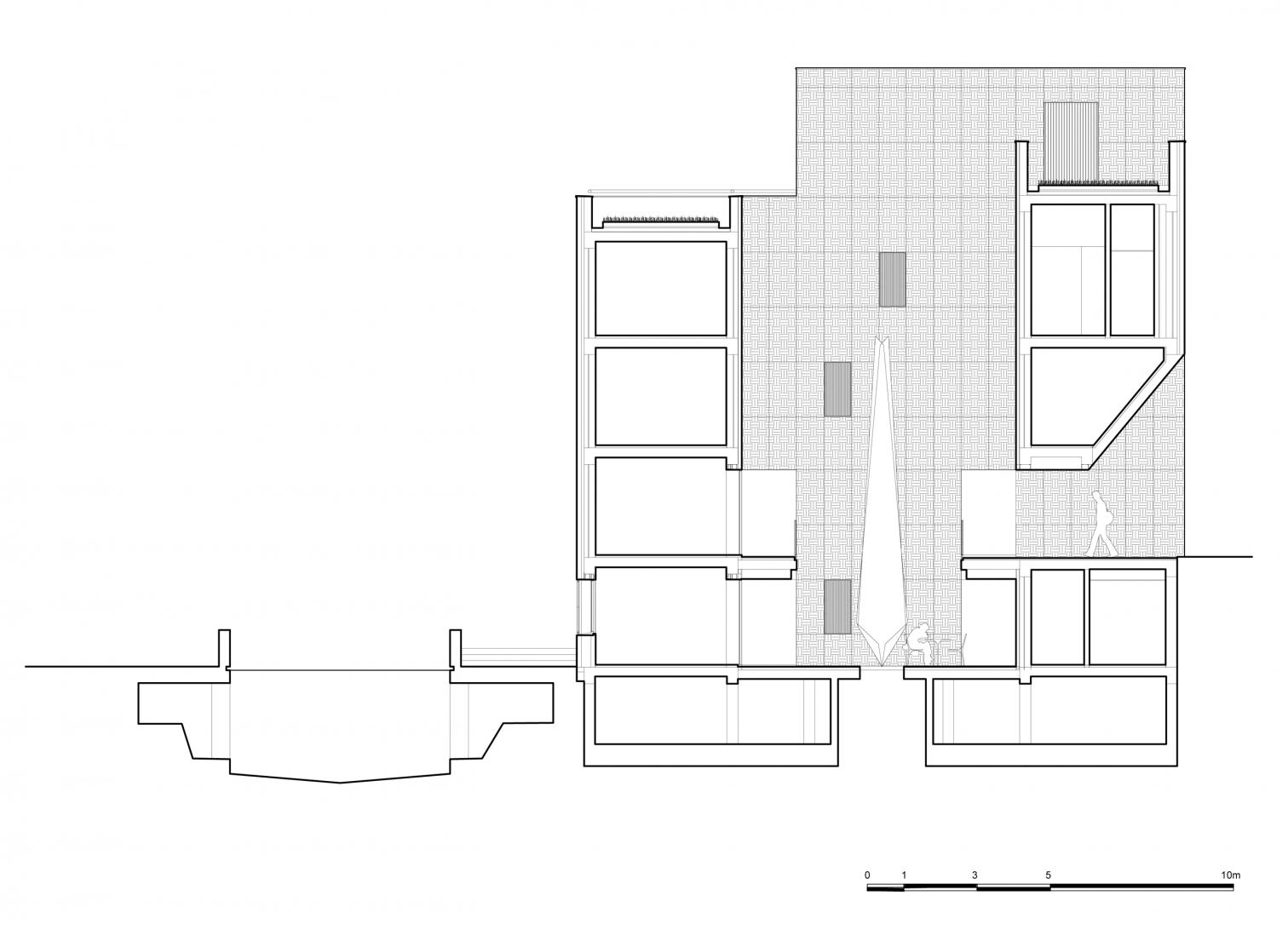
Standouts in the project, among other things, are the revamp of the old bridge and that of eleven existing buildings, along with the construction of nine new ones, always combining traditional construction techniques with contemporary sustainability strategies like passive climate-control through thermal mass, cross ventilation, and natural shading, guaranteeing year-round comfort with low energy consumption.
Also distinctive is the use of ceramic tiles. In collaboration with local artisans the British artist Michael Pinsky designed a signage system based on the evolution of Fez’s art of zellige, an ancestral way of making decorative mosaics with tiles of glazed terracotta, hand-chiseled and hand-polished to create geometrical patterns. In this new project, the tiles – manufactured locally – range from traditional Moroccan patterns to contemporary abstract shapes, and serve as visual markers to visitors making their way through the premises.
The Lalla Yeddouna project provides a model for urban regeneration based on respect for heritage, sustainability, and community involvement. Through a combination of local materials, traditional building techniques, and environment-sensitive design, a historical spot has been revived as a place profoundly rooted in its cultural identity.

Foto: Mossessian Architecture y Yassir Khalil Studio

Fotos cortesía de Aga Khan Trust for Culture







Foto: Mossessian Architecture y Yassir Khalil Studio

Foto: Mossessian Architecture y Yassir Khalil Studio













Mossessian Architecture

Obra Work
Revitalización de la plaza Lalla Yeddouna, Fez (Marruecos)
Revitalization of Place Lalla Yeddouna, Fez (Morocco)
Arquitectos Architects
Mossessian Architecture+Yassir Khalil Studio
Consultores Consultants
Michael Pinsky (mosaista zellige artist); Atelier Ten (instalaciones y diseño ambiental MEP services and environmental design); AKT II (estructura structure); Groupe Betom (ingeniería engineering); Roche (ingeniería hidráulica hydraulic engineering); Millennium Challenge Corporation (microeconomía microeconomics)
Contratista Contractor
HTECH (obra nueva new constructions); Locatom’s, EMCC & BADR BETON (rehabilitación renovation)
Superficie Area
7.400 m²
Fotos Photos
Mossessian Architecture+ Yassir Khalil Studio; Rebecca Dalzell; Amine Houari; Ambre Orsatelli