Modernization of the Universidad Católica Stadium in Santiago
IDOM- Type Sport Stadium
- Date 2025
- City Santiago de Chile
- Country Chile
- Photograph Cristóbal Palma
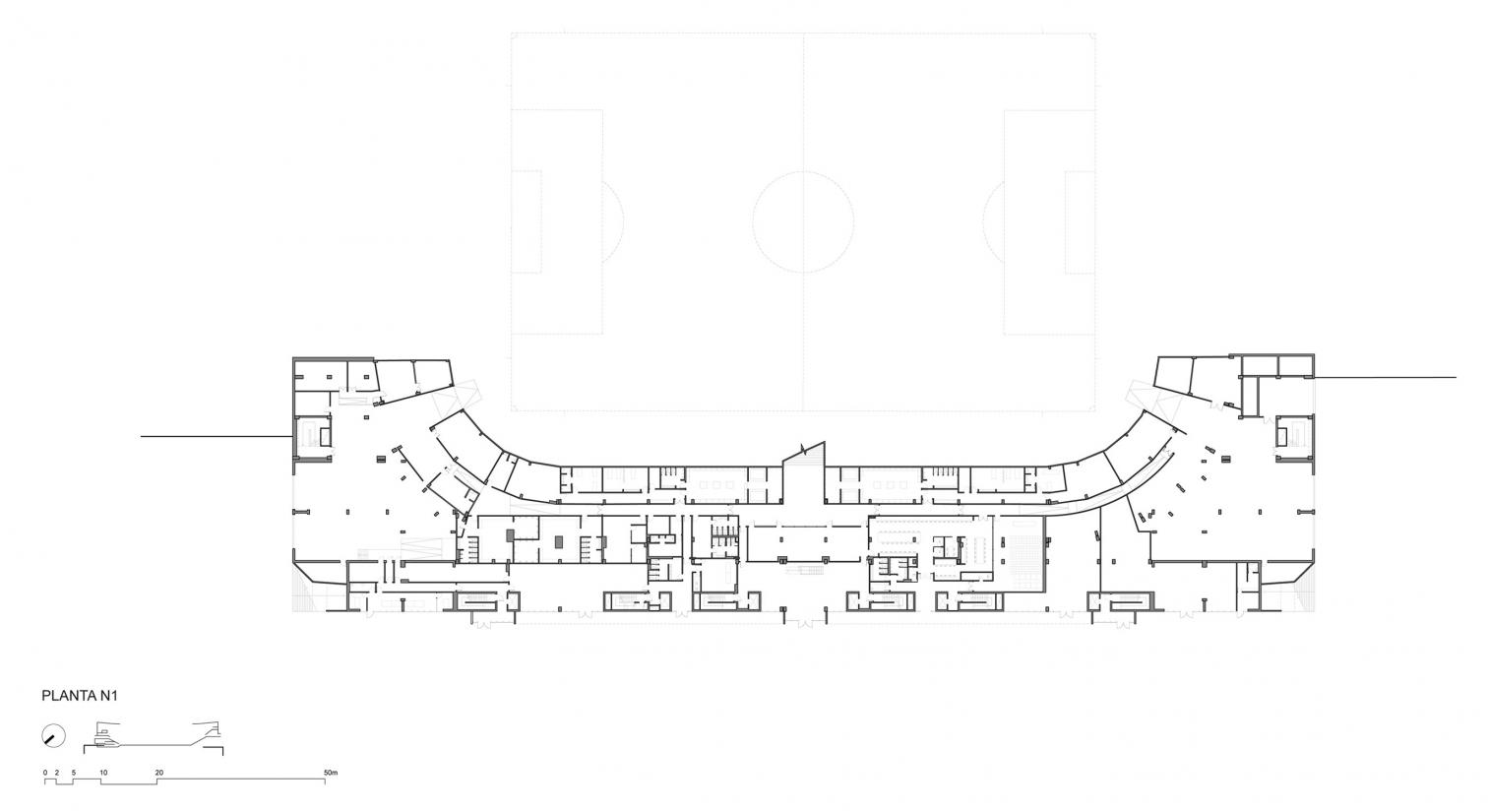
Inaugurated in 1988 and located in the Las Condes district of Santiago, Chile, the San Carlos de Apoquindo Stadium, now called the Clara Arena, has been expanded to raise its capacity from 12,000 to 20,000 spectators. For this home of the Universidad Católica’s football team, a competition was organized, and the result was a project signed by IDOM, led by Borja Gómez and César Azcárate and focused on sustainability, efficiency, and the idea of a full experience for the public.
Much of the arena’s original character has been preserved, including the concrete structure. The existing structure is almost intact, and a perimetral boulevard leveled with the east band (Fouilloux) has been built on it, defining the accessways and connecting all areas. Under this level is the old bowl, anchored to the ground, while over it rises a light structure bearing the expansion. The roof of spans of up to 31 meters combines timber and steel in addressing seismic requirements.
The renovation maintains 95% of the original stand’s views, and adds galleries and boxes. The Livingstone sector to the west houses press rooms, technical areas, and hospitality spaces. The envelope, composed of vertical slats of laminated pinewood with LED lighting, varies in accordance with orientation and includes solar and acoustic panels.
The project applies integral circular-design strategies, reuses concrete, recycles steel and plastic, and reutilizes 1,600 m³ of Chilean timber that captured at least 1,500 tons of CO₂.

























