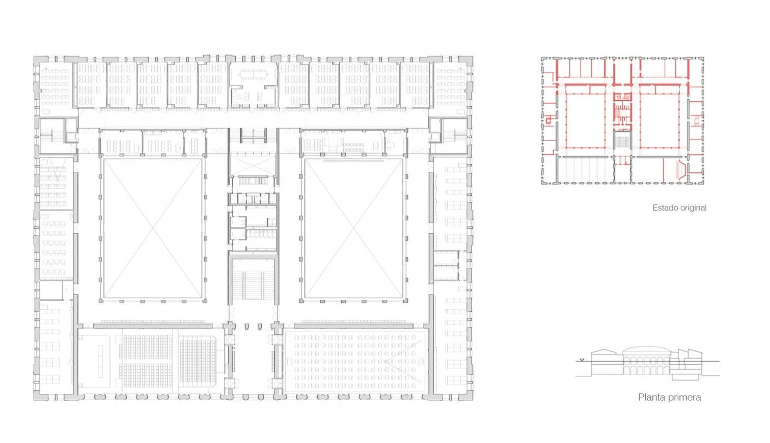
IES Práxedes Mateo Sagasta in Logroño
Virseda-Vila Arquitectos Miguel Ángel Cámara Miguel Fernández Rueda- Type Renovation Education School and High-School
- Date 2023
- City Logroño
- Country Spain
- Photograph Pedro Pegenaute Adriana Martínez
- Brand Dragados Qoda Construcciones
Located in downtown Logroño, this public secondary school was thoroughly revaped to create sports facilities, exhibition halls, an auditorium, and a multipurpose classroom that all citizens would have access to. The original building was characterized by the large scale of its interiors. Reconstructed almost entirely, three of the perimetral bays accommodate the public uses and the large educational spaces. Defined by a lightweight metal construction, the fourth bay to the south was emptied completely and restructured on plan and section, and a floor was added for more classrooms. Municipal restrictions and preservation guidelines determined that the exterior be left as it was, so the necessary new entrances for natural light are on the roof.














