KAIT Plaza, Atsugi
Junya Ishigami + associates- Type Education Landscape architecture / Urban planning University
- Material Metal Steel
- Date 2020
- City Atsugi
- Country Japan
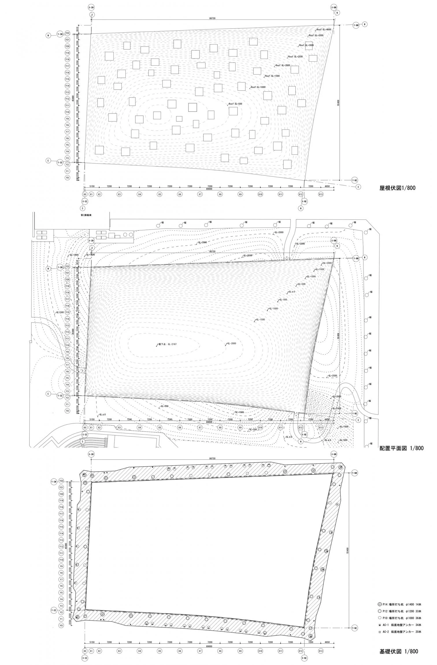
A semi-exterior void forms a public square for the enjoyment of students of the Kanagawa Institute of Technology, a university center which had no hesitations assigning this new project to the architect who had completed some dazzling workshops on the same campus. A continuous tapestry gently adapts to the irregular terrain and invites visitors to take over the space as they please. The undulating roof spreads not far over them, tensing the relationship between floor and ceiling.
Bringing the definition of versatility to an extreme, the roof spans extraordinary distances without interior supports, thereby protecting an uninterrupted space that feels like outdoors thanks to huge rectangular perforations above. Executed with welded steel plates hardly 12 millimeters thick, this velarium of sorts dilates and contracts in accordance with the temperature and opens up to a sky that intensifies the user’s shifting spatial experience.











