Xinjin Zhi Museum, Chengdú
Kengo Kuma- Type Culture / Leisure Museum
- Material Stone
- Date 2008 - 2011
- City Chengdu
- Country China
- Photograph Daici Ano
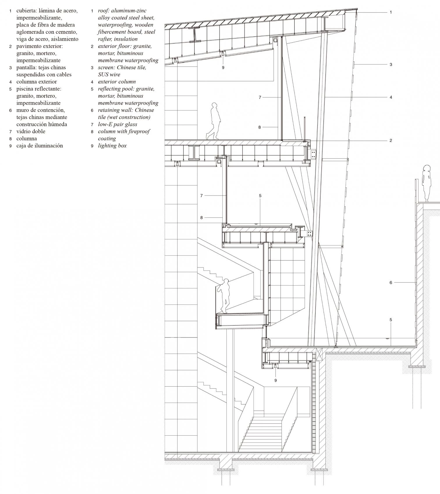
Revestido mediante una piel permeable de piezas cerámicas, el museo Xinjin Zhi se ubica al pie de la montaña Laojunshan, en el suroeste del país, y actúa como puerta de entrada a este lugar sagrado taoísta, mostrando la esencia de la doctrina a través de sus espacios y exposiciones.
Las tejas que envuelven el museo están fabricadas con material local según un método tradicional de la región. Sin embargo, en lugar de disponerse de forma convencional, cada pieza flota en el aire suspendida mediante tirantes de acero. De esta forma, se genera una piel ligera que permite el paso de la luz y caracteriza cada una de las fachadas. En el lado este, el conjunto de cables gira, conformando una superficie alabeada que se corresponde con el dinamismo de la carretera; mientras que en el frente norte, la misma piel atirantada se desarrolla en un sólo plano, ofreciendo una imagen estática hacia la explanada peatonal. Por su parte, el alzado sur se divide en dos bandas que rotan entre sí para adaptarse a los distintos niveles. En el interior, los espacios de exposición siguen una trayectoria en forma de espiral a través de rampas que recorren el perímetro y guían al espectador desde las salas más oscuras hacia las más luminosas. Finalmente, en la última planta, se puede disfrutar de una vista panorámica del paisaje.




















Cliente Client
Fantasia Group
Arquitecto Architect
Kengo Kuma & Associates
Colaboradores Collaborators
Oak Structural Design Office (estructura structural engineers); P.T. Morimura & Associates, Ltd. (instalaciones mechanical engineering)
Contratista Contractor
Shenzhen Decoration & Construction
Industrial Co., Ltd.
Fotos Photos
Daici Ano