Magnifica Fabbrica for the Teatro alla Scala in Milan - FRPO + Walk + SD Partners
First PrizeThe Italian-Spanish team formed by FRPO Rodríguez y Oriol Arquitectos (Pablo Oriol, Fernando Rodríguez), Walk Architecture & Landscape (Juan Tur Mc Glone), and SD Partners (Massimo, Giuliani, Alessandro Viganò, Beatrice Meroni) placed first in the Magnifica Fabbrica international competition organized by the Milan City Hall and Fondazione Teatro alla Scala.
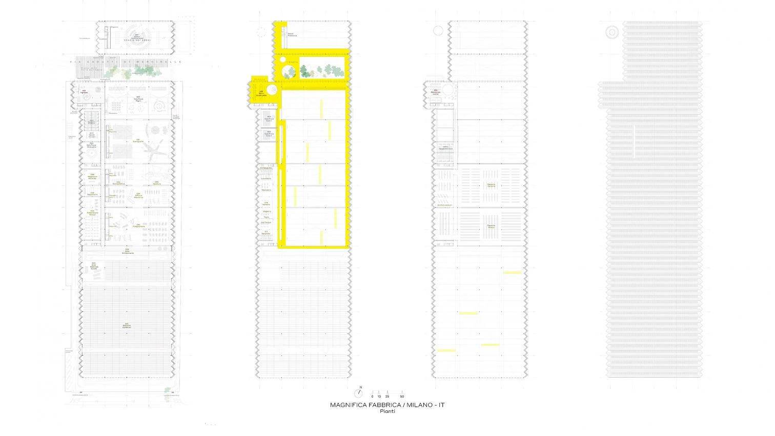
The objective of the competition – which was carried out openly and anonymously in two phases, garnering a total of 59 entries – was to build a new complex for the Teatro alla Scala – with workshops for the making of stage sets, props, atrezzos, and costumes, as well as rehearsal, dressing, and storage rooms – and expand the Parco della Lambretta with the inclusion of the so-called Palazzo di Cristallo, ultimately to revamp the area around the old Innocenti automobile factory in the Lambrate district, which is undergoing an entire urban regeneration process. Encompassing a built area of 66,450 square meters and a parkland area of 97,800, the project seeks to create a new cultural, artistic, and production hub, bringing together all stages of the creative process, from design to production, while drawing the citizenry closer to the theater world.
La Magnifica Fabbrica will be a ZEB (Zero Energy Building), producing more energy than it consumes, thanks to a 3600 kW photovoltaic system on the translucent roof and a gigantic open-cycle geothermal system that will help purify underground waters.
Also in the multidisciplinary team are Studio Gibelli, engineer Luca Stefanutti, Agroservice, TRM, and Mecanismo Ingeniería.

Images Supernova Visual
























FRPO + Walk Architecture & Landscape + SD Partners
Directores proyecto Project leaders
Pablo Oriol, Fernando Rodríguez (FRPO Rodríguez y Oriol); Juan Tur Mc Glone (Walk Architecture & Landscape); Massimo Giuliani, Alessandro Viganò, Beatrice Meroni (SD Partners)
Equipo Team
Adrián Sánchez Castellano, María Díaz Martín, Carlos Crespo Díaz-Meco, Pablo González-Besada Allue (FRPO Rodríguez y Oriol); Carlos Javier Villar Villalobos, Madhura Hardas, Adriano Barrero Chirino (Walk Architecture & Landscape; Ing. Enrico Moncada, Arch. Carmen Iannone, Arch. Irene Degli Occhi (SD Partners)
Consultores Consultants
Studio Gibelli, Ing. Luca Stefanutti, Agroservice, TRM, Mecanismo Ingeniería
Imágenes Images
Supernova Visual