Snow Peak Field Suite Spa Headquarters in Sanjo
Kengo Kuma- Type Hotel
- Material Wood Earth Cortén steel
- Date 2018 - 2022
- City Sanjo
- Country Japan
- Photograph Katsumasa Tanaka
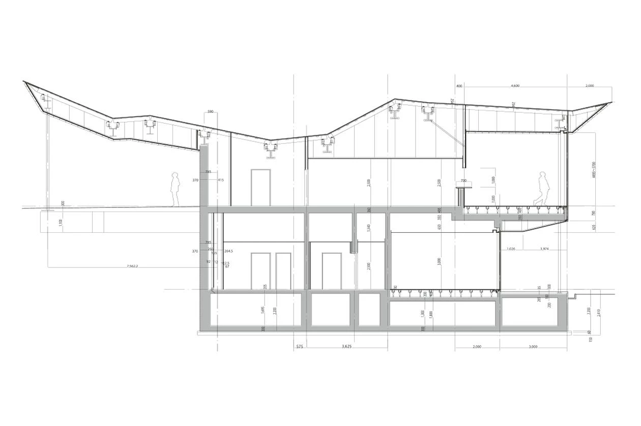
Founded in the year 1958, Snow Peak is a manufacturer of climbing apparel and gear with headquarters in the region of Niigata, a popular spot for winter activities like skiing and visits to the traditional hot springs called onsen. The mountainous landscape provided inspiration for the brand’s philosophy of fostering closer contact with nature, and also supplied the setting for the company’s main offices, with accompanying open fields – all of 15 hectares – where employees can test equipment and practitioners of the outdoors can set up camp. A small hotel complex that includes a spa and a restaurant has now opened close by with the idea of replicating the camp experience, but with more comforts.
All of the resort’s facilities come under one same roof whose origami-like folds echo the craggy silhouette of Awagatake, a mountain that rises in the distance, and which presents generous eaves clad in 20,000 pieces of firewood, a material also used as cladding inside. The rooms do their part in reinforcing the engagement with the environment, through clayey finishes coated with soil collected from the site during construction, core-ten steel with a rustic look, and elements brought in for reuse from a local hardware factory.








Arquitectos Architects
Kengo Kuma & Associates; Jun Shibata, Toshiro Ota, Rue Critchfield, Kimio Suzuki, Lee Yuen Yin, Fumitake Suzuki (equipo team)
Colaboradores Collaborators
Ejiri Structural Engineers (estructura structure); Kankyo Engineering (instalaciones MEP services); Green Wise (paisajismo landscape)
Contratista Contractor
Shimizu Corporation
Superficie Area
2.035 m²
Fotos Photos
Katsumasa Tanaka