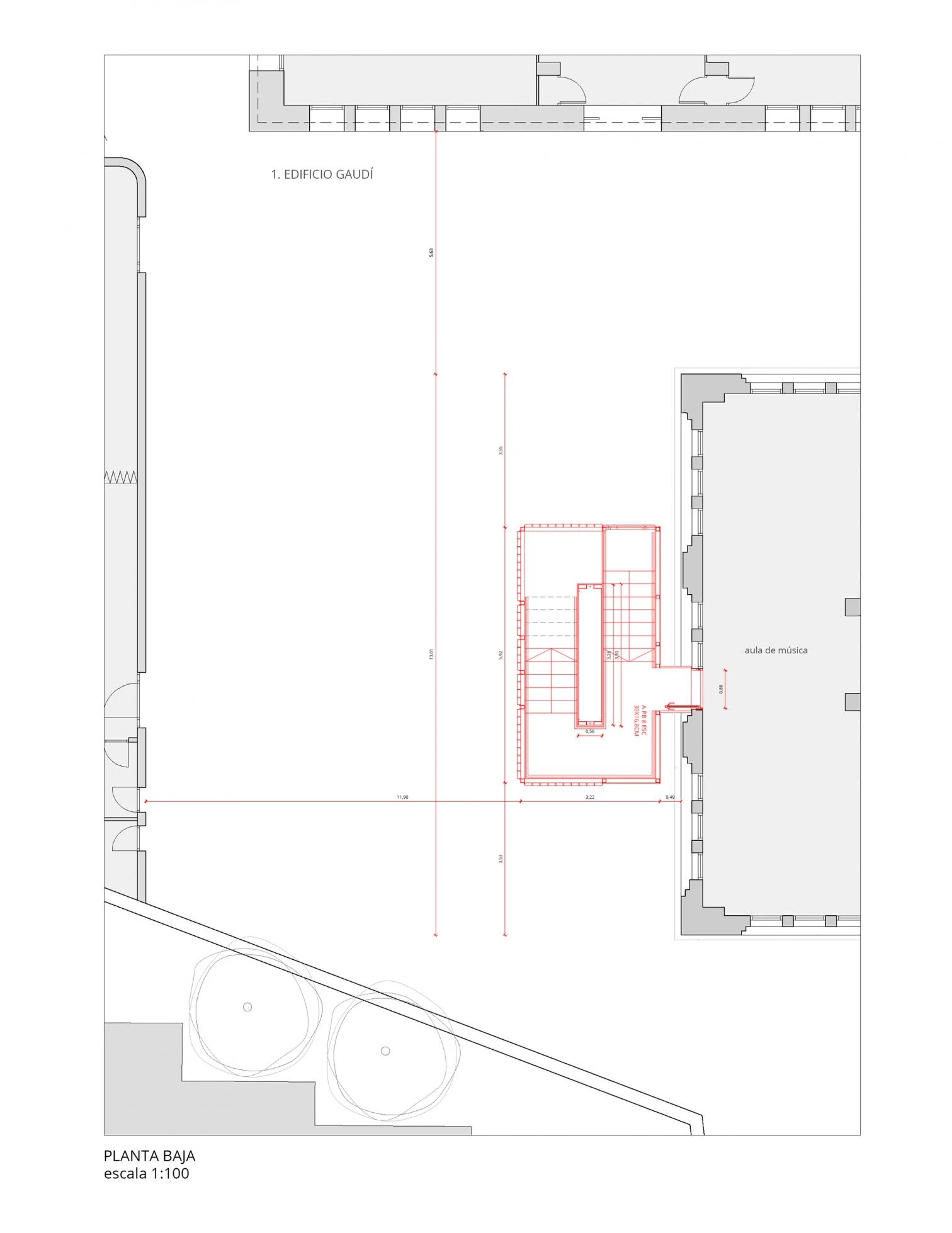
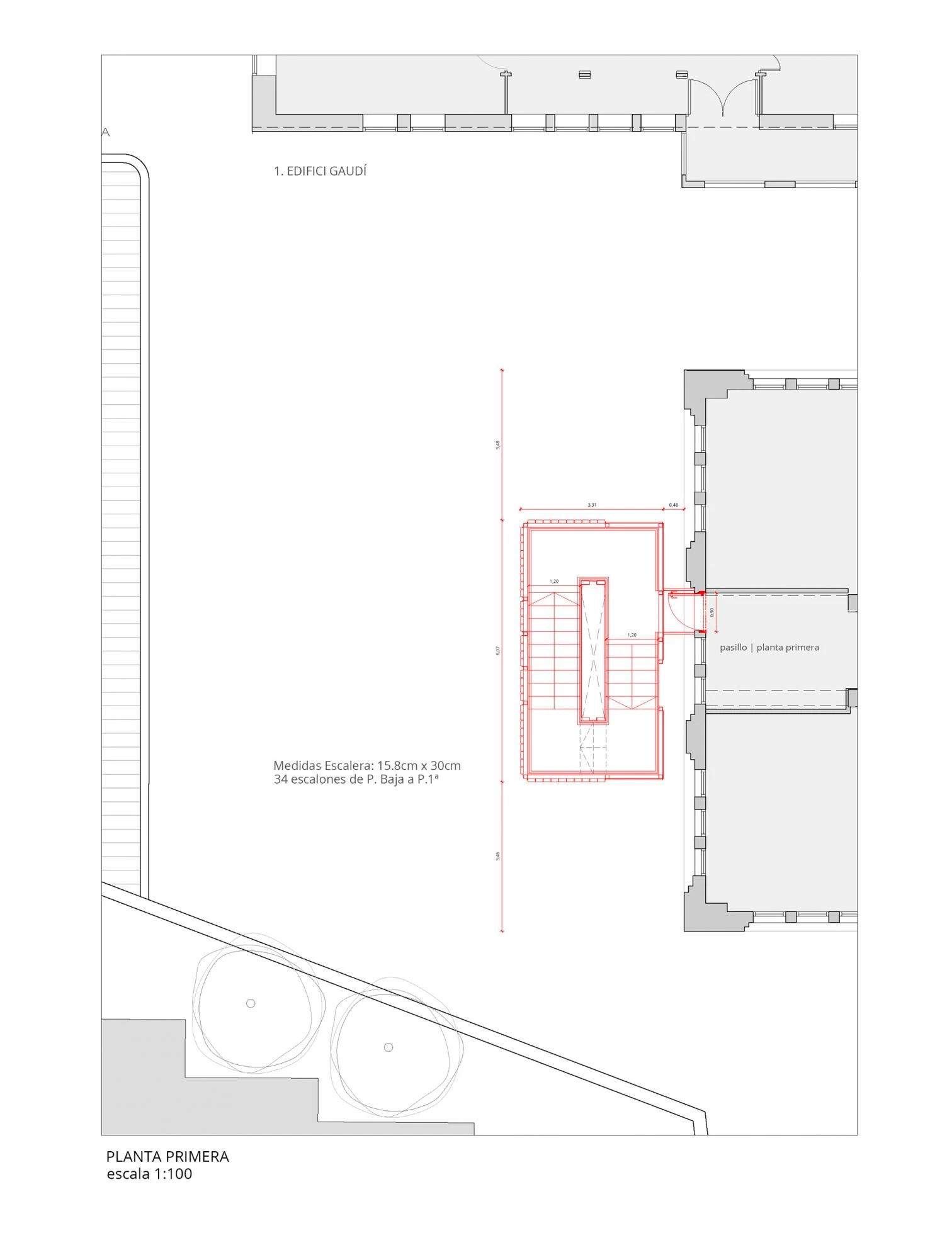
Escape stairs in the listed Teresianas Ganduxer area, Barcelona
Picharchitects/Pich-Aguilera- Material Ceramics Brick
- Date 2022
- City Barcelona
- Country Spain
- Photograph Simón García
- Brand Pladur LafargeHolcim
If Gaudí makes it to the altars of sainthood, he will find himself in the company of his friend Enrique de Ossó, founding father of the Teresian Sisters and the man who had the good taste to entrust the design of his school-convent to an innovative, besides pious, architect. Gaudí assimilated the Gothic of Eastern Spain freely, and with Violletian lucidness raised the first part of an educational complex that is still growing today. The need to adapt the facilities to current safety regulations made it necessary to build a fire-exit staircase in a pavilion attached to the original building, whose rhythm and material makeup are echoed by a metal cage detached from the facade but respecting it, and clad with a lattice of traditional ceramic bond.













