One Za'abeel in Dubai
Nikken Sekkei- Type Tower
- Material Glass
- Date 2023
- City Dubai
- Country United Arab Emirates
- Photograph Koji Horiuchi Hufton + Crow
- Brand Otis Tarkett
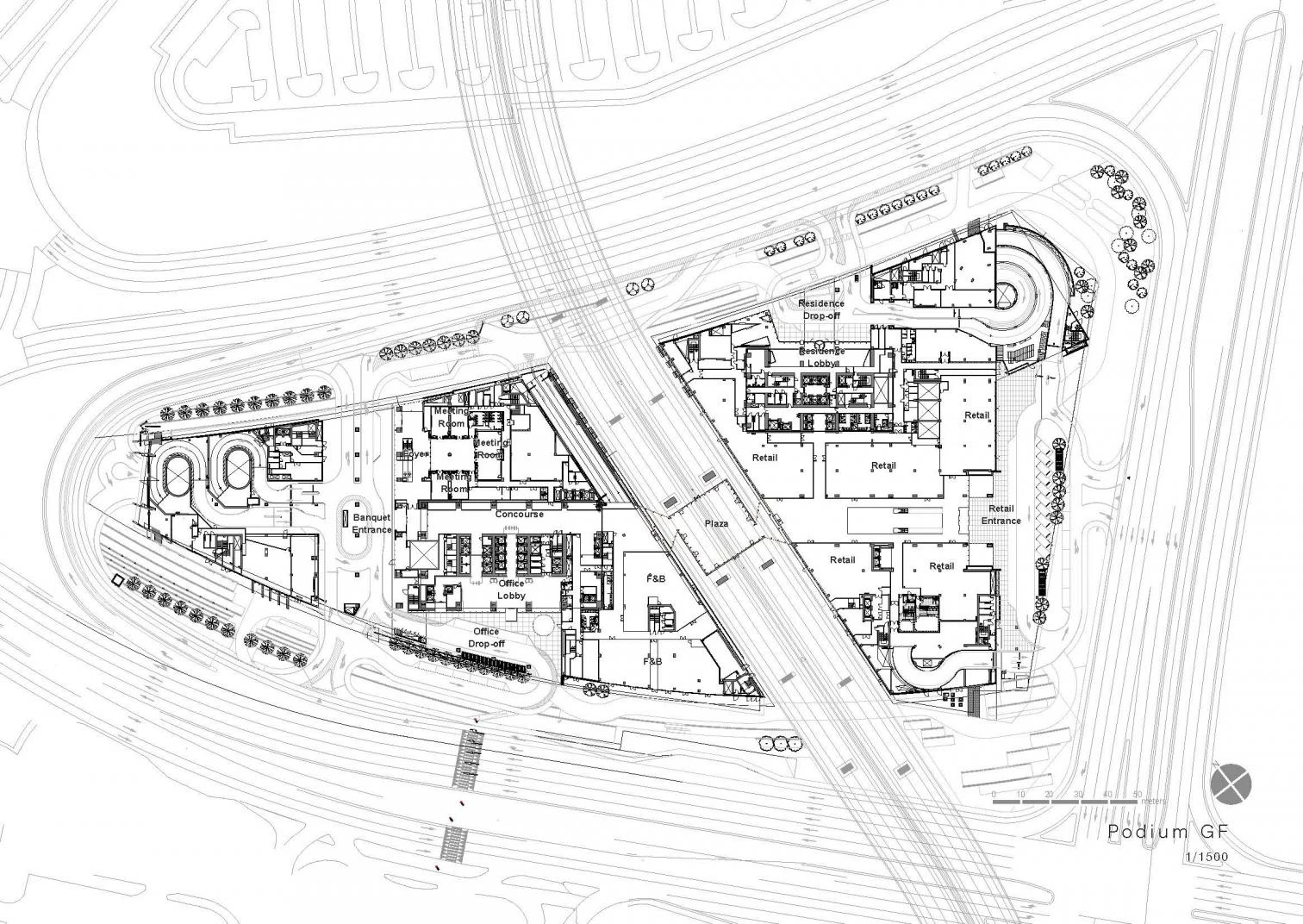
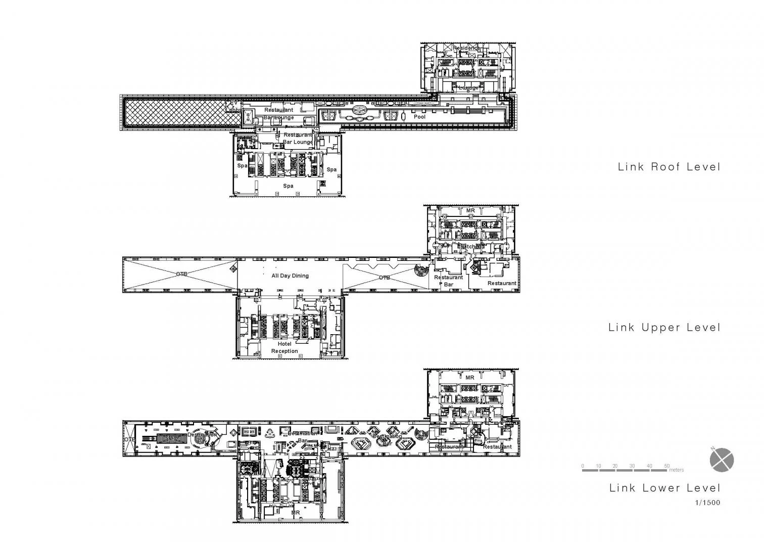
Stretching 67.5 meters, what is now the longest cantilever in the world cuts a figure between two skyscrapers of the One Za’abeel mixed-use development in Dubai. This horizontal structure weighing approximately 9,580 tons floats 100 meters above ground and boasts a 230-meter-long observation platform. The Link – as it is called – connects the towers, which stand all of 305 and 235 meters, respectively. It beats the 66.5-meter viewing deck of Marina Bay Sands in Singapore.
Crowned with an infinity pool, The Link is fastened to the towers at two points, increasing their structural stability by counteracting the wind-caused rocking problems typical of high-rises. Because the towers stand on both sides of a six-lane motorway, the Japanese firm Nikken Sekkei designed what serves as a bridge between them. With a total area of 530,700 square meters, the complex contains offices, urban hotel accommodations, luxury apartments, and retail spaces.
Inside The Link are three levels of restaurants and bars, all column-free thanks to a diagrid structure. Its main steel components are organized diagonally along the four sides, reducing torsion and deformation, while allowing a large uninterrupted interior space.

















