NEAC Visitor Center in Margraten
KAAN Architecten- Type Religious / Memorial Cemetery
- Material Concrete
- Date 2023
- City Margraten
- Country Netherlands
- Photograph Simon Menges
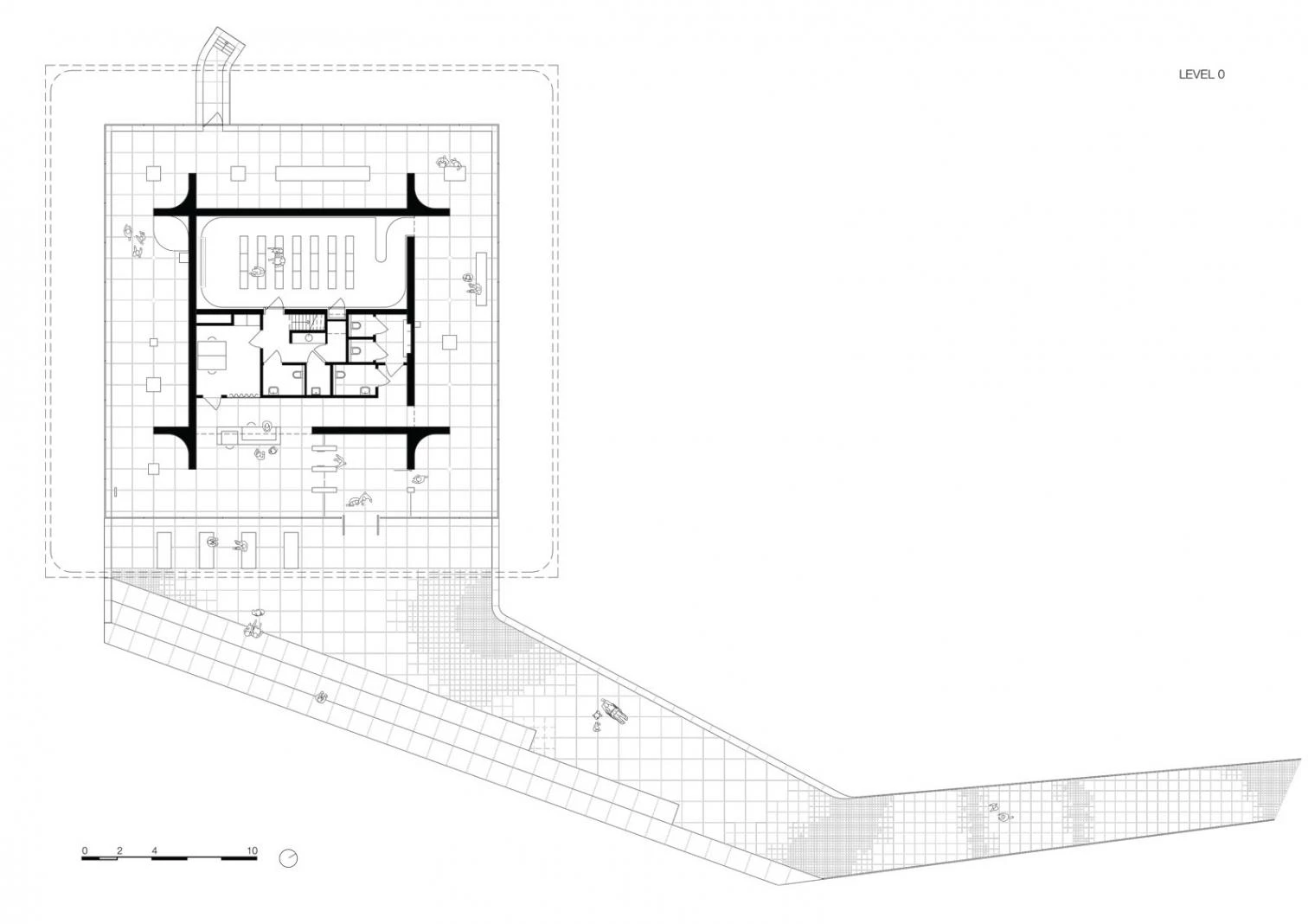
KAAN Architecten was commissioned to design a visitor center for the Netherlands American Cemetery (NEAC), the only World War II U.S. graveyard on Dutch soil. The new building blends respectfully into the premises, partly sunken into the sloping hillside of Heuvelland, which is located in the province of Limburg, near Maastricht.
The concrete facade seems to float over the terrain. The entrance plaza and the construction are embedded into the ground in a gentle descent. The structural walls form a 12x12-meter square that bears the weight of the facade. An auditorium is fitted inside this square, while the outer walls delimit perimetral spaces for exhibitions.





















Cliente Client
American Battle Monuments Commission (ABMC)
Arquitectos Architects
KAAN Architecten/Kees Kaan, Vincent Panhuysen, Dikkie Scipio
Equipo Team
Rita Alessio, Alessandro Arcangeli, Bas Barendse, Alice Colombo, Thomas Hagemeijer, Adam Kelly, Nicki van Loon, Edoardo Mancini, Alexis Oh, Frane Stancic
Consultores Consultants
Karres+Brands landschapsarchitecten (paisajismo landscape); Pieters Bouwtechniek (estructura structural designer and supervisor); Smits Rinsma (diseño civil civil designer and supervisor); HP Engineers (diseño mecánico MEP designer and supervisor); DGMR (física, seguridad incendios y acústica building physics supervisor, fire safety and acoustics); B3 Bouwadviseurs (presupuesto building costs advisor); INEX Architecten (coordinación local site coordination supervisor); Groep Van Roey (contratista principal main contractor); DeClerk & Partners (estructura structure); C.T. de Boer (contratista structure contractor); Deltha (ingeniería mecánica mechanical engineer); Maris (ingeniería eléctrica electrical engineer); Dirix (ingeniería civil civil engineer)
Fotos Photos
Simon Menges