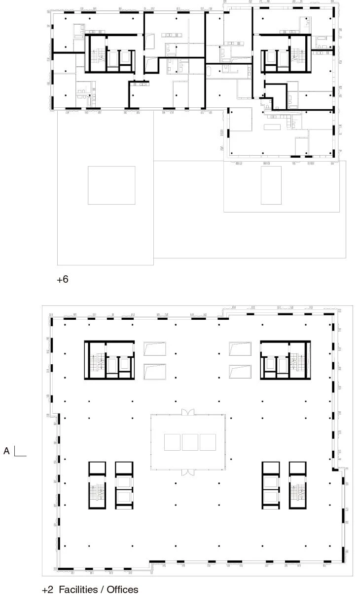
Meret Oppenheim Tower, Basel
Herzog & de Meuron- Type Collective Housing Tower
- Material Aluminum Metal
- Date 2013 - 2019
- City Basel
- Country Switzerland
- Photograph Adriano Biondo
SBB is one of the largest landowners in Switzerland. This national railway company owns land in prime locations of the urban centers across the country. This previously underutilized potential of real estate has been increasingly developed in the last years, densifying the urban centers around the main stations. Such an urban renewal project is the Meret Oppenheim Tower, located in the Gundeldinger Quarter of Basel. The tower is part of the Südpark ensemble – also promoted by SBB and completed by Herzog




















Client
SBB Schweizerische Bundesbahnen Immobilien
Client Representative: Christian Märki, SBB Schweizerische Bundesbahnen Immobilien
Herzog & de Meuron Project Team
Partners: Jacques Herzog, Pierre de Meuron, Robert Hösl (Partner in Charge)
Project Team: Patrick Holl (Project Manager), Thomas Rodemeier (Project Architect), Florian Hartmann (Project Architect).
Giorgio Azzariti, Frédéric Beaupère, Franz Bittenbinder, Benjamin Engelhardt, Oliver Franke, Judith Funke, Edurne Bona Gallego, Sara Jiménez Núñez, Hamit Kaplan, Ewa Kaszuba, Oxana Krause, Dennis Marsch, Carolin Meier, Magnus Möschel, Antje Paetz, Artemis Pefani, Bálint Rigó, Jorge Sotelo, Eric Stutz, Julian Vogt, Jean Paul Willemse, Yang Yu, Claudia Zipperle.
Planning
General Planning: Drees & Sommer (2013-16); Construction Management: Drees & Sommer Schweiz GmbH (2013-16); Structural Engineering: Weischede Herrmann und Partner GmbH (2013-16), Schnetzer Puskas (from 2016); Building Physics: Drees & Sommer (2013-16), Kopitsis Bauphysik AG (from 2016); Electrical Engineering: Pro Engineering AG, Basel (from 2013); Facade: Drees & Sommer (2013-16), Neuschwander + Morf AG (from 2016); Fire Protection: Hpp Berlin Ingenieurgesellschaft (2013-16); A+F Brandschutz GmbH (from 2016); HVAC: Thurm & Dinges Planungsgesellschaft mbH (2013-16), Gruner Gruneko AG (from 2016); Transport: Rapp Infra AG.
Contractors
General Contractor: HRS Real Estate AG (from 2013)