De Rotterdam Building, Rotterdam
OMA - Office for Metropolitan Architecture- Type Commercial / Office Hotel Landscape architecture / Urban planning Tower
- Date 1997 - 2013
- Country Netherlands
- Photograph Ossip van Duivenbode
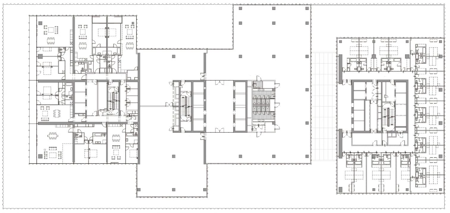
De Rotterdam is conceived as a vertical city: three interconnected mixed-use towers accommodating offices, apartments, a hotel, conference facilities, shops, restaurants, and cafes. The towers are part of the ongoing redevelopment of the old harbor district of Wilhelminapier, and aim to reinstate the vibrant urban activity once familiar to the neighborhood. The three towers reach 150 meters high, with a gross floor area of approximately 162,000 m², making De Rotterdam the largest building in the Netherlands. However, more than sheer size, urban density and diversity – both in the program and the form – are the guiding principles of the project. De Rotterdam’s stacked towers are arranged in a subtly irregular cluster that produces intriguing new views from different perspectives. The various programs are organized into distinct blocks, providing both clarity and synergy: residents and office workers alike can use the fitness facilities, restaurants, and conference rooms of the hotel. And these private users of the building have contact with the general public on the ground floor, with its waterfront cafés. The lobbies for the offices, hotel, and apartments are located in the plinth – a long elevated hall that serves as a traffic hub for a wide variety of users.






















Clients
De Rotterdam CV, The Hague (Joint venture MAB, The Hague / OVG, Rotterdam)
Program
Total 162,000 m²: offices 72,000 m²; 240 apartments 34,5000 m²; hotel (278 rooms) / congress / restaurant 19,000 m²; retail / F&B 1,000 m²; leisure 4,500 m²; parking (approx. 650 vehicles) 31,000 m²
Architects
Partners in charge: Rem Koolhaas, Reinier de Graaf, Ellen van Loon. Associate in charge: Kees van Casteren. Team 1997–2001 (50% SD): Christina Beaumont, Stefan Bendiks, Frans Blok, Robert Cheoff, Bert Karel Deuten, Sharon Goren, Juan Guardetti, Jens Holm, Alex de Jong, Adam Kurdahl, Carolien Ligtenberg, Anna Little, Nuno Rosado, Saskia Simon, Johan de Wachter, Barbara Wolff. Team 2007–08 (50% SD – building permit): Chantal Aquilina, Eva Dietrich, Anita Ernödi, Markus Frank, Jonah Gamblin, Clarisa Garcia-Fresco, Alex de Jong, Michel van de Kar, Christoph Michael, Elida Mosquera, Mauro Parravicini, Ippolito Pestellini Laparelli, Raphael Pulido, Louise Sullivan, Olaf Turck, Manuel Villanueva, with: Chun Chiu, Duncan Flemington, Evangelos Kotsioris, Sören Martinussen, Nobuki Ogasahara, Theo Petrides, Benoit Schelstraete, Ian Schopa, Kyo Stockhaus, Joao Viera Costa, Luca Vigliero, Jussi Vuori, Jean-Paul Willemse. Team 2009–13 (construction phase / interiors): Michel van de Kar (associate), Marlies Boterman, Christoph Michael, with: Katrien van Dijk, Nathalie Gozdziak, Sai Shu, Saskia Simon, Tomas Dirrix, Erik de Haan, Jue Qiu, Tom Shadbolt, Pal Trodahl. Interiors hotel (2013): Saskia Simon, Marina Cogliani, Clive Hennessey, Yasuhito Hirose, Arminas Sadzevicius
Collaborators
Building code consultant: ABT Bouwkunde, Velp / Delft. Structural engineer: Corsmit, Rotterdam. Structural advisor in SD phase: Arup, London. Service engineers: Techniplan, Rotterdam (offices, hotel) / Valstar Simonis, Rijswijk (apartments, plinth). Facades: Permasteelisa, Middelburg (offices, hotel, plinth) / TGM, Asten (apartments). Fire safety / building physics: DGMR. Lighting consultant ground floor / atrium: Arup. Scenography / lighting consultants hotel: Ducks Scéno / Les Eclaireurs
Construction phase
Executive architect: B+M, The Hague. Elevators / escalators / building maintenance units: Kone, The Hague. MEP: Roodenburg, Krimpen aan den IJssel.Contractor: Züblin, Stuttgart / Antwerp / Vlaardingen.Reception desks ground floor: Smeulders, Nuenen
Photos
Ossip van Duivenbode