National Park of Mali Complex, Bamako
Diébédo Francis Kéré Kéré Architecture- Type Culture / Leisure Landscape architecture / Urban planning Visitor center Park Restaurant Sport Sport center
- Material Stone
- Date 2009 - 2010
- City Bamako
- Country Mali
- Photograph Iwan Baan
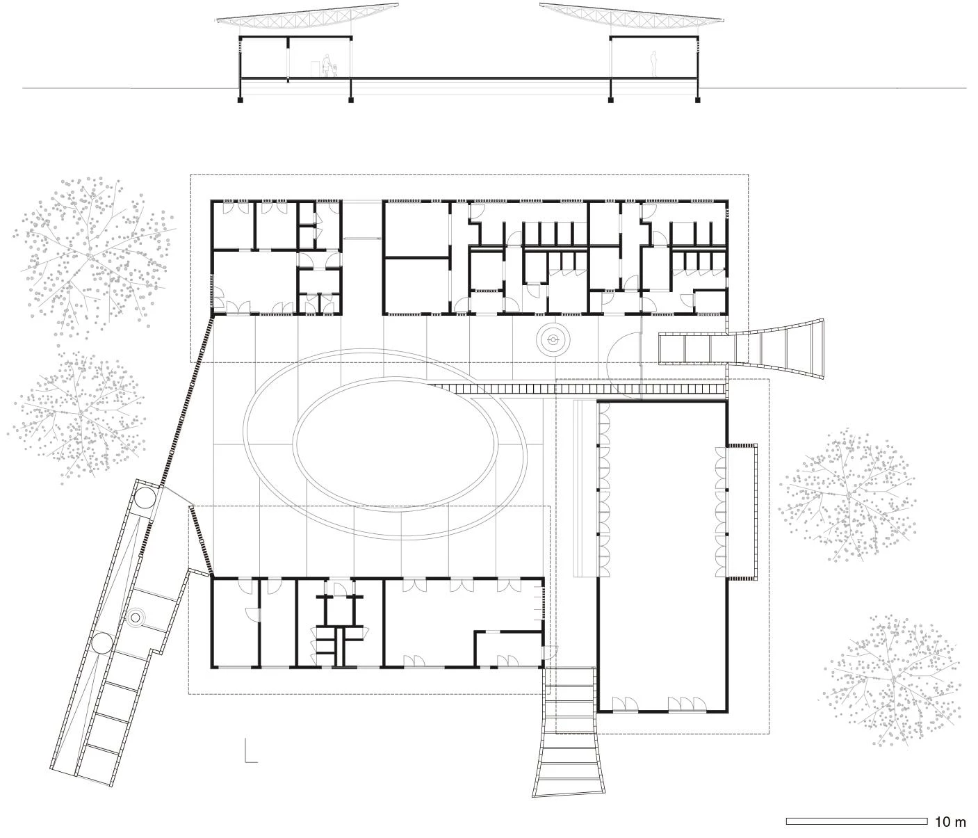
Coinciding with the 50th anniversary of the country’s independence, the National Park of Mali, located in Bamako, the capital, reopened. Several new accesses were built, aside from a restaurant and a sports center. Clad in locally sourced stone, the new buildings blend into their context thanks to their careful insertion and their small scale.
The restaurant is located in the higher part of a rocky outcrop and stretches over several levels. Responding to the building’s site, the design was essentially focused on bringing inside the spectacular views over the park and nearby lake. The sports center, for its part, consists of three pavilions that are organized around an interior courtyard. Thanks to the use of a same plastic material, the different interventions altogether have a shared, unique, and recognizable image in the park. All the buildings are clad with stone extracted from the nearby quarries, which strengthens the identity of the place and reduces building costs. The stone walls provide thermal insulation, helping to cool the interior spaces. The large overhangs of the sheet roofs provide shade and also help to naturally air-condition the buildings.













Cliente Client
AKDN / AKTC
Arquitectos Architects
Kéré Architecture
Equipo de diseño Design Team
Isabelle McKinnon, Claudia Buhmann, Olivier Gondouin, Emanuela Smiglak, Ines Bergdolt
Consultores Consultants
Birad SARL (hormigón concrete), Pichler Ingenieure GmbH, Berlin (estructura de cubierta roofing structure), SAMKO Turkey (cubierta roofing)
Construcción Construction
Manuel Mora Sánchez, Souleymane Diallo, Hamed el Biblawy, Roberto Fabbro —AKTC—, Kéré Architecture (supervisión construction supervision)
Superficie construida Built-up area
3,000 m²
Fotos Photos
Iwan Baan, Kéré Architecture