Wan Chai Convention and Exhibition Centre
Wang Ni Zhang Dawei- Type Congress center
- Material Aluminum
- Date 2021
- City Beijing
- Country China
- Photograph Chen Hao
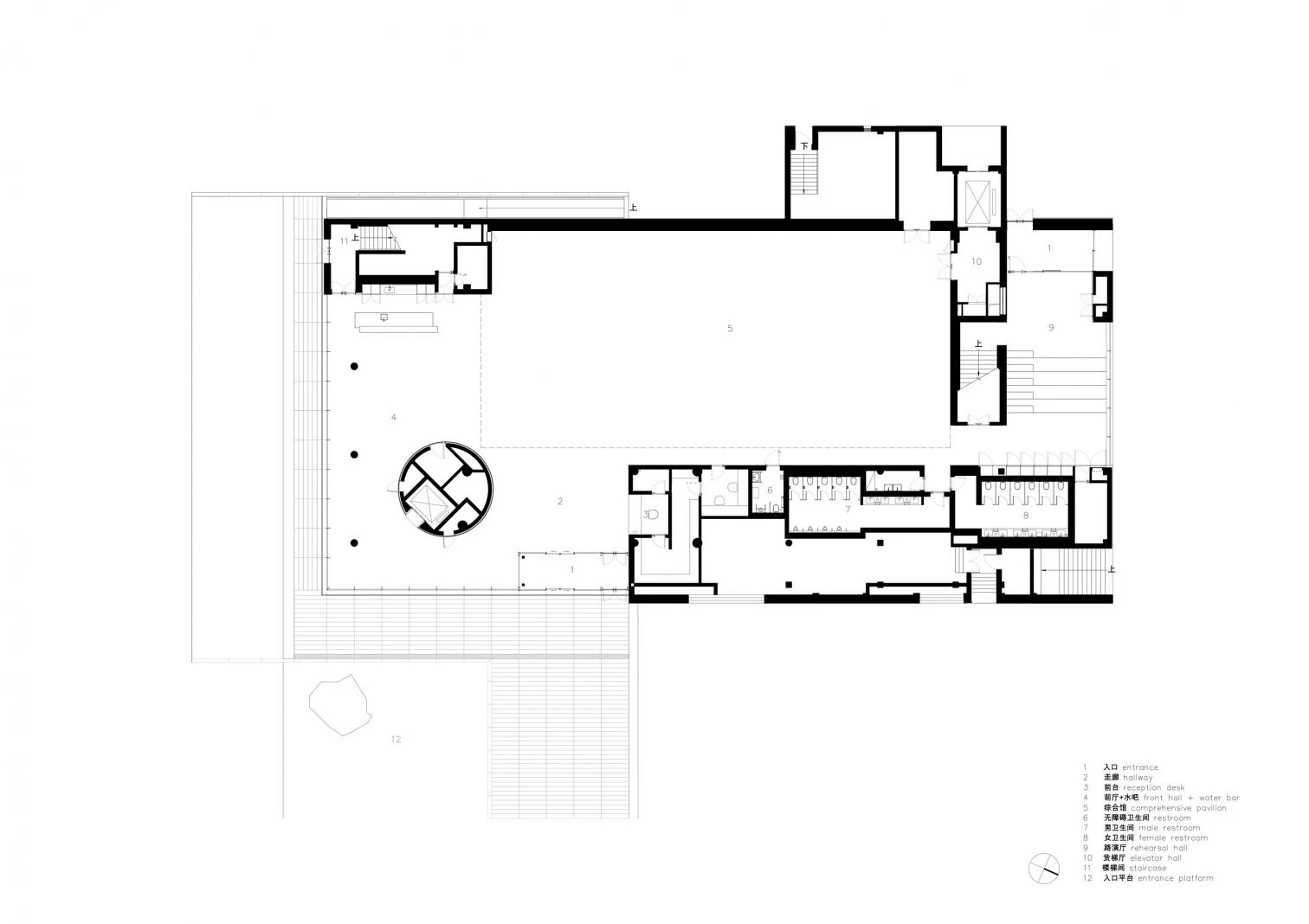
This new construction is located at the western end of the China Resources University campus, in Xiong’an New Area of Beijing. Surrounded by red brick buildings, the complex is sunken 1.5 meters into the ground to reduce its visual impact on the area. The palette of materials for the translucent facade was given careful thought, aimed at giving an impression of lightness. The double skin is composed of an inner layer of glass and an outer one of metal, with vertical pieces of alumnum providing rhythm. With a built area of 2,500 square meters and a rectangular floorplan, and rising 10 meters, the convention and exhibition center meets the needs of multiple functions. On top is a viewing deck offering panoramas of the campus.















