Alicante City Congress Center
Frade Arquitectos Luca Poian Forms- Type Congress center
- City Alicante
- Country Spain
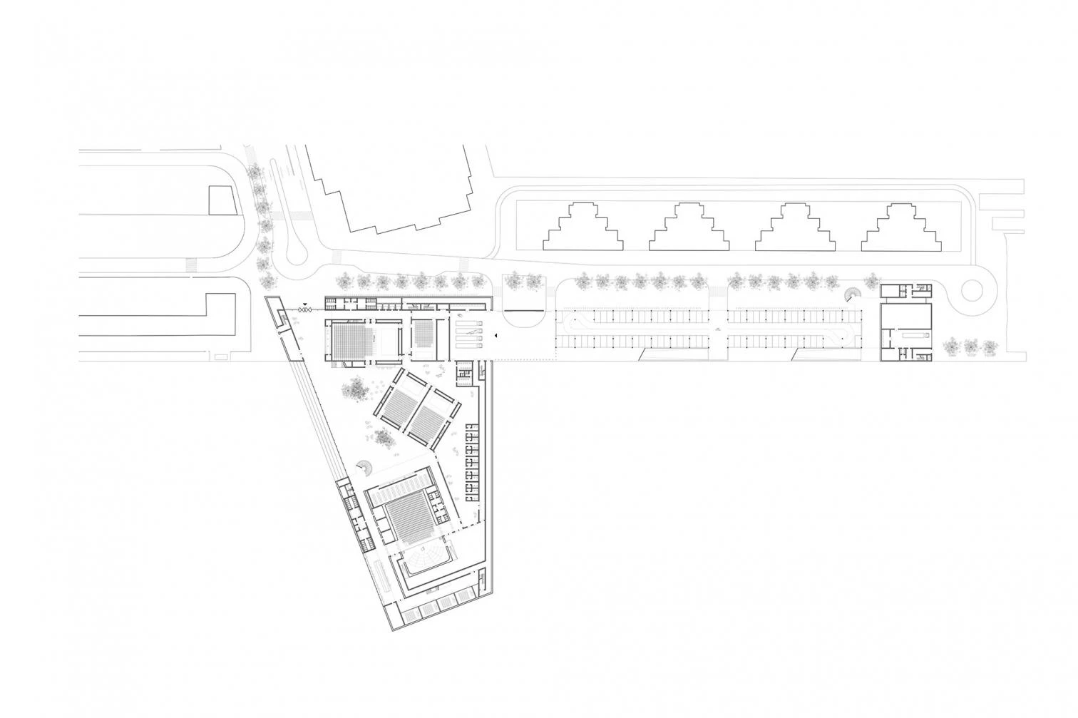
The ‘San Carlos’ scheme submitted by Frade Arquitectos – Luca Poian Forms has been named overall winner of the preliminary-design competition for the Alicante City Congress Center. Selected from a pool of 121 entries, ‘San Carlos’ takes the defense form and the name of the bastion that once guarded the city. The stronghold was built in 1691, close to the site selected for the new construction at the port. The new ‘fortress,’ connected to a tower by a parking facility, harbors an auditorium seating 2,000 people, another for 500, and a conference room for 300, besides an exhibition area and offices.
Awarded 108,900 euros, the winning proposal has been praised by the jury for its “resounding and emblematic character” and its “high degree of abstraction that establishes an interesting relationship between the sea and the city.”
The matter will be addressed in the plenary session of the Alicante Provincial Council to approve on 8 May. Subsequently, the winning preliminary project will be sent to the Alicante City Council, which in turn will request the Port Authority to adapt the Special Port Plan for the execution of this complex, the cost of which is estimated at 65 million euros.
The second prize, worth 72,600 euros, has gone to ‘Eloquent Silences,’ drawn up by Javier de las Heras of Barcelona; the third, worth 48,400 euros, to ‘Cuatro picos,’ by María del Mar Goberna Pérez, representing the UTE PA-GmásP. There are two runners-up, each receiving 18.150 euros: ‘The Beach’ by Arturo Calero and Sonia Miralles of Alicante, and ‘Naya’ by Néstor Montenegro and Javier Mosquera of Madrid.











