Forges Cultural Center in Fonsagrada (Lugo)
Firm Arquitectura- Type Refurbishment Cultural center
- Date 2024
- City Fonsagrada (Lugo)
- Country Spain
- Photograph Luis Díaz Díaz
The old City Hall of Fonsagrada, erected in 1845 and in disuse since 2015, has been turned by the Galician practice Firm Arquitectura —Daniel Gómez Magide and Adrián López Rancaño— into a museum for works of the cartoonist Fraguas, known as Forges, that his family donated to the council upon his death in 2018, given the Madrid graphic humorist’s link to the municipality in Lugo province where his father was born.
The revamp began with an analysis of the building’s various stages and uses. A selection and clean-up of the relevant elements followed. Enhancement of the historical heritage, for its part, started with consolidation of the deteriorated structure, using local materials and labor. Chestnut wood predominates in different formats, applied to the structure in sawn and laminated form, as well as in a variety of finishes on floors and vertical surfaces.
The original courtyard, covered in the 1990s with a methacrylate vault, was restored, and delimited with structural pieces of laminated wood that also function as a mechanism for solar gain and regulation.
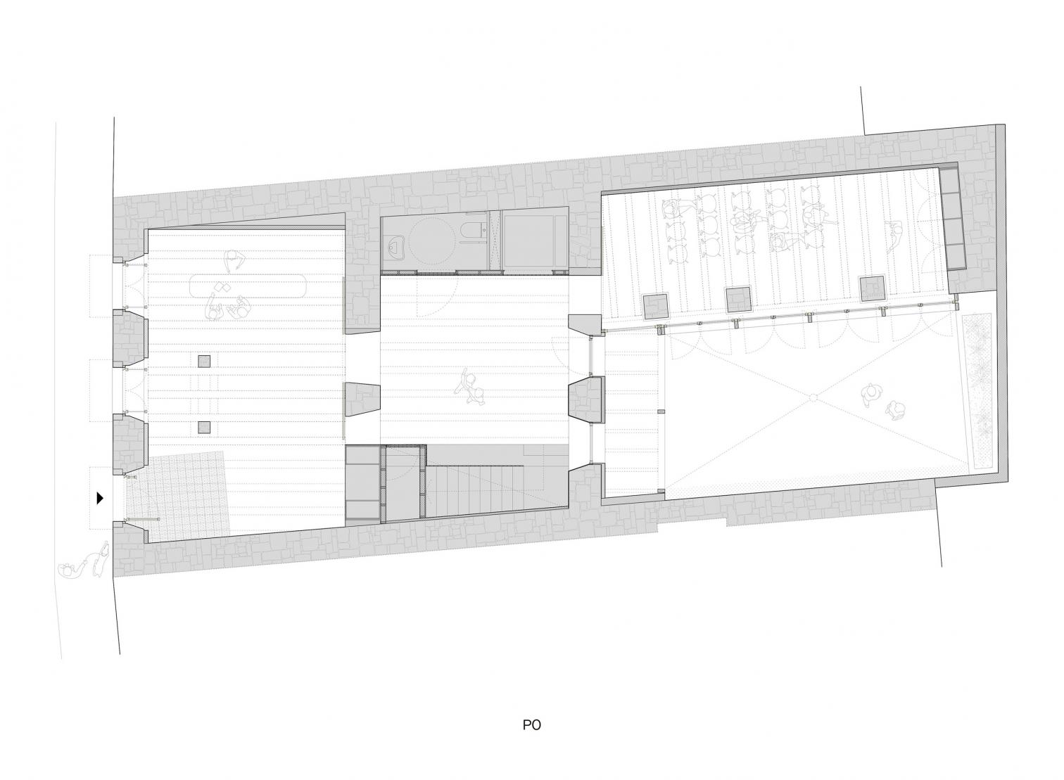
The resolution of the program is simple, with only a circulation core and a service one added. The ground floor is understood to be a space that connects with the steet, in the historical heart of town. Here we find the tourist office, the foyer of the cultural center, and a multipurpose room that can be extended to the restored courtyard. On the second floor are three exhibition rooms that can be joined.

















