Civivox Salesianos civic center in Pamplona
OFS architects- Type Culture / Leisure Civic center Prefabrication
- Material Concrete
- City Pamplona
- Country Spain
- Photograph Pedro Pegenaute
The buildings blend with their urban surroundings, dominated by towers, through carefully selected materials and proportions. The prefabricated concrete of the facade, with predominantly vertical elements and a tone that evokes the stone of nearby constructions, establishes a coherent visual dialogue with the context.
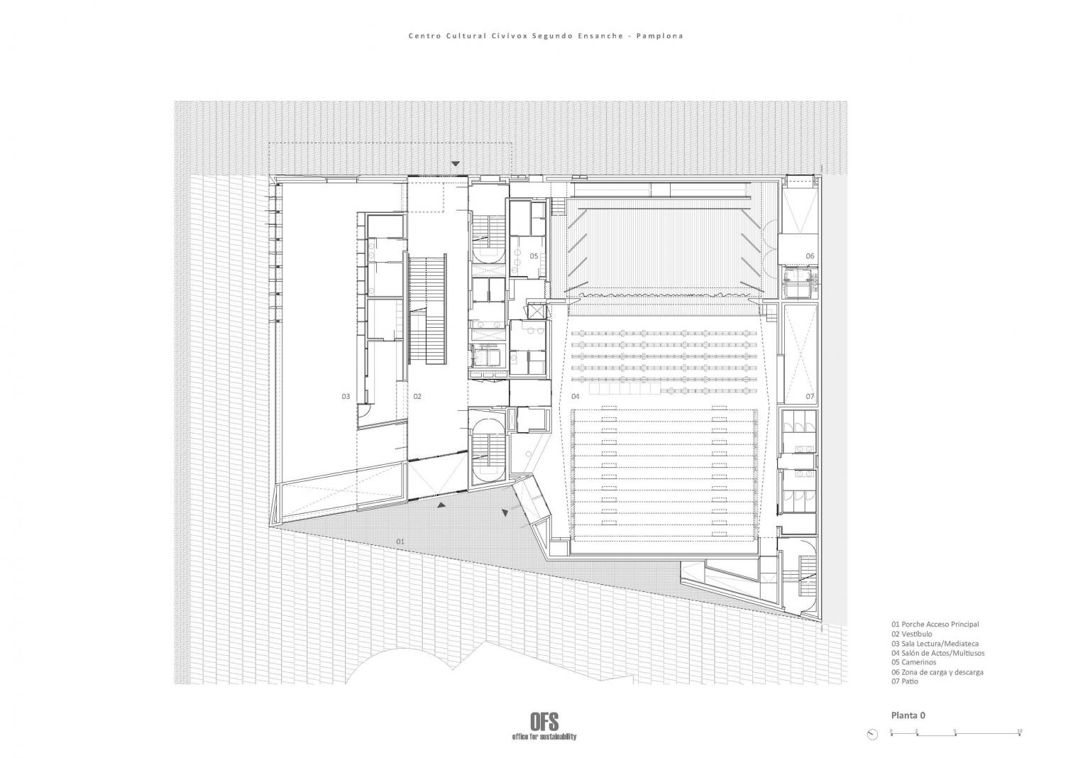
At ground level is the main foyer, which leads to the auditorium, reading room, and information areas. The auditorium is adaptable, accommodating different kinds of events thanks to retractable telescopic stands. In its traditional configuration it offers 400 seats, but with the tiers folded up it becomes an unobstructed space of about 350 square meters.
The first floor includes multipurpose classrooms, a conference room, and a computer lab, all designed to suit a variety of activities. The second floor houses visual-arts studios, a cooking classroom, and a children's room. The top floor contains the sports area and adance studio. The basement completes the program with halls for exhibitions.
Concrete plays a central role inside through suspended beams placed rhythmically throughout the building. In addition to their structural function, they organize and characterize the spaces. As a warm counterpoint, natural wood is used in windows and claddings.
























