Mogro House in Santiago
Rodolfo Cañas- Type House Housing
- Date 2018
- City Santiago de Chile
- Country Chile
- Photograph Aryeh Kornfeld
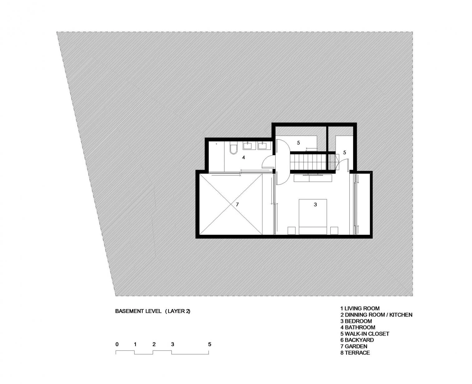
Located in the Montenegro neighborhood of the Chilean capital, this single-household dwelling is crowned with a thin volume which, clad in stainless steel panels and featuring a skylight, is the only part of the building that can be seen from the surrounding streets. The local architect Rodolfo Cañas completed the construction with the basement and the transparent ground floor opening out to the garden, but the original design takes into account a possible floor addition. The thick concrete slab that forms the ceiling was designed to withstand the weight of an extra level. For the time being, it provides a large roof terrace.







