Honest House, Tokyo
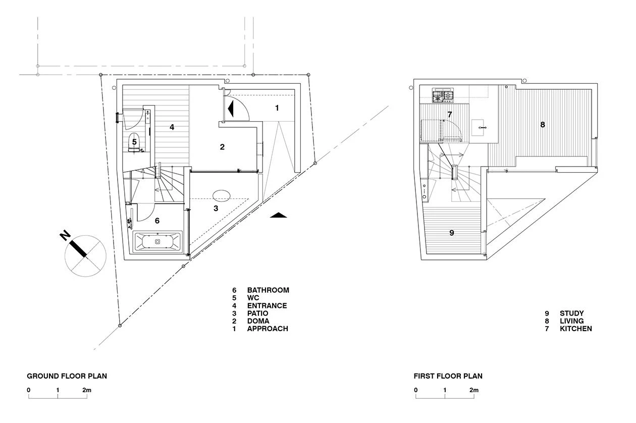
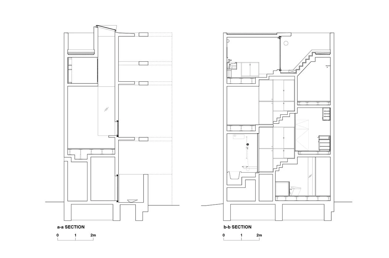
OGATAYOHEIThe house makes the most of the reduced area of the plot and distributes its spaces in mid-heights between two wings that are arranged around the ‘tsubo-niwa’ (meaning small garden in Japanese), which favors ventilation indoors.




























Technical Info
ShowHide technical info
Honest House, Tokyo (Japan)
Arquitectos Architects
OGATAYOHEI
Arquitecto principal Lead architect
Yohei Ogata, Haru Ogata
Colaboradores Collaborators
Shikine Watanabe (diseño de estructuras structure design); Satoru Hayakawa
Constructora Contractor
Kimura Kougyo
Fotografía Photographs
Munetaka Onodera; Yohei Ogata