Fayland House
David Chipperfield Architects- Type House Housing
- City Buckinghamshire
- Country United Kingdom
- Photograph Simon Menges
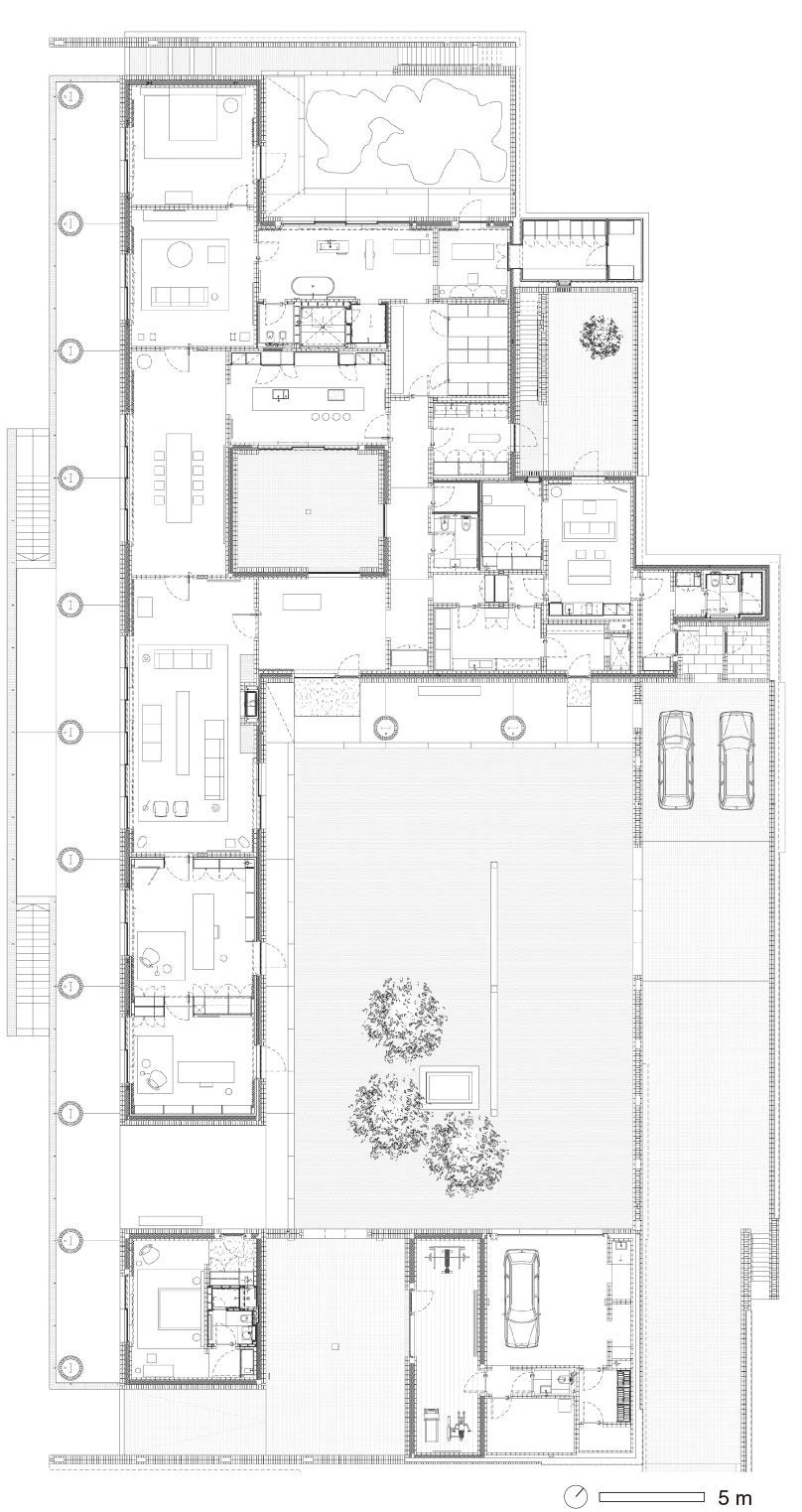
This family house is located on a large plot in the Chiltern Hills, between the villages of Skirmett and Hambleden. The Chilterns are part of the system of chalk downs that run through eastern and southern England, with over 20% covered by woodland, making it one of the most heavily wooded areas in the country. It was designated an Area of Outstanding Natural Beauty in 1965. The site was previously occupied by a two-story house with a number of outbuildings that had accumulated in an ad hoc manner, relating little with each other and with the environment. So the development was an opportunity to restore a natural landscape by removing all of the conflicting features that had been superimposed onto it in the course of time. In addition, the conifers and suburban planting were removed from within and around the original woodlands. The mosaic of small fields has been reinstated by restoring the native hedgerows, while areas of new native woodland plants have been identified and woodland management introduced.
Presenting itself as a large earthwork, like a dam sitting on the cusp of the slope, the single-story house is embedded in the field facing southwest towards the valley. A generous loggia stretching across the whole width of the building mediates between the domestic interior space and the landscape in the manner of the grand country houses of England. The main living spaces open onto this expansive threshold, featuring large circular columns, while the ancillary rooms are laid out in the other direction, further into the house, arranged around small private courtyards, each with its own character. The building is accessible via a ramp descending from the northeast of the site and ending in a spacious rectangular court. This court, which recalls the working yards of traditional farms of the area, provides access to the various areas of the house and a direct connection out to the loggia and landscape beyond.
The concrete roof is covered with topsoil taken from the site and planted with native grass species, embedding the project with the natural surroundings, while the walls are made of brick, left visible both inside and out. The white color of the bricks and the lime mortar is reminiscent of the layer of chalk that lies beneath the house, in a lyrical gesture that materially links the construction to the geological landscape of the Chilterns.









Obra Work
Fayland House
Cliente Client
Mike and Maria Spink
Arquitectos Architects
David Chipperfield Architects, London;
Franz Borho (director director); Patrick Ueberbacher (director de proyecto project architect), Matt Ball, Adolfo Despradel, Tiago Frazão, Amandine Kastler, Julia Raff (equipo de proyecto project team)
Colaboradores Collaborators
Christopher Bradley-Hole (paisajismo landscape architect); Alan Baxter Associates (estructura structural engineer); Spink Property LLP (instalaciones, gestión de proyecto y aparejador services engineer, project mangement and quantity surveyor); Spink Construction Limited (contratista general contractor); Thames Formwork (suministro de hormigón concrete contractor); Fusion Brickwork (suministro de ladrillos brick contractor); Viabizzuno (iluminación lighting); Laboratorio Morseletto (piedra / terrazo stone / terrazzo); Hebrok (ladrillo?brick); Telling (mortero mortar); William Garvey (madera timber); Capoferri (ventanas windows)
Fotos Photos
Rik Nys, Ben Anders, Simon Menges