Villa Fontana winery in Varano dei Marchesi (Parma)
Studio di Architettura Zermani Associati- Type Industry Cellar
- Material Brick
- Date 2024
- City Varano dei Marchesi (Parma)
- Country Italy
Nestled in the mountainous environs of Varano dei Marchesi, in the Italian province of Parma, a new winery designed by Paolo Zermani and Eugenio Tessoni (Estudio Zermani Associati) blends with sobriety and sensitivity into the region’s rural landscape. Carried out by the Villa Fontana Agricultural Society, it addresses the need for architecture that engages in dialogue with the land and its history, in the very heart of the Tenute Venturini-Foschi vineyards.
The building is located near the ancient Via Francigena – a millennia-old pilgrimage route running from Canterbury to Rome – and within an estate that includes a historic villa, once the summer residence of the writer Maria Antonietta Torriani-Violler. This gives the project a symbolic and cultural value, over and above its functional purposes.
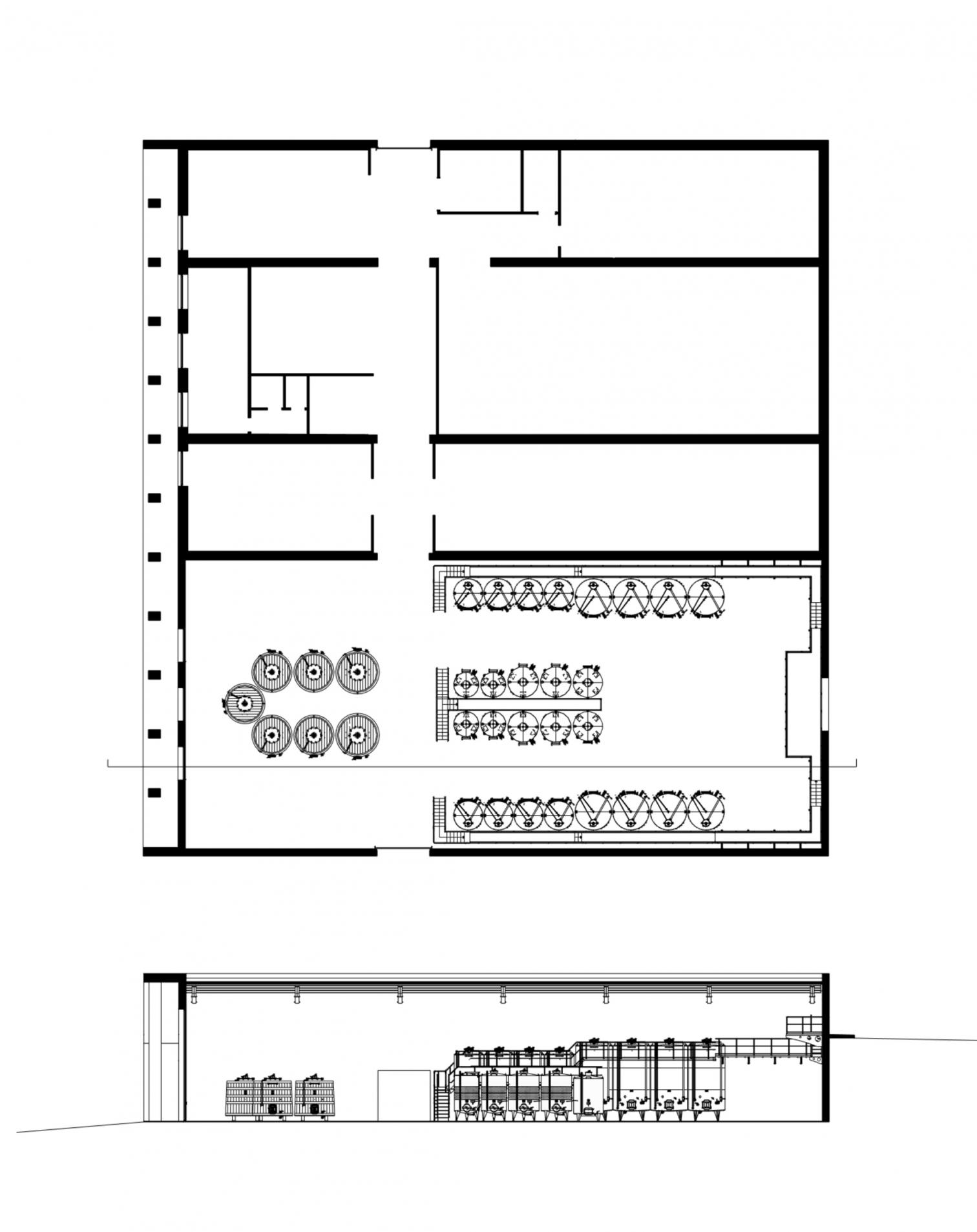
The winery comes across as a discreet construction, partly buried in the slope. Its form and material constitution makes the building act like a filter between outside and inside, marking the transition from fruit to wine. This passage from grape to final product is accentuated in the section of the landscape, where the architecture appears as a natural extension of the terrain.
The main volume harbors the fermentation and other technical areas, which are supplied directly from the vineyard through an opening in its high part. A smaller second volume contains the casks hall, storage rooms, and a store. Its green roof, aligned with the vineyard, is a terrace facing the landscape. A portico connects both structures and makes the connection between the built and the natural. The result is a silent and exact architecture, of the kind that does not impose its presence.













