Thousand Suns Library in Madrid
Miguel Ángel Díaz Camacho (MADC & Partners)- Type Culture / Leisure Library
- Material Wood
- Date 2024
- City Madrid
- Country Spain
- Photograph Javier Callejas
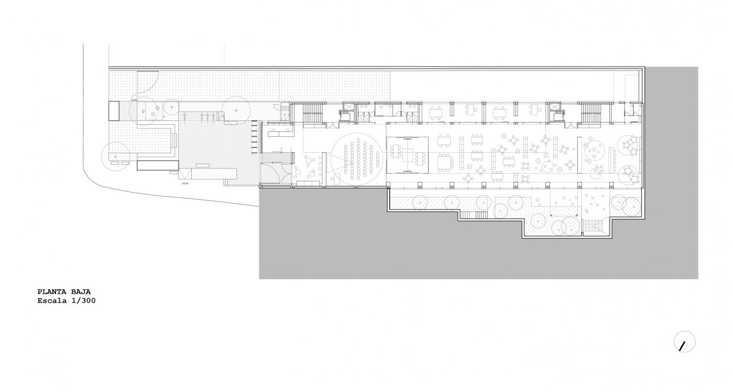
The new public library in the Butarque neighborhood of Madrid’s Villaverde district satisfies an old demand of the community, being the first library to be built by the Madrid City Council in this area. The design revolves around the idea of creating a warm, welcoming place where natural light plays a central role. Based on a ‘thousand suns’ concept, the building incorporates many elements, including skylights, vertical louvers, and lattices, which together redirect and filter solar radiation to achieve a bright and comfortable indoor atmosphere.
The building comes across as a prismatic volume of simple lies, clad in sheet metal that recalls old industrial constructions around. The facade on the street Calcio takes on a domestic scale, with a window acting as an urban showcase, whereas the Miguel Solás side presents courtyards, skylights, and solar protection systems that enrich the overall architectural expression.
The scheme is organized in two main floors and a mezzanine level. The ground floor is devoted to social uses, such as group activities. Upstairs is a space for study and reading, offering an atmosphere conducive to concentration. The mezzanine contains the quietest spot: a study space, elevated and sheltered, where light, wood, and excellent acoustics work together.
The structure combines concrete in the lower levels – where it also retains earth in a plot where there is a grade difference of 4.65 meters – with wood in the upper ones. This plant material does not only define the structure, but is also present in windows, doors, panels, ceilings, and claddings. The result is a good degree of aesthetic coherence and sustainability. The library has obtained GREEN environmental certification from the GBCe, reaffirming its commitment to energy efficiency and respect for the environment.


























