This building sits in a river valley amongst the forests of Wuling Mountain, a scenic area north of Beijing. The site abuts a steep rock cliff to the west, and to the east opens out to an expansive view of the valley’s alluvial plains, and beyond them a continuous range of mountains. The immediate environment presents a dense growth of poplar trees, and the ground is covered with reeds and weeds, with a stream slowly meandering across. Nearby are a few linearly scattered traditional villages, as well as a holiday resort under construction.
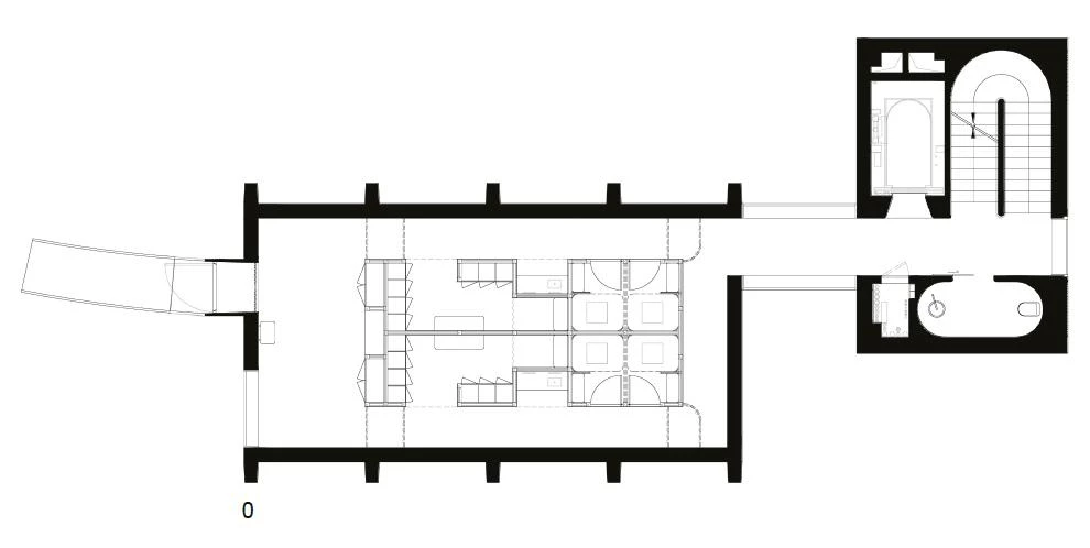
The project envisioned the bathhouse as a steaming hot spring machine placed lightly upon the natural slope. To minimize interference on the original raw landscape, the main body of the structure is raised off the ground, in such a way that the programs can be distributed vertically. This arrangement limits the building’s footprint, in the process creates a series of unique spatial experiences through the visual relationships that are established at different heights with the surrounding trees, the rock cliff, and the mountains beyond. While respecting the nature around, the bathhouse is mechanistic in form, echoing industrial ruins still existing in the area.





















Obra Work
Baños Wulingshan, Chengde (China)
Wulingshan Bathhouse, Chengde (China)
Cliente Client
Beijing Rocfly Investment
Arquitectos Architects
Vector Architects / Gong Dong
Equipo Team
Liangliang Zhao (arquitecto responsable project architect); Yeqian Tan (arquitecto en obra site architect); Han Zhang, Chaoying Feng (dirección diseño design management); Yeqian Tan, Zihao Zeng, Yingyi Sun, Jiahui Li (equipo de diseño design team)
Arquitectos locales Local institute of design
Shanghai Urban Architectural Design; Zunshi Xiao (arquitecto responsable project architect), Taian Chen (equipo de diseño design team)
Colaboradores Collaborators
Jun Chen, Yuwei Yang, Li peng (estructura structure); Xinkai Shi, Dingding Xu, ZHANG Jie Zhang (instalaciones MEP engineer); Horizon & Atmosphere Landscape (paisajismo landscape); RFR Building Design Consulting (fachada facade); TORYO International Lighting Design (iluminación lighting)