Archive of the City of Barcelona
Mendoza Partida Ramón Valls OP Team- Type Institutional
- Date 2018
- City Barcelona
- Country Spain
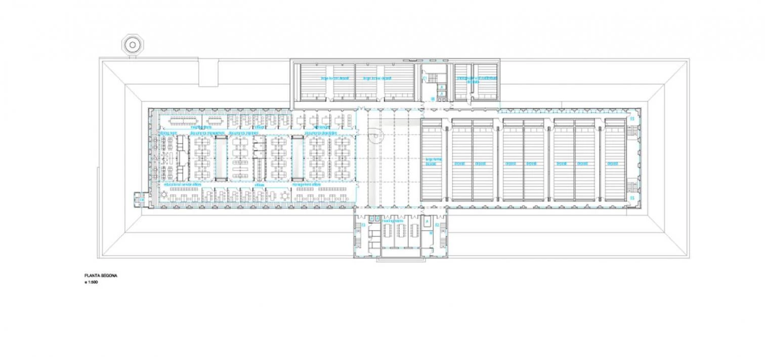
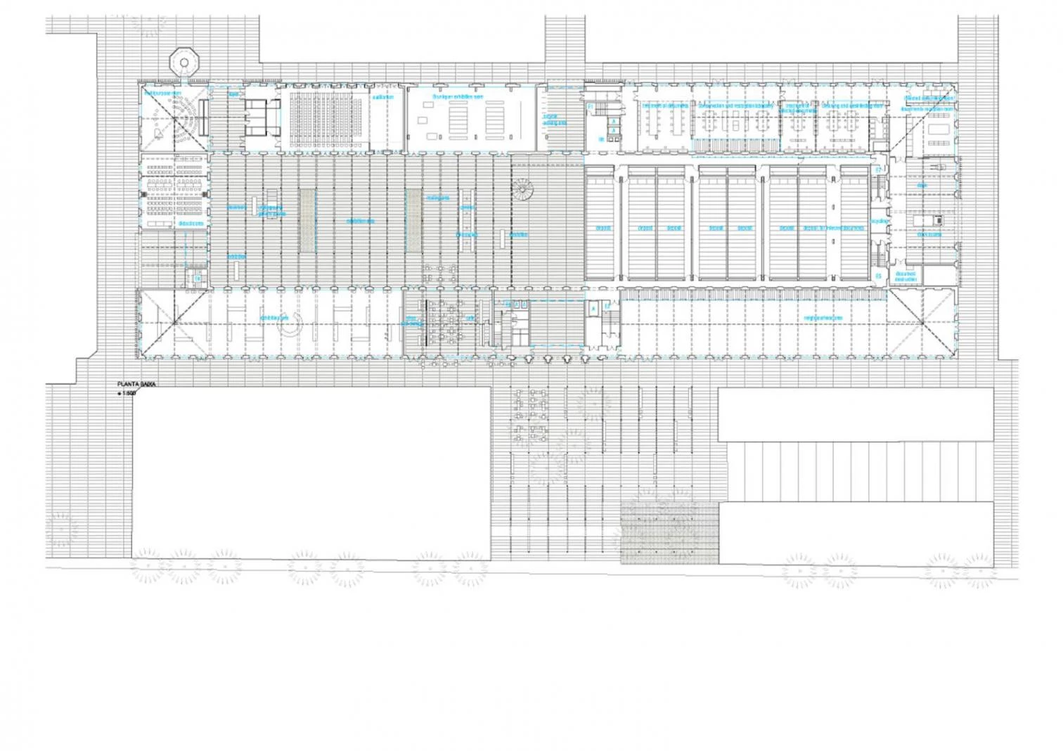
The team formed by the firms Mendoza Partida (Héctor Mendoza and Mara Partida), Op Team (Santi Orteu, Gloria Piferrer, and Xavier Parré), and Ramón Valls Navascués has won the the competition to turn shed 8 of the Can Batlló premises into the new site of the Archive of the City of Barcelona, which will bring together documents currently housed in 21 centers. Named Ágora, the winning project addresses a complex program – including exhibition halls, an auditorium, classrooms, consultation zones, and workspaces – while maintaining the industrial character of the existing construction and accentuating its spatial breadth. Around three courtyards, the intervention preserves and reconstructs original elements, such as the facade, restoring the slope of the roof to highlight the building's composition of volumes. The deposits are placed in an independent structure containing 48 autonomous cells, facilitating the climate conditions required to conserve different kinds of archives. The structure is separated from the existing construction by means of cushion spaces that minimize energy needs, which are satisfied through geothermics and photovoltaic panels.











