WoZoCo apartaments, Amsterdam
MVRDV- Type Collective Housing
- Date 1994 - 1997
- City Amsterdam
- Country Netherlands
- Photograph Christian Richters Rob't Hart Thijs Wolzak Samuel Ludwig
Located in the Western Garden Cities of Amsterdam built midway through the past century, the block is part of a densification plan set forth in the 1990s. The increased density threatened the parks and open green spaces, one of the main qualities of this area.
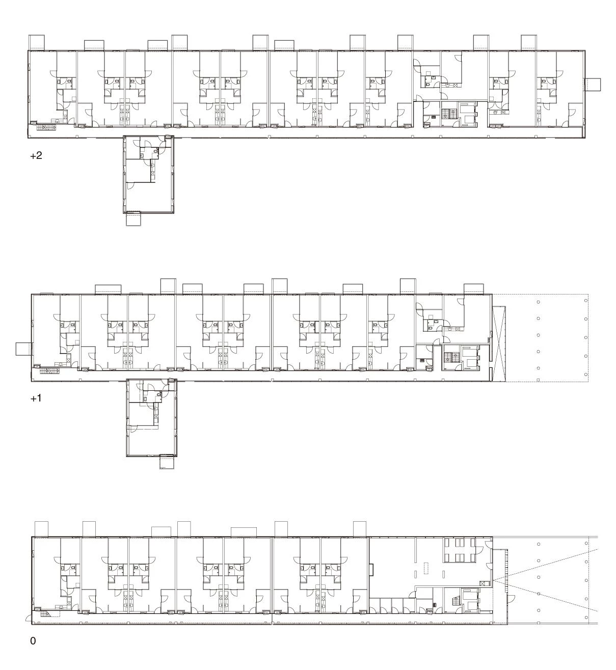
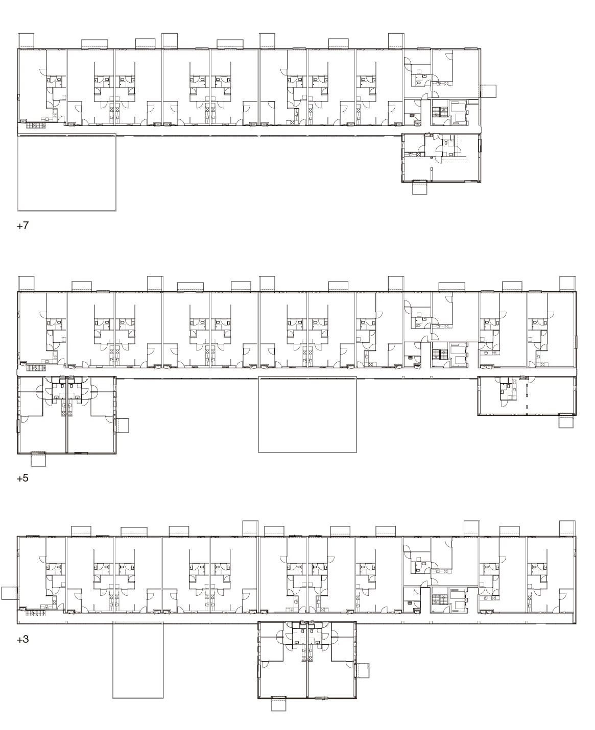
The block proposed contains 100 apartments and services for people over 55 years, is elongated in shape, and has a north-south orientation. The apartments adopt a wide module on facade, of 7.20 meters, to make up for the lack of depth due to the narrowness of the plot. However, only 87 apartments could fit in the volume of the block to ensure adequate sunning in all the units. This encouraged to cantilever the remaining 13 from the north facade, complying with the building codes and not taking up any more of the open spaces. Cantilevered and facing east and west, the apartments open up to the views of the nearby polder. The variations in the position of the windows and in the materials and size of the balconies give each apartment a character of its own. By cantilevering the units and freeing up space it is possible to establish a model of growth for these areas, respecting the old historical gardens.




















Obra Work
WoZoCo Retirement Housing
Cliente Client
Het Oosten Housing Association
Arquitectos Architects
MVRDV
Colaboradores Collaborators
Jacob van Rijs, Winy Maas and Nathalie de Vries with Stefan Witteman, Alex Brouwer, Joost Glissenaar, Arjan Mulder, Eline Strijkers, Willem Timmer, Jaap van Dijk, Fokke Moerel and Joost Kok
Consultores Consultants
Bureau Bouwkunde (consultores building advisors); Pieters Bouwtechniek (estructura structure); DGMR (física building physics); Ketel RI (instalaciones services); Centrum Bouwonderzoek TNO-TU (acústica acoustics)
Contratista Contractor
Intervam
Superficie construida Built-up area
7500 m² (100 apartamentos 100 apartments)
Presupuesto Budget
4.5M €
Fotos Photos
Rob’t Hart; Chistian Richters; Thijs Wolzak; MVRDV; Samuel Ludwig