24 homes in the Horno de Coscolín of Tudela
Blasco Esparza Arquitectos- Type Housing Collective
- Date 2025
- City Tudela
- Country Spain
- Photograph Pedro Pegenaute
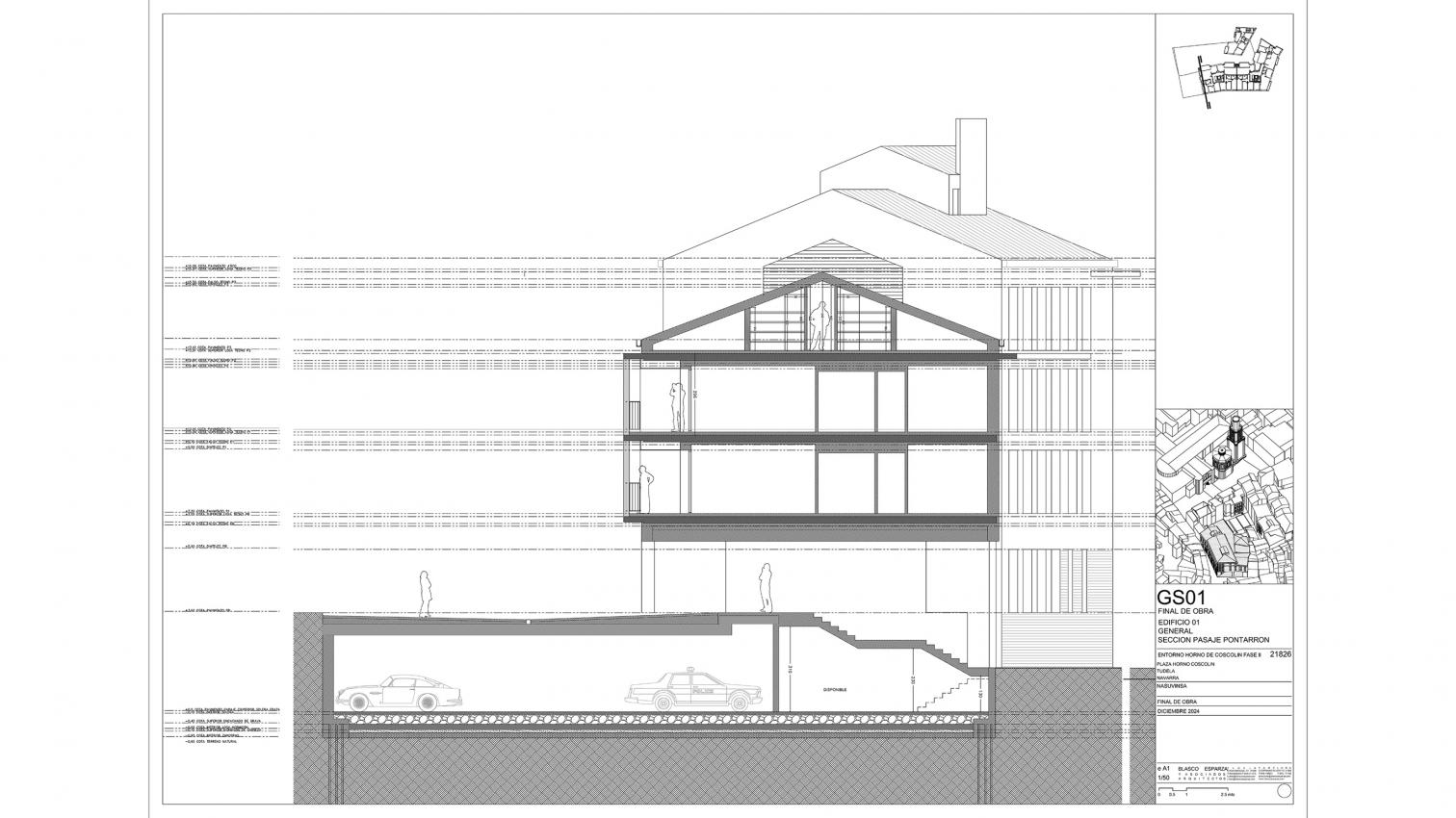
The aim of the project to build 24 subsidized housing units (VPOs) in the Horno de Coscolín of Tudela’s historical center was the urban regeneration and social revitalization of one of the most degraded zones of the old quarter. This area, a witness of the legacy of Christian, Jewish, and Moorish cultures, has suffered a progressive deterioriation, holding back the full restoration of the historical center, which has been ongoing for over three decades now.
The old traditional wood-fired oven is now the heart of the urban operation, in a block that had lost much of its urban fabric. A competition organized by Nasuvinsa and the Tudela City Council resulted in the selection of a scheme drawn up by the practice of Manuel Blasco and Belén Esparza, who opted for an intervention that was more urban than architectural in nature, acting on several specific points of the block, some physically disconnected but joined in a united approach to regeneration.
The project includes 24 dwellings, garages, retail spaces, and storage rooms, but goes beyond the functional: it presents an interior plaza as a social and urban hub, arranged around the oven and opening out to the streets through multiple passageways. This plaza is the space toward which the living rooms and kitchens are oriented, making residents interact with one another and with the surroundings.
From an architectural standpoint, traditional materials like solid brick and lime mortar are used, respecting the character of the environs. In addition, galleries are created as a solution to the demand for outdoor spaces in homes; a social need not covered by regulations in the old town, but addressed here in a respectful manner.

























