11 social housing units in Palma de Mallorca
Carles Enrich- Type Housing
- Date 2024
- City Palma de Mallorca
- Country Spain
- Photograph Adrià Goula
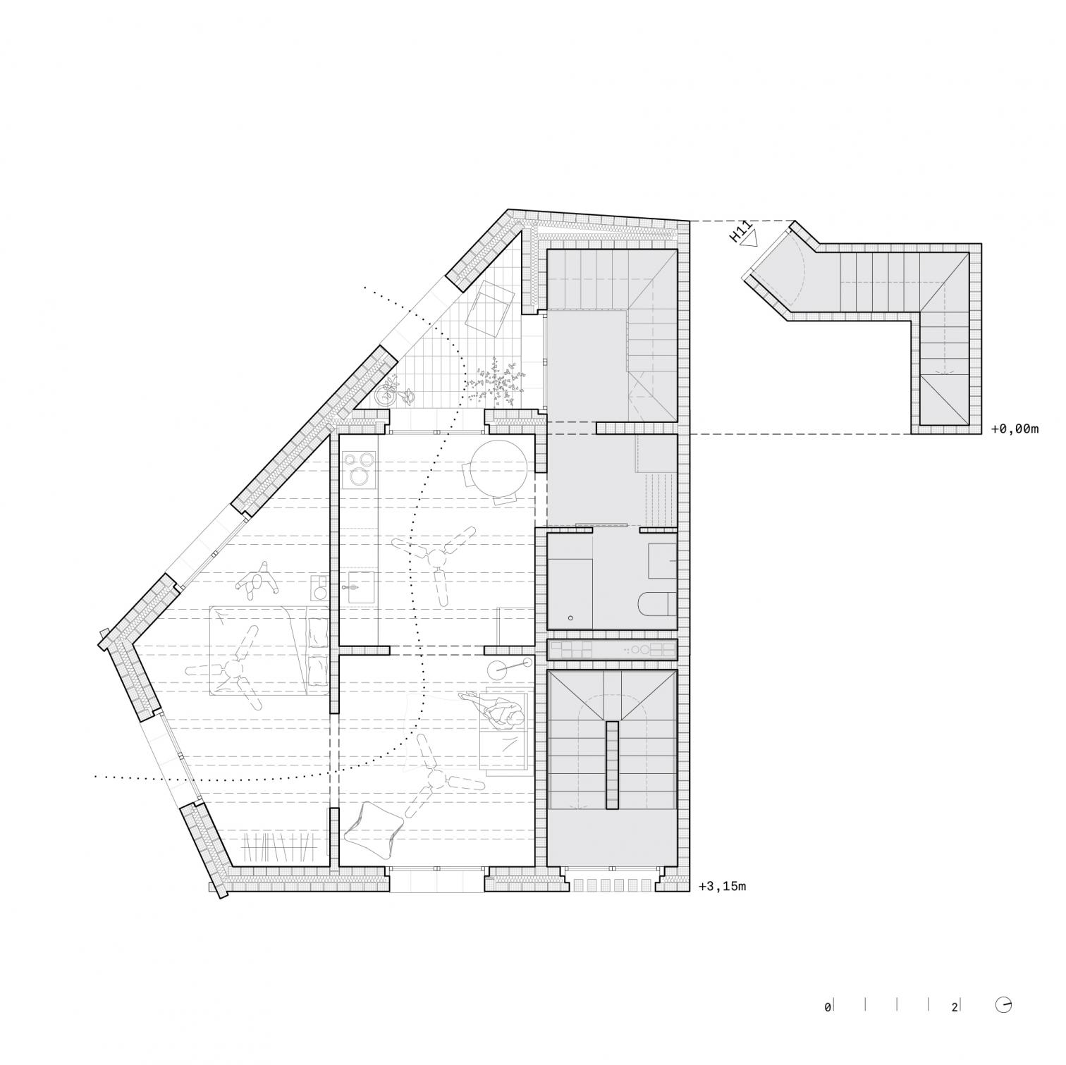
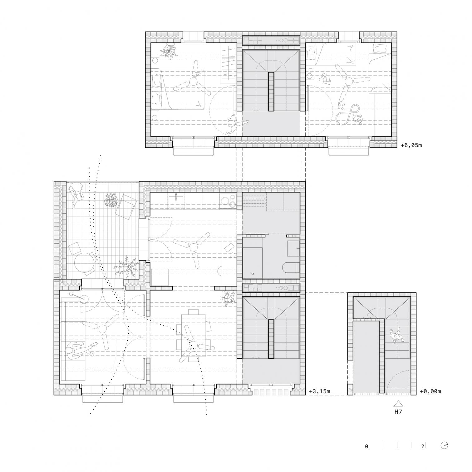
The site of the this project for the Balearic Housing Institute (IBAVI) is a narrow plot that was a marés stone quarry, on the outskirts of the municipality of Palma. The shape of the building, which contains eleven social-housing units, complies with the decision to separate it from the party wall and preserve some geological remains, forming a compact volume on the side of the outer facade and a recess on that of the inner one. This arrangement generates shaded zones and courtyards.
The apartments (one-, two-, and three-bedroom homes) are designed to be flexible, eliminating circulation spaces to maximize usable floor area. The rooms are interchangeable but not the kitchens, which are adjacent to bathrooms so as to optimize MEP services. Principles of vernacular architecture are applied, ensuring that there is cross ventilation. Skylights over the stairs function as solar collectors and heat dissipators.
A draining garden at ground level, combined with low-water-demand native plants contribute to minimizing ambient temperature, and rainwater is stored for irrigation. The placement of the windows, together with the way the rooms do not go very deep into the building, reduces the need for artificial light and enhances solar gain management. The facade is plastered with limestone (jabelga), the white tone of which helps to prevent overheating.
The structure consists of loadbearing walls built with local ceramic blocks, forming a grid of 10-square-meter modules and technical cores to accommodate stairs, bathrooms, and solar chimneys. The masonry incorporates vertical perforations filled with excavated soil. This enhances thermal inertia and acoustic insulation between party walls. The prefabricated slabs are held up by a perimeter beam of laminated timber, allowing dry dismantling. A 5-centimeter compression layer and polished concrete flooring complete the slabs, guaranteeing acoustic insulation between levels. The layout of the dwellings, entered directly from the street, turns them into terraced houses.






























