Viviendas sociales en Puigpunyent (Mallorca)
Alventosa Morell Arquitectes Joan J Fortuny Giró- Tipo Vivienda
- Fecha 2024
- Ciudad Puigpunyent (Mallorca)
- País España
- Fotografía José Hevia
El conjunto de viviendas públicas de alquiler asequible Ses Veles, situado en Puigpunyent, en la comarca mallorquina de Sierra de Tramontana, es un proyecto impulsado por el IBAVI (Instituto Balear de la Vivienda) que apuesta por una arquitectura arraigada en la cultura local. Concebido desde un enfoque de economía circular y sostenible, recupera oficios tradicionales, técnicas constructivas vernáculas y estrategias pasivas adaptadas al clima insular.
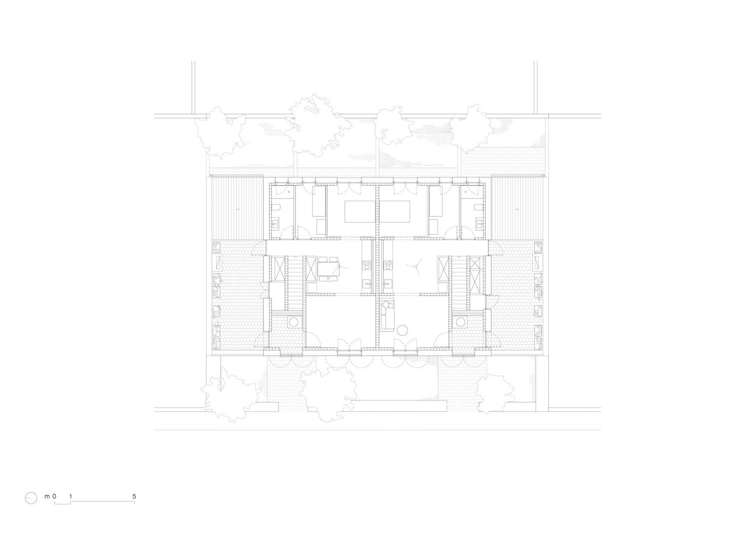
El edificio, de dos plantas y cubierta a dos aguas, alberga seis viviendas: cuatro en planta baja, con una habitación y jardín privado, y dos en planta alta, con dos habitaciones y terraza. La organización interior es flexible y funcional, con la cocina como núcleo central, articulada en torno a tres crujías estructurales.
Se han utilizado materiales locales: fachadas de ciclópeo de cal con piedra y tierra de la excavación, así como particiones de cerámica isleña rellenas de arena de cantera y acabados en arcilla y paja. La madera utilizada en forjados y carpinterías cuenta con certificación FSC.
El diseño incorpora ventilación cruzada, protección solar, gran inercia térmica y control higroscópico, además de una cubierta tipo que optimiza la temperatura estacionalmente. Todo el sistema constructivo permite el desmontaje y la reutilización de materiales.
























