Viviendas en San Jerónimo, Sevilla
José Morales Juan González Mariscal- Tipo Vivienda Colectiva
- Material Acero galvanizado
- Fecha 1999
- Ciudad Sevilla
- País España
- Fotografía Fernando Alda Jesús Granada
En la perfieria sevillana, formando parte de un núcleo rural que ha sido absorbido por la ciudad en su crecimiento, la barriada de San Jerónimo es uno de esos lugares marcados por la carencia, donde el tejido urbano se esponja hasta encontrarse con el territorio. Afirmando esta condición fronteriza, el río Tamarquillo —un afluente del Guadalquivir— marca el límite de dos parcelas sobre las que el Plan General imponía levantar una man-zana y dos hileras de viviendas adosadas. La disposición volumétrica atiende más al concepto de paisaje extraurbano que al propio de la ciudad consolidada dictado por la normativa.


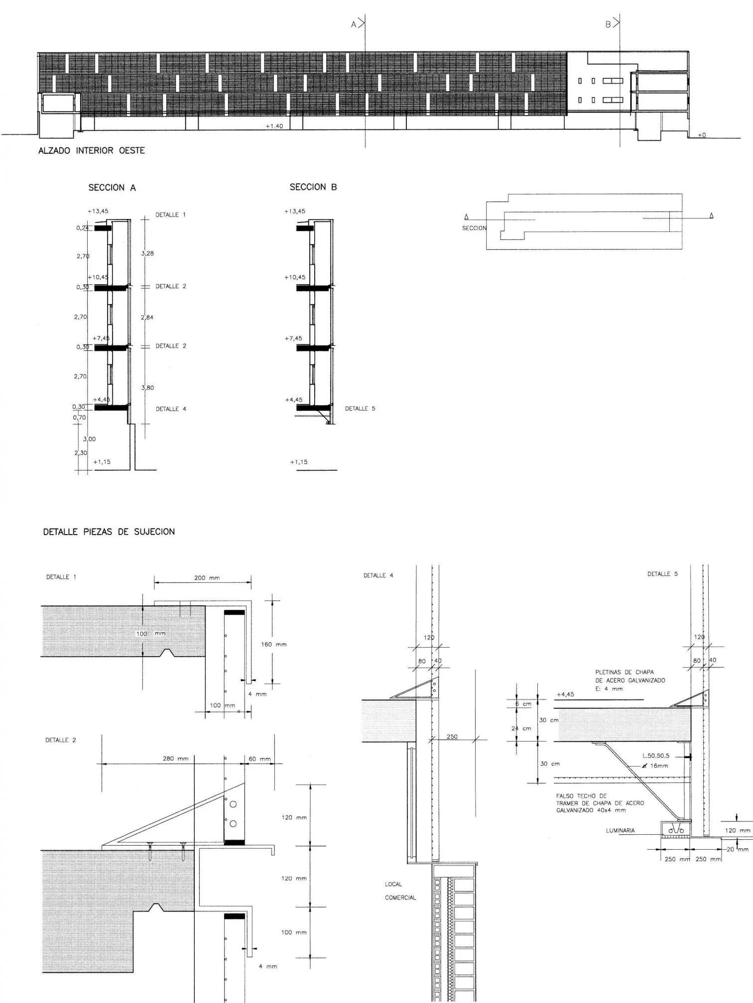
Para proteger la privacidad de las estancias, tanto el cuerpo superior de las hileras de vivienda como las galerías abiertas al patio de la manzana se ocultan tras celosías de malla metálica estirada.

Con cuatro plantas de altura, la manzana flanquea una transitada carretera comarcal que divide el distrito de norte a sur. Dispuesta en torno a un patio de 10 metros de anchura, sus testeros abiertos procuran redescribir un tipo que se juzga más apropiado para la densidad del centro urbano que para el encuentro impreciso entre el campo y la ciudad. En esta línea, los salones se sitúan en el perímetro del bloque para disfrutar de las vistas lejanas del entorno rural. La doble crujía elegida permite deslizar la zona de día sobre la de noche, ofreciendo visuales diagonales internas que aumentan ópticamente la superficie de las viviendas. Para preservar la intimidad de las estancias volcadas al vacío central de la manzana, unas celosías de malla metálica estirada definen galerías que actúan de transición entre el interior y el exterior. Como una veladura fabril sobre los paños enfoscados en colores vivos, estos elementos desdibujan el volumen edificado en un juego de opacidad y transparencia.

Alzados del bloque

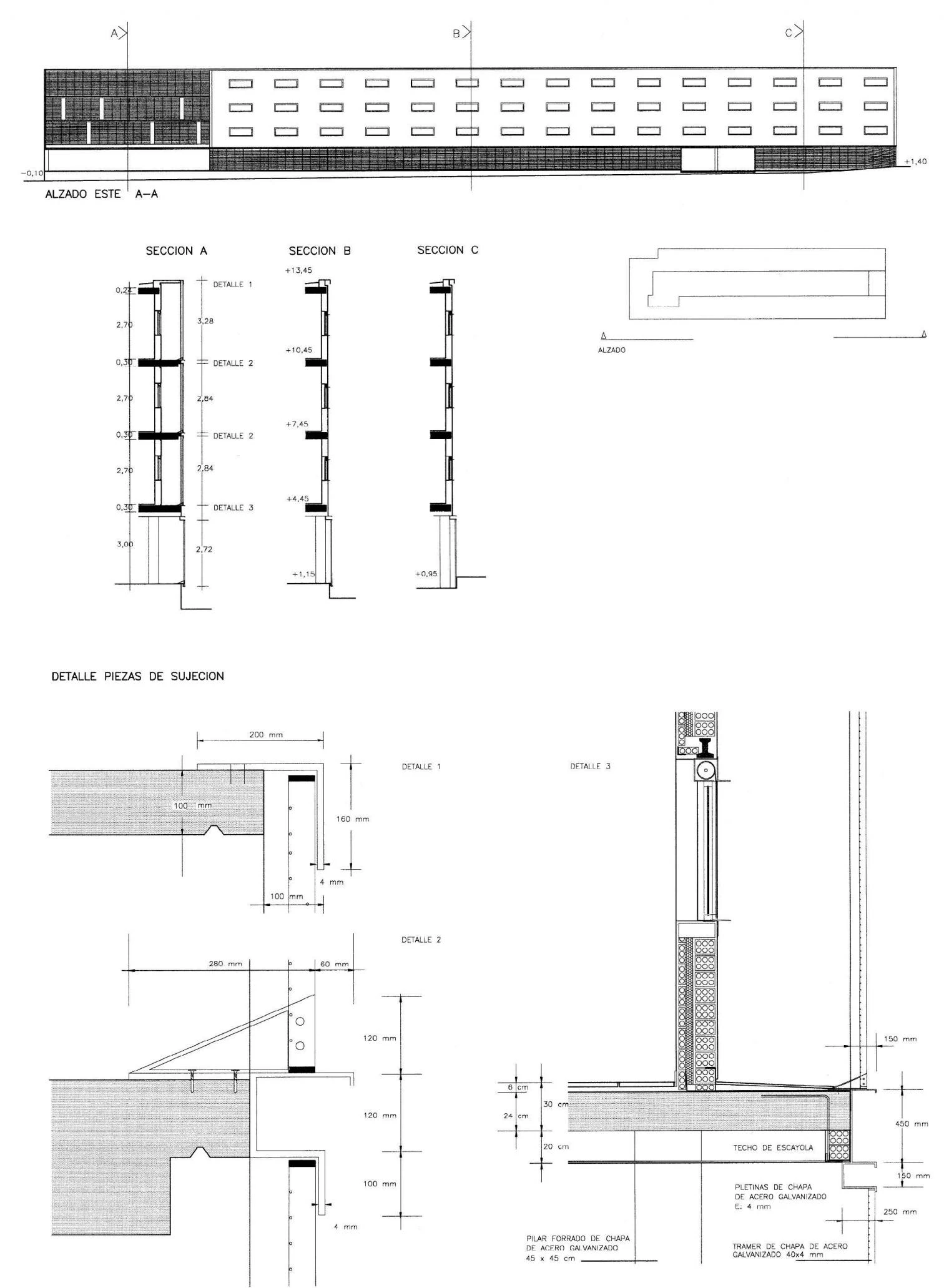
Definiendo una plaza de reciente creación, la doble hilera de viviendas adosadas asume tanto la parcelación como la volumetría dictadas por el planeamiento. Para evitar la construcción de una ciudad miniaturizada, la abstracción se elige como estrategia compositiva en los alzados enfrentados a la calle; el cuerpo superior se libera de las alineaciones dictadas, oculto tras planos de malla galvanizada que lo identifican con la intervención vecina, y una serie de espacios semiexteriores compartimentan los patios en planta baja, a la espera de ser ocupados por los habitantes durante los periodos del año en los que la climatología es propicia. El número variable de habitaciones con el que cuentan, no impide establecer también aquí las relaciones diagonales entre piezas que caracterizan la manzana, planteando dos actuaciones tipológicamente distintas pero vinculadas mediante la ordenación de la planta y los materiales de bajo mantenimiento.


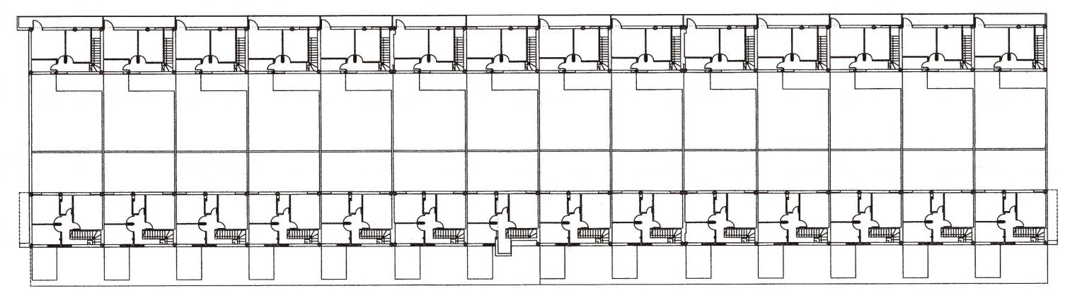
Plantas de la manzana


Plantas de las viviendas en hilera




Cliente Client
Junta de Andalucía
Arquitectos Architects
José Morales Sánchez & Juan González Mariscal
Colaborador Collaborator
J. M. González (aparejador quantity surveyor)
Contratista Contractor
Obrascon, Huarte, Lain
Fotos Photos
Fernando Alda, Jesús Granada