Viviendas en el bosque, Zizur Mayor
Vaillo + Irigaray- Tipo Vivienda
- Material Acero
- Fecha 2022
- Ciudad Zizur Mayor (Navarra)
- País España
- Fotografía Rubén Pérez Bescós
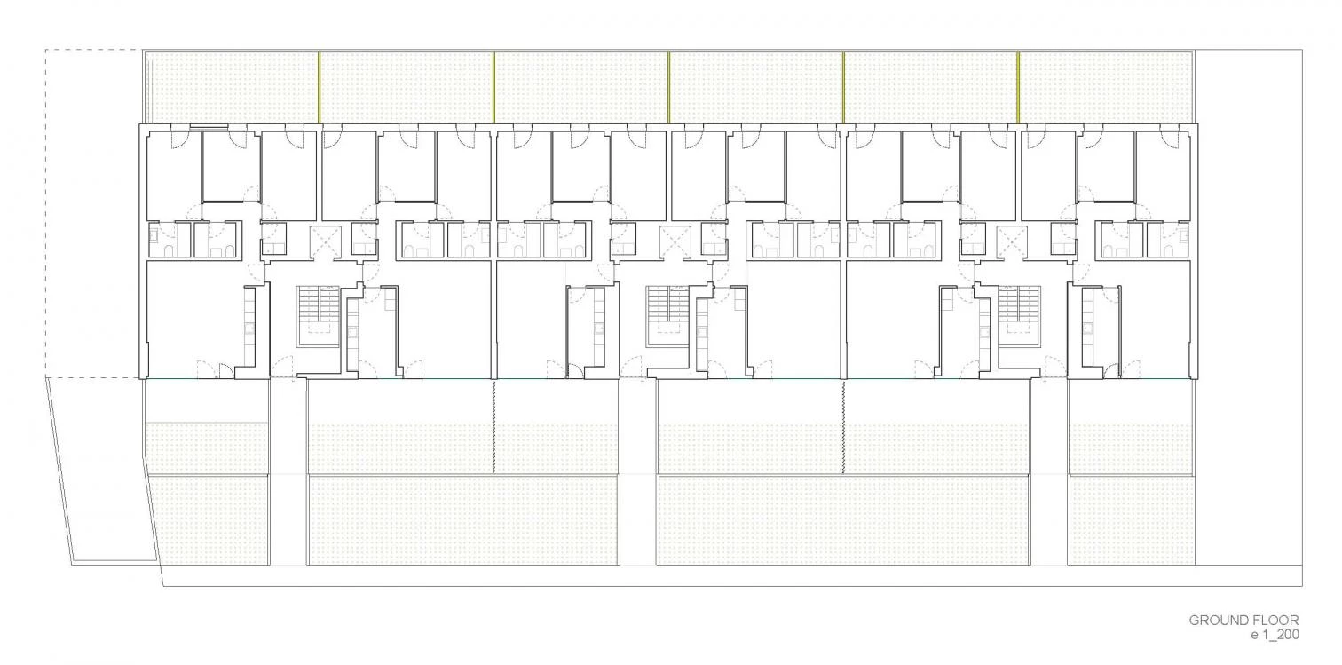
Este bloque residencial se sitúa al borde de un bosque, en el municipio de Zizur Mayor y a 5 kilómetros al suroeste de Pamplona. Con 2.500 metros cuadrados, el conjunto de dieciocho viviendas apiladas —seis en cada una de las tres alturas— proporciona una imagen cercana a la tradicional ‘casa’ para integrarse en el entorno. La distorsión de la escala, provocada mediante la extrusión de la sección, se acentúa a través de taludes con vegetación y las sombras generadas por la profundidad de las terrazas. La fachada cerrada al norte se resuelve mediante ventanas aleatorias cuya repetición emula la relación rítmica de los árboles cercanos. El frente abierto al sur contiene las terrazas corridas. Una piel estriada de acero y color broncíneo envuelve la construcción.













