Teatro y Auditorio San Lorenzo de El Escorial
Picado - De Blas Arquitectos Enrique Delgado- Tipo Teatro Auditorio
- Fecha 2005
- Ciudad San Lorenzo de El Escorial (Madrid) Madrid
- País España
- Fotografía Richard Bryant arcaid.co.uk Manuel Renau
Alterar la regia estampa del Monasterio de El Escorial con una intervención de grandes dimensiones exige comenzar por un estudio del paisaje y la evolución histórica del lugar, realizando un esfuerzo añadido al que inevitablemente conlleva la inserción en cualquier trama urbana de un teatro.

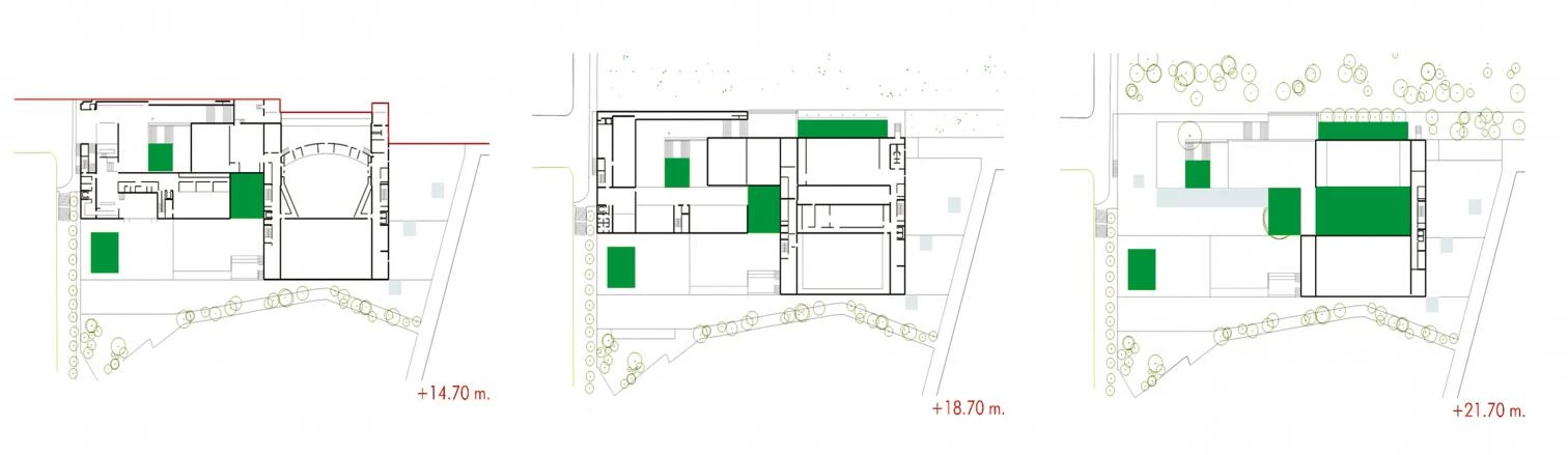
Se pretende integrar el edificio en el entorno resultando para ello beneficiosa la elección de una parcela con una gran pendiente que permite, dejando el ochenta por ciento del programa enterrado, posar pequeñas piezas sobre la ladera, evocando así los antiguos teatros clásicos. La influencia del paisaje en el proyecto lleva hasta el extremo de dividir el edificio en dos por la existencia de un pinsapo centenario que adquiere un papel protagonista.

Partiendo del estudio del paisaje y de la evolución histórica del lugar, el objetivo primordial del proyecto fue la integración del edificio en el emplazamiento, marcado por la imponente presencia del monasterio.



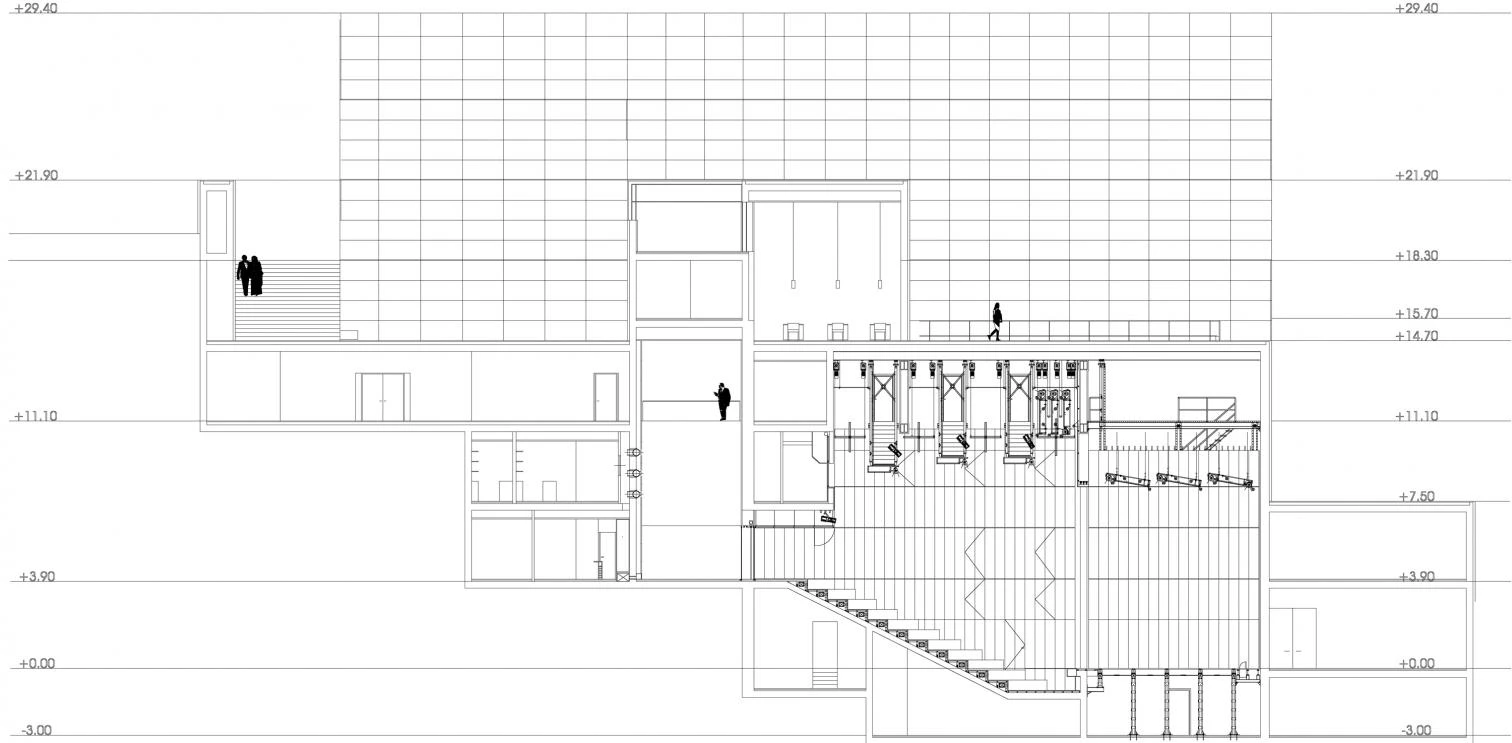
La secuencia de exteriores e interiores que se suceden en el monasterio inspiró el trazado de un itinerario serpenteante donde la concatenación de espacios vinculados con el entorno vertebra la propuesta. El objetivo es pasear por la ladera que ahora se ocupa manteniendo en todo momento el contacto con el exterior, con la vista del horizonte, del cielo y de los jardines colindantes.

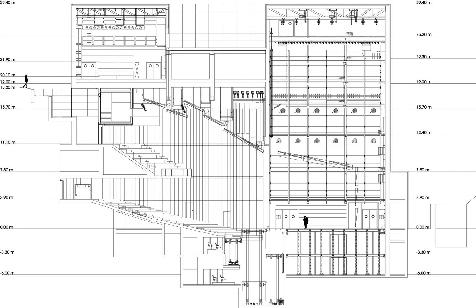
Se construye una aparente mole granítica en la que se esconde una secuencia de huecos abrazados a los espacios escénicos del edificio. El vestíbulo principal, horizontal y neutro, es el corazón del recorrido, un captador de vistas que enmarca el horizonte a media ladera y ordena la distribución interior. En este lugar es donde se intuye la ‘construcción de vacíos’ pretendida, aunque éstos no pueden entenderse sin recorrerse. Únicamente las dos grandes salas para 1.200 y 300 espectadores se aíslan del exterior adquiriendo un carácter íntimo.

El gran desnivel de la parcela permite, dejando la mayor parte del programa enterrado, posar pequeñas piezas sobre la ladera. La austeridad de los acabados y la simplicidad formal inducen a apreciar las espectaculares vistas.




La sala principal, con un foso para quinientos músicos y un escenario de quince metros de fondo por veinticinco de altura, aspira a convertirse en una de las más importantes del país, estando preparada para albergar conciertos, óperas, obras de teatro o o musicales. Su excepcional equipamiento escénico y acústico se acompaña de unas circulaciones óptimas en las que todo el movimiento interior se realiza a la cota de los dos escenarios, de forma que pueden compartir camerinos y zonas técnicas sin mezclarse nunca con los recorridos del público.



El interior se vertebra por una sucesión de espacios conectados con el exterior. Por el contrario, las dos grandes salas, dotadas con un excepcional equipamiento escénico y acústico, adoptan un carácter introvertido.
Se utiliza granito con distintas texturas en paramentos exteriores y pavimentos. Las zonas nobles se revisten con madera de nogal mientras que la cubierta se llena de vegetación que actúa como manto conciliador de las superficies construidas y el entorno. La austeridad de los acabados y la simplicidad formal buscan ensalzar las vistas consideradas como el mayor valor de la intervención.


Cliente Client
Comunidad de Madrid
Arquitectos Architects
Rubén Picado, María José de Blas,Enrique Delgado
Colaboradores Collaborators
Elisa Pérez, Fernando García, María Antonia Fernández, Carmen Ballesteros;Rafael Valín (aparejador quantity surveyor); Juan Blasco (arquitecto del Ayuntamiento Town Council architect); Santiago García, Laura Martín (aparejadores del Ayuntamiento Town Council quantity surveyors) Consultores Consultants OTEP, Juan Antonio/HCA.(estructuras structures); Rafael Úrculo, Inteinco (instalaciones mechanical engineering); José Luis Tamayo / Stolle(equimamiento escénico scenic facilities); Vicente Mestre/GBBM (acústica acoustics)
Contratista Contractor
FCC / Fomento de Construcciones y Contratas
Fotos Photos
Miguel de Guzmán; Javier Azurmendi, Ignacio Bisbal