Teatro David Brownlow en Newbury
Jonathan Tuckey Design- Tipo Teatro Cultura / Ocio Educación Colegio e instituto
- Material Cemento Madera
- Fecha 2020
- Ciudad Newbury (Inglaterra)
- País Reino Unido
- Fotografía Nick Dearden Jim Stephenson
- Marca Viroc by Investwood
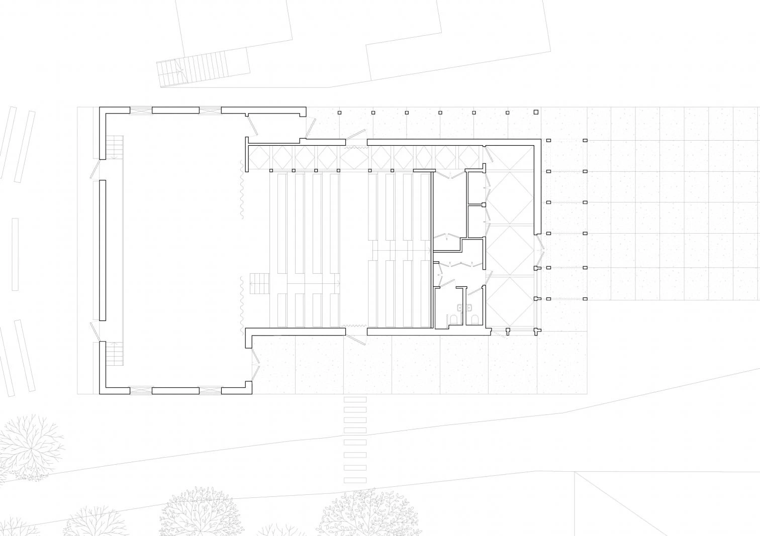
Este teatro para la Escuela Horris Hill de Newbury, ciudad del condado inglés de Berkshire, está construido con madera contralaminada (CLT) y paneles compuestos de Viroc, con una mezcla de fibras de madera y partículas de cemento, cuyos tonos rojizos se asemejan a los de los ladrillos de los edificios circundantes.
Fruto de un concurso por invitación celebrado en 2016, el proyecto de la firma de Londres fundada por Jonathan Tuckey abarca 528 metros cuadrados e incluye tres elementos principales: un auditorio con capacidad para 160 espectadores; un anfiteatro al aire libre; y un pórtico que enmarca la entrada principal y funciona como una valla publicitaria para anunciar las funciones.
En el interior del teatro, la estructura queda expuesta y los paneles acústicos grisáceos se alternan entre los listones de madera de haya. El suelo de Viroc pulido y color negro está cortado en un patrón que hace referencia a los pavimentos de piedra de las iglesias renacentistas. Fuera del horario de clases, el nuevo teatro se abrirá a la comunidad local.













