Sede del Colegio de Abogados, París
Renzo Piano Building Workshop- Tipo Sede / oficina Institucional
- Material Vidrio
- Fecha 2013 - 2020
- Ciudad París
- País Francia
- Fotografía Sergio Grazia
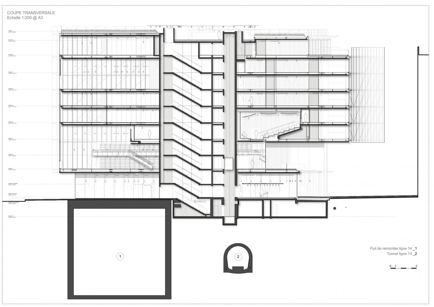
Dialogando con el contiguo gran edificio de tribunales, la nueva sede del Colegio de Abogados completa la ciudad judicial que ha dinamizado el periférico distrito de Batignolles.
Una estación de metro bajo el solar obligó a prescindir de cimentación tradicional y recurrir a una estructura de gran vuelo y apoyo mínimo, cuya tersa piel de vidrio materializa la transparencia que se reclama a la justicia.














Maison de l’Ordre des Avocats
Paris (France).
Client
Ordre des Avocats de Paris+Sogelym-Dixence.
Architects
Renzo Piano Building Workshop / B. Plattner, J. Moolhuijzen (partners); P. Colonna (associate in charge); S. Cimino, C. Guézet, S. Giorgio-Marrano, C. Maxwell-Mahon (team); A. Bagatella, D. Tsagkaropoulos (computer-generated imagery); O. Aubert, C. Colson, Y. Kyrkos (models).
Consultants
AIA Ingénierie (structure, MEP services, sustainability, civil engineering); RFR (facade); Franck Franjou (lighting design); Meta (acoustics); Labeyrie & Associés (audiovisual systems); NAMIXIS (fire protection); Origoni & Steiner (graphics); SLETEC (cost consultant).
Area
7.000 m².
Photos
Sergio Grazia.